21 SAMUEL AVENUE, Pelham (Fonthill), Ontario, L3E0G9
MLS: X12977770 | House (Freehold)
$1,227,000




Property Description
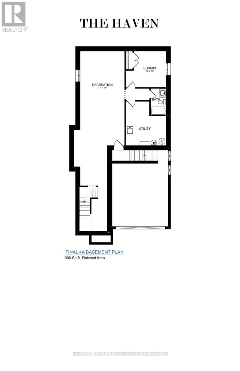
Set within one of Fonthill's desirable family neighbourhoods, this newly built two-storey home offers refined living with exceptional space and flexibility for modern families and multi-generational households. With over 3,500 sq ft of finished living space, this residence blends comfort, scale, and functionality in a community known for its welcoming small-town atmosphere with all the amenities. Newly built, the home features 4+1 bedrooms and 4.5 bathrooms with spacious principal rooms designed for everyday living and entertaining. The layout includes generous living and dining areas, a thoughtfully designed kitchen with quality finishes, and an open flow throughout the main floor. The primary suite offers an expansive bedroom, oversized his-and-hers walk-in closets, and a large ensuite designed for comfort. The finished basement adds valuable versatility with a spacious recreation room, legal bedroom, full bathroom, and a separate entrance-ideal for extended family living or potential rental income. Outside, the fenced yard on this wide corner lot offers space for outdoor enjoyment. Located close to shopping, cafés, restaurants, and local boutiques, as well as the Meridian Community Centre, parks, golf courses, and the Steve Bauer and Pelham trail systems. Families benefit from close proximity to a number of schools, with convenient access to Highway 20 and Highway 406.Combining generous living space, multi-generational flexibility, and the relaxed lifestyle that defines Fonthill, this home offers an excellent opportunity for families seeking room to grow in Niagara. (** List price shown is inclusive of the HST, net of applicable HST rebate(s), assuming the buyer qualifies and assigns such rebate(s) to the builder/vendor on closing. If not, the unavailable rebate(s) shall be payable by the buyer in addition to the purchase price on closing.) (id:64974)
Quick Facts
- Property Type: House (Freehold)
- Bedrooms: 5 (4 above, 1 below)
- Bathrooms: 5 (1 half)
- Ownership: Freehold
- Attached: No
- Fireplaces: 1
- Parking: 4.0 spaces (Attached Garage, Garage)
- Frontage: 53 ft (16.3 m)
Listing Provided by: RE/MAX NIAGARA REALTY LTD, BROKERAGE
Board: Niagara Association of REALTORS®
Data provided via CREA DDF®.
Detailed Features
Interior & Systems
- Heating: Forced air, Natural gas
- Cooling: Central air conditioning
- Basement: Finished, Separate entrance, Walk-up, N/A, N/A, N/A
- Flooring: Hardwood
Exterior & Construction
- Exterior: Brick, Vinyl siding
- Foundation: Poured Concrete
- Sewer: Sanitary sewer
- Water: Municipal water
Lot & Land
- Frontage: 53 ft (16.3 m)
- Zoning: R2
Community & Neighbourhood
- Building: Fireplace(s)
- Neighbourhood: 662 - Fonthill
Room Details (18 rooms)
Listing Information
Listing History
MLS listing activity for 21 SAMUEL AVENUE, Pelham (Fonthill), Ontario, L3E0G9 — dates reflect when changes were recorded in the DDF
🚗 Travel times
Neighborhood Walkability
Mortgage & Cost Calculators
Nearby Homes ?Nearby Homes — Search CriteriaSearch Radius1 kmPrice Range±5%Match BedroomsYesMatch BathroomsYes

7 SAFFRON WAY, Pelham (Fonthill)
Row / Townhouse$599,000
$6,309/yr taxListing Courtesy of CITYSCAPE REAL ESTATE LTD.

5 SAMUEL AVENUE, Pelham (Fonthill)
House$1,199,900
$8,903/yr taxListing Courtesy of REVEL Realty Inc., Brokerage

8 MYRTLE Street, Fonthill
House$899,999
$6,724/yr taxListing Courtesy of RE/MAX Escarpment Realty Inc.

8 MYRTLE STREET, Pelham (Fonthill)
House$899,999
$6,724/yr taxListing Courtesy of RE/MAX ESCARPMENT REALTY INC.

20 MYRTLE STREET, Pelham (Fonthill)
House$1,039,000
$7,125/yr taxListing Courtesy of ROYAL LEPAGE NRC REALTY

72 SAMUEL AVENUE, Pelham (Fonthill)
Row / Townhouse$599,000
Listing Courtesy of HOMELIFE/MIRACLE REALTY LTD

111 ACACIA ROAD, Pelham (Fonthill)
House$1,099,000
$2,562/yr taxListing Courtesy of REVEL Realty Inc., Brokerage

149 ACACIA Road, Pelham
House$759,000
$6,068/yr taxListing Courtesy of RE/MAX Niagara Realty Ltd.

236 WALKER Road, Pelham
House$1,085,000
$7,477/yr taxListing Courtesy of RE/MAX Niagara Realty Ltd.

236 WALKER ROAD, Pelham (Fonthill)
House$1,085,000
$7,477/yr taxListing Courtesy of RE/MAX NIAGARA REALTY LTD, BROKERAGE

UPPER - 84 ACACIA ROAD, Pelham (Fonthill)
House$2,650/mo
Listing Courtesy of REVEL Realty Inc., Brokerage

186 KLAGER AVENUE, Pelham (Fonthill)
Row / Townhouse$777,788
Listing Courtesy of ROYAL LEPAGE NRC REALTY

200 KLAGER AVENUE, Pelham (Fonthill)
Row / Townhouse$889,770
Listing Courtesy of ROYAL LEPAGE NRC REALTY

48 - 180 PORT ROBINSON ROAD, Pelham (Fonthill)
Condo - Row / Townhouse$829,900
$5,868/yr taxListing Courtesy of ROYAL LEPAGE NRC REALTY

74 ACACIA ROAD, Pelham (Fonthill)
House$799,000
$5,656/yr taxListing Courtesy of PONTIS REALTY INC.
Similar Homes ?Similar Homes — Search CriteriaSearch Radius5 kmPrice Range±5%Match Home TypeYesMatch BedroomsYes

6 HOWARD WILLIAMS COURT, Uxbridge
Row / Townhouse$1,228,000
$7,834/yr taxListing Courtesy of REAL BROKER ONTARIO LTD.

11 DRAKEFIELD ROAD, Markham (Bullock)
House$1,228,000
$5,860/yr taxListing Courtesy of ANJIA REALTY

39 RETREAT BOULEVARD, Vaughan (Vellore Village)
House$1,228,000
$5,106/yr taxListing Courtesy of RE/MAX HALLMARK REALTY LTD.

33 LIGHTHEART DRIVE, Caledon
House$1,228,000
$6,361/yr taxListing Courtesy of SKYBOUND REALTY

409 HEDDLE CRESCENT, Newmarket (Stonehaven-Wyndham)
House$1,228,800
$5,974/yr taxListing Courtesy of CENTURY 21 ATRIA REALTY INC.

87 LAW DRIVE, Guelph (Grange Road)
House$1,228,800
$7,813/yr taxListing Courtesy of Royal LePage Royal City Realty

26 ISLAND TRAIL S, Ramara
House$1,225,000
$5,832/yr taxListing Courtesy of MAIN STREET REALTY LTD.

447 UNION STREET, Meaford
House$1,225,000
$9,058/yr taxListing Courtesy of Sotheby's International Realty Canada

542 JERSEYVILLE Road W, Ancaster
House$1,225,000
$6,790/yr taxListing Courtesy of RE/MAX Escarpment Realty Inc.

540 PINE VISTA DRIVE, Ottawa
House$1,225,000
$7,753/yr taxListing Courtesy of INNOVATION REALTY LTD.

139 MANITOU DRIVE, McKellar
House$1,225,000
$2,982/yr taxListing Courtesy of Engel & Volkers Parry Sound

4 SNOWSHOE TRAIL, Barrie (Ardagh)
House$1,225,000
$8,569/yr taxListing Courtesy of SUTTON GROUP INCENTIVE REALTY INC.

542 JERSEYVILLE ROAD W, Hamilton (Ancaster)
House$1,225,000
$6,790/yr taxListing Courtesy of RE/MAX ESCARPMENT REALTY INC.

1165 9TH LINE, Beckwith
House$1,225,000
$8,638/yr taxListing Courtesy of RIGHT AT HOME REALTY

213 STRACHAN STREET, Port Hope
House$1,225,000
$9,768/yr taxListing Courtesy of KELLER WILLIAMS ENERGY REAL ESTATE
Similar Properties ?Active Comparables — Search CriteriaSearch Radius2 kmPrice Range±5%Match Home TypeYesMatch BedroomsYes
No active comparables found in this area.
No rental comparables found in this area.
Sold Comparables
Access to sold property data requires a registered and verified account with TRREB DDF integration.
Coming SoonRented Comparables
Access to rented property data requires a registered and verified account with TRREB DDF integration.
Coming SoonBook a Viewing
21 SAMUEL AVENUE, Pelham (Fonthill), Ontario, L3E0G9
