2098 DUFFERIN STREET, Toronto (Caledonia-Fairbank), Ontario, M6E3R7
MLS: W12451412 | House (Freehold)
$899,900

























Property Description
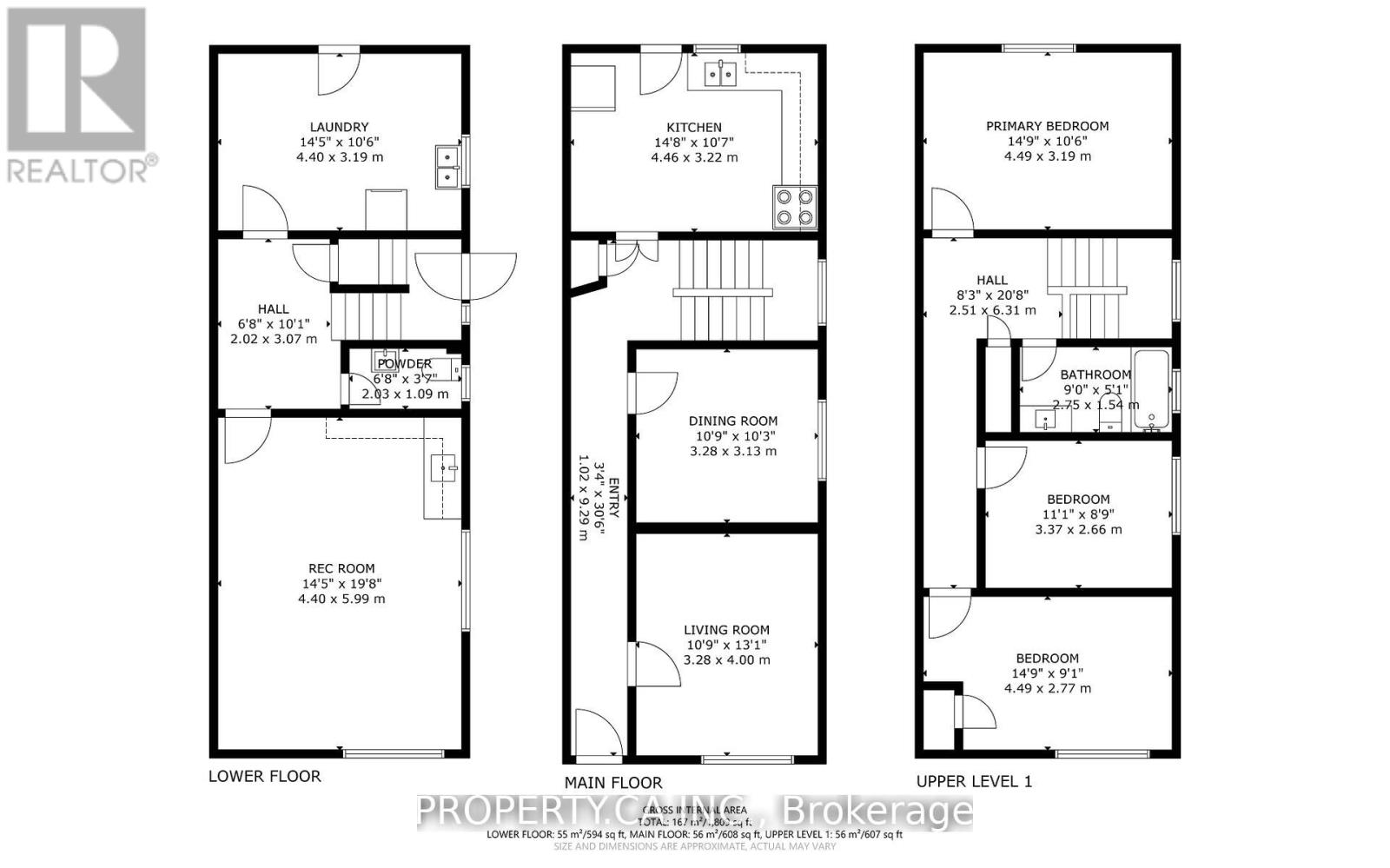
Welcome to 2098 Dufferin Street! This beautifully maintained two-storey detached home offers timeless charm and awaits your personal touch. The sun-drenched main floor boasts a spacious living room, a separate dining room, and an eat-in kitchen with a walk-out to an elevated terrace a perfect spot for morning coffee and soaking up the city vibe. Hardwood floors flow throughout LR,DR & upper level. Complemented by three well-appointed bedrooms and a recently renovated four-piece bathroom. A convenient two-piece powder rm' is located on the lower level. The finished basement features a large, inviting recreation room with a sep entrance, ideal for entertaining. Recent updates include a new roof and aluminum in 2020, and new windows in 2021. Enjoy the fully fenced front yard. Located in the heart of the city & conveniently close to Dufferin and Eglinton, the future Eglinton LRT, restaurants, shops, major hwys, and public trans. 2098 Dufferin is ready for you to make it your own. (id:64974)
Quick Facts
- Property Type: House (Freehold)
- Bedrooms: 3 (3 above)
- Bathrooms: 2 (1 half)
- Ownership: Freehold
- Attached: No
- Parking: 2 spaces (Detached Garage, Garage)
- Frontage: 25 ft (7.6 m)
Costs
- Annual Taxes: $4,215.35
Listing Provided by: PROPERTY.CA INC.
Board: Toronto Regional Real Estate Board
Data provided via CREA DDF®.
Detailed Features
Interior & Systems
- Heating: Forced air, Natural gas
- Cooling: Central air conditioning
- Basement: Finished, Separate entrance, N/A, N/A
- Appliances: Refrigerator, Stove
- Flooring: Hardwood
Exterior & Construction
- Exterior: Brick
- Sewer: Sanitary sewer
- Water: Municipal water
Lot & Land
- Frontage: 25 ft (7.6 m)
- Zoning: Zoned CR2(c2,r2) Commercial/Residential Zoning
Community & Neighbourhood
- Neighbourhood: Caledonia-Fairbank
Room Details (7 rooms)
Listing Information
Listing History
Buy/Sell/Terminated/Expired listing history for 2098 DUFFERIN STREET, Toronto (Caledonia-Fairbank), Ontario, M6E3R7
Location & Neighborhood
🚗 Travel times
Neighborhood Walkability
Mortgage & Cost Calculators
Nearby Homes (Within 2km)
Similar Homes
Similar Properties
No rental comparables found in this area.
Sold Comparables
Access to sold property data requires a registered and verified account with TRREB DDF integration.
Coming SoonRented Comparables
Access to rented property data requires a registered and verified account with TRREB DDF integration.
Coming Soon






























