205 MERRITT COURT, North Middlesex (Parkhill), Ontario, N0M2K0
MLS: X12401358 | House (Freehold)
$769,900











Property Description
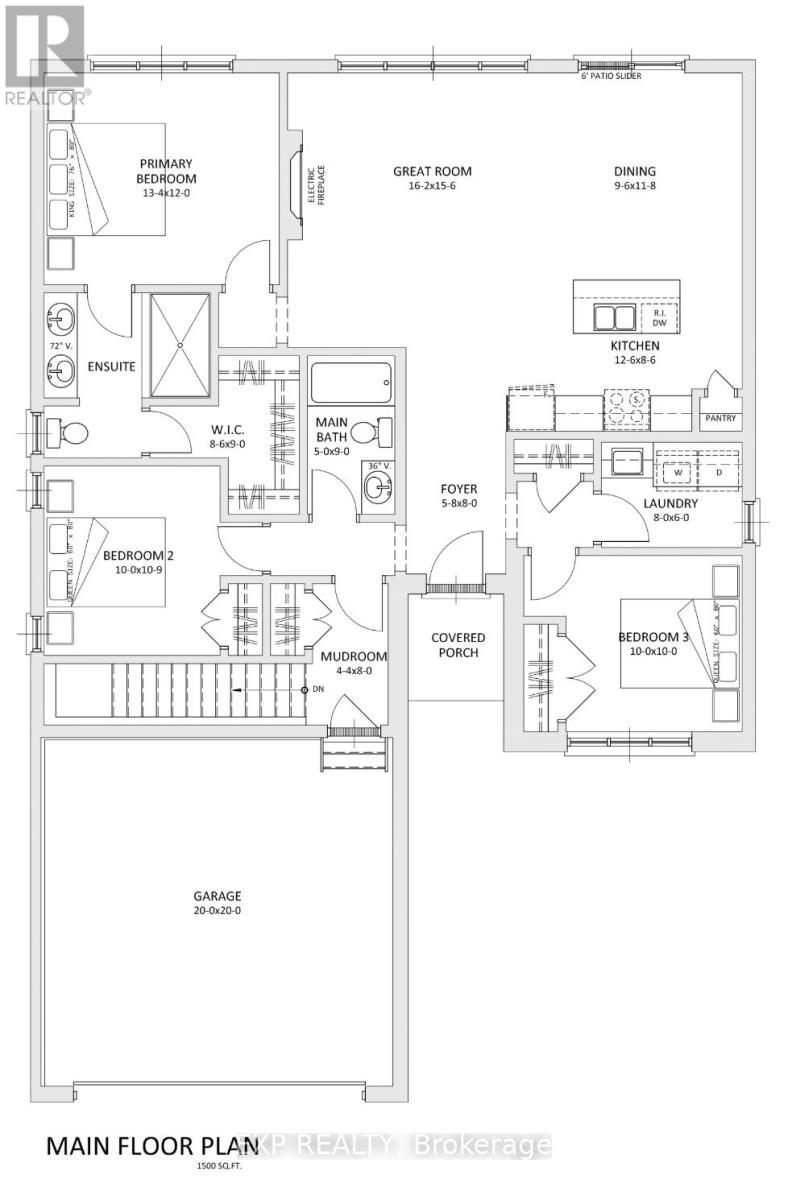
Introducing the Xception by XO Homes a modern bungalow that blends comfort, function, and flexibility. With two specifications available, the X Specs provide an affordable option with quality finishes, while the O Specs deliver a more luxurious upgrade for those seeking extra elegance. Offering 1,500 sq. ft. on the main floor, this home includes 3 bedrooms and an open-concept design that connects the kitchen, dining, and living spaces perfect for entertaining or relaxing with family. The primary suite features a walk-in closet and private ensuite, while two additional bedrooms provide plenty of room for family, guests, or a home office.Everyday convenience is built in with a separate laundry room and a functional mudroom that connects directly to the garage and to the lower staircase a smart detail for anyone considering an in-law suite or secondary living space in the basement.Designed with thoughtful layouts, quality craftsmanship, and the option to personalize with either X or O Specs, the Xception is a home that adapts to your lifestyle today and for years to come. Contact us for more information on available lots, models, and our full builder package. Come fall in love with Merritt Estates and build the home you've always dreamed of! Also keep in mind you can customize these models. **EXTRAS** To be built. Taxes not assessed. (id:64974)
Quick Facts
- Property Type: House (Freehold)
- Style: Bungalow
- Bedrooms: 3 (3 above)
- Bathrooms: 2
- Ownership: Freehold
- Attached: No
- Fireplaces: 1
- Parking: 6 spaces (Attached Garage, Garage)
- Frontage: 67 ft (20.4 m)
Listing Provided by: EXP REALTY
Board: London and St. Thomas Association of REALTORS®
Data provided via CREA DDF®.
Detailed Features
Interior & Systems
- Heating: Forced air, Natural gas
- Cooling: Central air conditioning
- Basement: Unfinished, Full
Exterior & Construction
- Style: Bungalow
- Exterior: Brick, Vinyl siding
- Foundation: Poured Concrete
- Sewer: Sanitary sewer
- Water: Municipal water
Lot & Land
- Frontage: 67 ft (20.4 m)
- Features: Cul-de-sac, Sump Pump
- Zoning: R1
Community & Neighbourhood
- Building: Fireplace(s)
- Neighbourhood: Parkhill
Room Details (9 rooms)
Listing Information
Listing History
Buy/Sell/Terminated/Expired listing history for 205 MERRITT COURT, North Middlesex (Parkhill), Ontario, N0M2K0
Location & Neighborhood
🚗 Travel times
Neighborhood Walkability
Mortgage & Cost Calculators
Nearby Homes (Within 2km)
Similar Homes
Similar Properties
No rental comparables found in this area.
Sold Comparables
Access to sold property data requires a registered and verified account with TRREB DDF integration.
Coming SoonRented Comparables
Access to rented property data requires a registered and verified account with TRREB DDF integration.
Coming Soon





















