2041 NASH ROAD, Clarington, Ontario, L1C3K4
MLS: E12902940 | House (Freehold)
$699,900












































Property Description
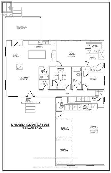
Charming renovated home on Expansive Lot with Development Potential. This is a rare and valuable opportunity to own a renovated home nestled on an oversized 66 x 330 ft lot with full permits and professional architectural drawings already in place for a stunning new custom built bungalow. The existing home is full of charm, offering 2 bedroom, 1 bath with modern upgrades throughout. Renovated Kitchen, bathroom and all new flooring. It's move in ready, perfect as a primary residence or income property while you plan your next steps. Also perfect for contractor with big detached garage and space for tools and vehicles. The true potential lies in what comes next: approved permits and complete drawings for a brand new 3 bedroom, 2 bath custom bungalow paired with a detached triple car garage featuring a fully legal 2 bedroom loft apt above - ideal for extended family, rental income or home office. What's better then Country living with the convenience of amenities only mins away. Whether you're a homeowner looking to expand, an investor seeking rental property or a developer ready to build this property offers unmatched flexibility and value. Minutes to multiple highways and shopping. Priced to sell. (id:64974)
Quick Facts
- Property Type: House (Freehold)
- Style: Bungalow
- Bedrooms: 2 (2 above)
- Bathrooms: 1
- Ownership: Freehold
- Attached: No
- Parking: 11.0 spaces (Detached Garage, Garage)
- Frontage: 66 ft (20.1 m)
Costs
- Annual Taxes: $3,603.65
Listing Provided by: RE/MAX ROUGE RIVER REALTY LTD.
Board: Central Lakes Association of REALTORS®
Data provided via CREA DDF®.
Detailed Features
Interior & Systems
- Heating: Forced air, Natural gas
- Cooling: Central air conditioning
- Basement: Partial
- Appliances: Window Coverings, Water Heater
- Flooring: Laminate
- Utilities: Electricity, Cable
- Security: Smoke Detectors
Exterior & Construction
- Style: Bungalow
- Exterior: Vinyl siding
- Foundation: Block
- Sewer: Septic System
- Water: Dug Well
Lot & Land
- Frontage: 66 ft (20.1 m)
- Features: Wooded area, Conservation/green belt, Carpet Free
- Zoning: Residential
Community & Neighbourhood
- Neighbourhood: Rural Clarington
Room Details (5 rooms)
Listing Information
Listing History
MLS listing activity for 2041 NASH ROAD, Clarington, Ontario, L1C3K4 — dates reflect when changes were recorded in the DDF
🚗 Travel times
Neighborhood Walkability
Mortgage & Cost Calculators
Similar Homes ?Similar Homes — Search CriteriaSearch Radius5 kmPrice Range±5%Match Home TypeYesMatch BedroomsYes

7 - 14 EMERALD COMMON, St. Catharines (Lakeshore)
Condo - Row / Townhouse$699,900
$6,782/yr taxListing Courtesy of RE/MAX NIAGARA REALTY LTD, BROKERAGE

1132 DYERS BAY ROAD, Northern Bruce Peninsula
House$699,900
$3,848/yr taxListing Courtesy of Chestnut Park Real Estate

42 - 55 HARRISON STREET, Stratford
Condo - Row / Townhouse$699,900
$7,221/yr taxListing Courtesy of Royal LePage Hiller Realty

215 CAIRNSMORE CIRCLE, Ottawa
Row / Townhouse$699,900
$5,197/yr taxListing Courtesy of EXP REALTY

22 - 1121 ARMOUR ROAD, Peterborough (Ashburnham Ward 4)
Condo - Row / Townhouse$699,900
$7,236/yr taxListing Courtesy of CENTURY 21 UNITED REALTY INC.

6229 FOSTER HALL ROAD, Elizabethtown-Kitley
House$699,900
$4,100/yr taxListing Courtesy of ROYAL LEPAGE PROALLIANCE REALTY

5250 LAKESHORE Road Unit# 1708, Burlington
Condo - Apartment$699,900
$3,140/yr taxListing Courtesy of Coldwell Banker-Burnhill Realty

2261 PENINSULA ROAD, North Bay (Birchaven)
House$699,900
$5,099/yr taxListing Courtesy of Coldwell Banker-Peter Minogue R.E., Brokerage

394 HUMMEL CRESCENT, Fort Erie (Lakeshore)
House$699,900
$5,074/yr taxListing Courtesy of Century 21 Heritage House LTD

81 DEARING DRIVE, South Huron (Stephen)
House$699,900
Listing Courtesy of ROYAL LEPAGE TRILAND PREMIER BROKERAGE

668 LILY MAC BOULEVARD, Windsor
Condo - Row / Townhouse$699,900
Listing Courtesy of REMAX CAPITAL DIAMOND REALTY

1501 - 505 TALBOT STREET, London East (East F)
Condo - Apartment$699,900
$6,907/yr taxListing Courtesy of SAKER REALTY CORPORATION

306 SANDPIPER LANE, Georgian Bluffs
Condo - Row / Townhouse$699,900
$5,867/yr taxListing Courtesy of Sutton-Sound Realty

1145 MAIN Street, Cambridge
House$699,900
$3,884/yr taxListing Courtesy of RE/MAX TWIN CITY REALTY INC.

91 THE PROMENADE, Central Elgin (Port Stanley)
House$699,900
Listing Courtesy of BLUE FOREST REALTY INC.
Similar Properties ?Active Comparables — Search CriteriaSearch Radius2 kmPrice Range±5%Match Home TypeYesMatch BedroomsYes
No active comparables found in this area.
No rental comparables found in this area.
Sold Comparables
Access to sold property data requires a registered and verified account with TRREB DDF integration.
Coming SoonRented Comparables
Access to rented property data requires a registered and verified account with TRREB DDF integration.
Coming SoonBook a Viewing
2041 NASH ROAD, Clarington, Ontario, L1C3K4
