204 - 2799 ST. PAUL AVENUE, Niagara Falls (Stamford), Ontario, L2J2L3
MLS: X12923908 | Apartment (Condo)
$429,900























Property Description
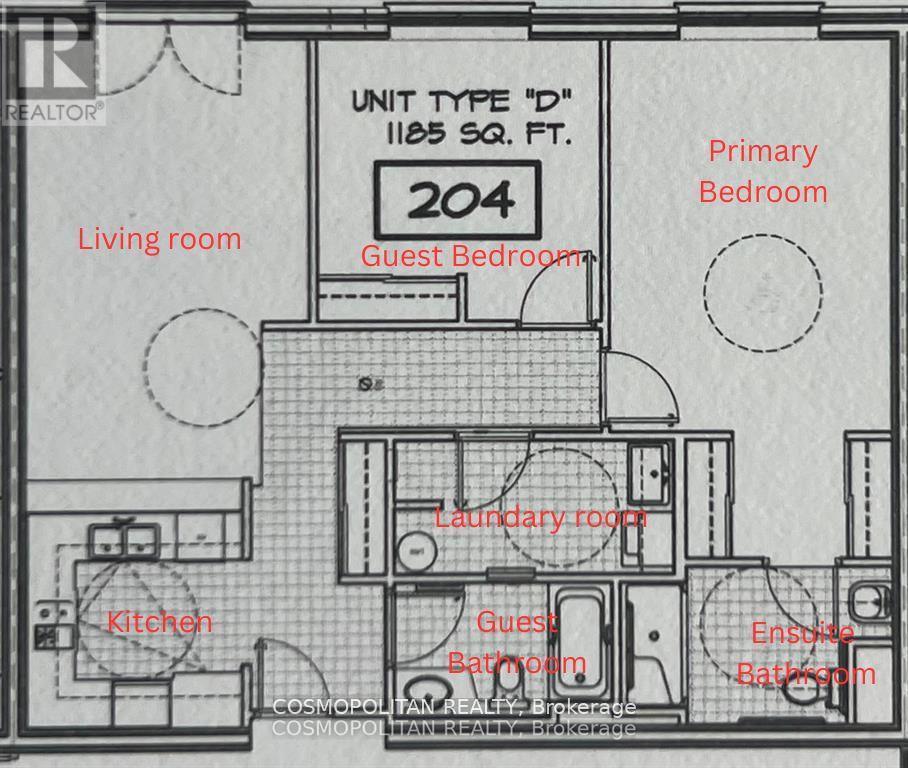
Open House this Sunday April 19th, 2-4PM. Easy living starts here.This 2-bedroom, 2-bathroom condo offers approximately 1,200 sq ft of well-designed, single-level space - no stairs, no wasted corners, just a layout that actually works for everyday life. Bright, open living areas with plenty of natural light create a comfortable, low-stress environment - the kind of space you can truly relax in. Designed with interior living in mind, this unit does not have a balcony - allowing for more usable space inside. A feature some buyers appreciate for added peace of mind, simplicity, and a truly low-maintenance lifestyle. Step outside and you're approximately a 1-minute walk to the Haulage Road Trail, connecting you to walking and biking paths, nearby playground (Solar Park), and Firemen's Park. Enjoy access to nature and green space without the upkeep.Surrounded by everyday conveniences and recreation - including nearby golf courses, parks, and pickleball - this location supports an active lifestyle while keeping day-to-day living simple and manageable. This is not a high-amenity, luxury condo - instead, it offers something many buyers are actually looking for: space, privacy, and a practical, easy-to-maintain home. Ideal for downsizers, busy professionals, or anyone looking to simplify their lifestyle and enjoy a space that's easy to lock up and leave. At this price point, this is where smart, low-maintenance living starts to make sense. (id:64974)
Quick Facts
- Property Type: Apartment (Condo)
- Bedrooms: 2 (2 above)
- Bathrooms: 2
- Ownership: Condo/Strata
- Attached: Yes
- Fireplaces: 1
- Parking: 1.0 space (No Garage)
Costs
- Annual Taxes: $4,321.14
- Condo/HOA Fee: $519.86 / monthly
- Corp: Cannon Greco
- Includes: Common Area Maintenance, Water, Insurance, Parking
Listing Provided by: COSMOPOLITAN REALTY
Board: Niagara Association of REALTORS®
Data provided via CREA DDF®.
Detailed Features
Interior & Systems
- Heating: Forced air, Electric
- Cooling: Central air conditioning
- Basement: None
- Appliances: Washer, Refrigerator, Dishwasher, Stove, Dryer, Hood Fan, Water Heater
Exterior & Construction
- Exterior: Concrete, Brick
Lot & Land
- Features: Elevator, Wheelchair access, Carpet Free, In suite Laundry
Community & Neighbourhood
- Community: Community Centre, Pets Allowed With Restrictions
- Building: Recreation Centre, Party Room, Fireplace(s), Visitor Parking
- Neighbourhood: 206 - Stamford
Room Details (8 rooms)
Listing Information
Listing History
MLS listing activity for 204 - 2799 ST. PAUL AVENUE, Niagara Falls (Stamford), Ontario, L2J2L3 — dates reflect when changes were recorded in the DDF
🚗 Travel times
Neighborhood Walkability
Mortgage & Cost Calculators
Nearby Homes ?Nearby Homes — Search CriteriaSearch Radius1 kmPrice Range±5%Match BedroomsYesMatch BathroomsYes

306 - 2799 ST. PAUL AVENUE, Niagara Falls (Stamford)
Condo - Apartment$499,000
$4,370/yr taxListing Courtesy of RE/MAX NIAGARA REALTY LTD, BROKERAGE

6387 RIALL STREET, Niagara Falls (Stamford)
House$650,000
$4,538/yr taxListing Courtesy of COMFREE

6191 SHANE CRESCENT, Niagara Falls (Church's Lane)
Row / Townhouse$549,999
$4,151/yr taxListing Courtesy of RE/MAX NIAGARA REALTY LTD, BROKERAGE

6150 CHURCH'S LANE, Niagara Falls (Church's Lane)
House$524,999
$3,357/yr taxListing Courtesy of HARTLAND REALTY INC.

3045 PORTAGE Road Unit# MAIN, Niagara Falls
House$2,300/mo
Listing Courtesy of RE/MAX Escarpment Realty Inc.

2896 PORTAGE ROAD, Niagara Falls (Church's Lane)
House$510,000
$3,921/yr taxListing Courtesy of EXP REALTY

3047 SAINT PATRICK AVENUE, Niagara Falls (Stamford)
House$599,900
$3,361/yr taxListing Courtesy of EXP REALTY

6581 RIALL Street, Niagara Falls
House$619,999
$3,855/yr taxListing Courtesy of Platinum Lion Realty Inc.

6398 MOUNTAIN ROAD, Niagara Falls (Stamford)
House$970,000
$5,506/yr taxListing Courtesy of REVEL Realty Inc., Brokerage

3194 PORTAGE ROAD, Niagara Falls (Church's Lane)
House$649,900
$4,201/yr taxListing Courtesy of ROYAL LEPAGE NRC REALTY

6122 MAYFAIR Drive, Niagara Falls
House$669,900
$3,401/yr taxListing Courtesy of RE/MAX Escarpment Realty Inc.

LOT 40 LUCIA DRIVE, Niagara Falls (Stamford)
House$1,223,000
Listing Courtesy of RE/MAX NIAGARA REALTY LTD, BROKERAGE

6122 MAYFAIR DRIVE, Niagara Falls (Stamford)
House$669,900
$3,401/yr taxListing Courtesy of RE/MAX ESCARPMENT REALTY INC.

6133 STROHAN STREET, Niagara Falls (Church's Lane)
House$380,000
$2,786/yr taxListing Courtesy of ZOLO REALTY

6656 WILLS STREET, Niagara Falls (Stamford)
House$2,800/mo
Listing Courtesy of EXP REALTY
Similar Homes ?Similar Homes — Search CriteriaSearch Radius5 kmPrice Range±5%Match Home TypeYesMatch BedroomsYes

632 - 4263 FOURTH AVENUE N, Niagara Falls (Downtown)
Condo - Row / Townhouse$429,000
$3,064/yr taxListing Courtesy of NEWGEN REALTY EXPERTS

4867 SIXTH Avenue, Niagara Falls
House$424,900
$2,069/yr taxListing Courtesy of RE/MAX Escarpment Golfi Realty Inc.

25 - 6476 HUGGINS STREET, Niagara Falls (Stamford)
Condo - Row / Townhouse$439,900
$2,502/yr taxListing Courtesy of REVEL Realty Inc., Brokerage

440 - 23 FOUR MILE CREEK ROAD, Niagara-on-the-Lake (St. Davids)
Modular$414,900
$1,040/yr taxListing Courtesy of ROYAL LEPAGE NRC REALTY

6469 BARKER STREET, Niagara Falls (Dorchester)
House$450,000
$2,686/yr taxListing Courtesy of RE/MAX NIAGARA REALTY LTD, BROKERAGE

6469 BARKER Street, Niagara Falls
House$450,000
$2,686/yr taxListing Courtesy of RE/MAX Niagara Realty Ltd.
Similar Properties ?Active Comparables — Search CriteriaSearch Radius2 kmPrice Range±5%Match Home TypeYesMatch BedroomsYes
No rental comparables found in this area.
Sold Comparables
Access to sold property data requires a registered and verified account with TRREB DDF integration.
Coming SoonRented Comparables
Access to rented property data requires a registered and verified account with TRREB DDF integration.
Coming SoonBook a Viewing
204 - 2799 ST. PAUL AVENUE, Niagara Falls (Stamford), Ontario, L2J2L3
