203 - 109 VANDERHOOF AVENUE, Toronto (Leaside), Ontario, M4G2H7
MLS: C12755718 | Offices
$21.00 / square feet






















Property Description
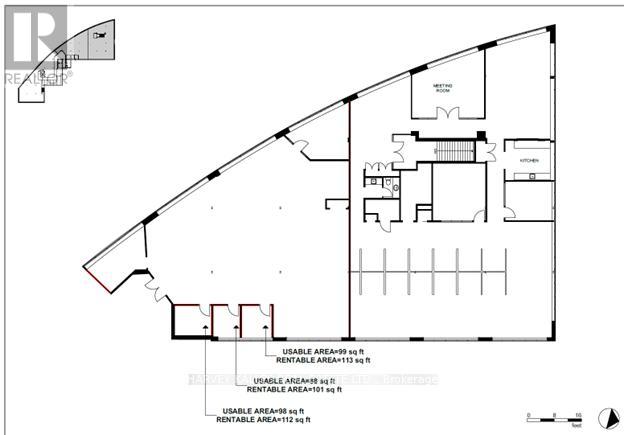
Fabulous Second Floor Premier Office Space Combining Traditional Post and Beam Interior With Modern High End Finishes. Plenty of Natural Light, Featuring Private Entrance, High Ceilings and Corner Exposure On Two Sides. Extremely Flexible Space With Private Boardrooms. Large Open Areas and Private Offices. Also Includes Large Kitchen and Private Washroom. Great Signage. Plenty of Parking. Conveniently Located Just Minutes from Laird and Eglinton. Space could be demised into two equal sized units. See Attached Drawings. (id:64974)
Quick Facts
- Property Type: Offices
- Bedrooms: None
- Bathrooms: 1
- Living Area: 9,435 sq ft (876.5 m²)
Costs
- Annual Taxes: $14.00
Listing Provided by: HARVEY KALLES REAL ESTATE LTD.
Board: Toronto Regional Real Estate Board
Data provided via CREA DDF®.
Detailed Features
Interior & Systems
- Heating: Forced air, Natural gas
- Cooling: Fully air conditioned
Exterior & Construction
- Water: Municipal water
Lot & Land
- Features: Elevator
- Zoning: ELO.75
Community & Neighbourhood
- Neighbourhood: Leaside
Listing Information
Listing History
Buy/Sell/Terminated/Expired listing history for 203 - 109 VANDERHOOF AVENUE, Toronto (Leaside), Ontario, M4G2H7
Location & Neighborhood
🚗 Travel times
Neighborhood Walkability
Mortgage & Cost Calculators
Similar Properties
No active comparables found in this area.
Sold Comparables
Access to sold property data requires a registered and verified account with TRREB DDF integration.
Coming SoonRented Comparables
Access to rented property data requires a registered and verified account with TRREB DDF integration.
Coming Soon













