20276 MAPLE ROAD, South Glengarry, Ontario, K0C2J0
MLS: X12818766 | House (Freehold)
$579,500


















































Property Description
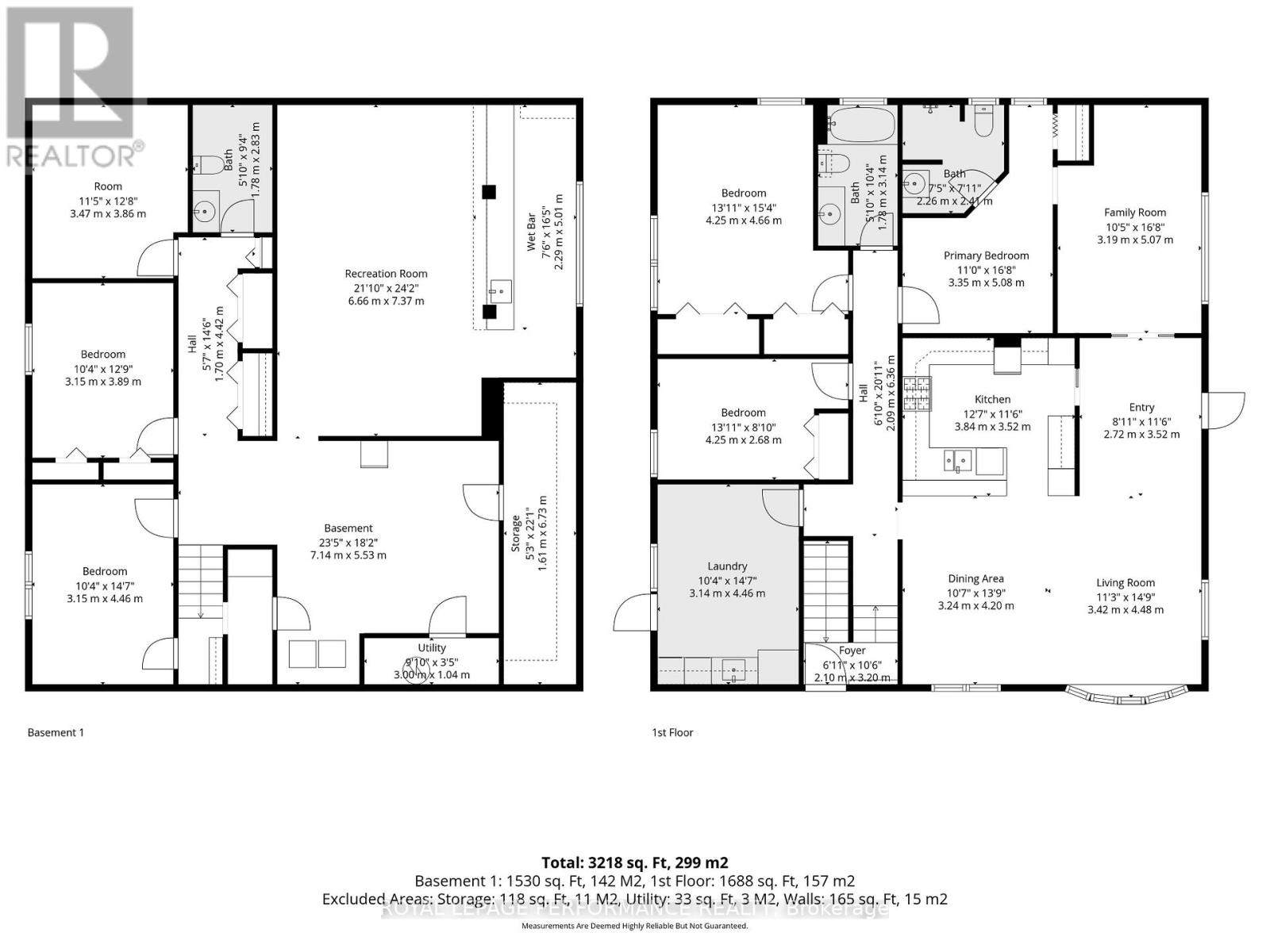
Private Country Bungalow on 8 Acres! Set well back from the road on a peaceful 8-acre parcel, this versatile 3+2 bedroom bungalow offers privacy, space, and the kind of natural setting that feels increasingly rare. The partially treed lot is a beautiful mix of white spruce, red pine, and white pine, creating a quiet, secluded backdrop ideal for country living, recreation, or simply enjoying the calm. Inside, the home features a functional oak kitchen with an abundance of cabinetry, flowing seamlessly into the dining area for easy everyday living. Multiple living spaces include both a living room and a family room, offering flexibility for entertaining, relaxing, or multigenerational use. Primary bedroom with a 3pc en-suite bathroom. 4pc guest bathroom with tub/shower. Main floor laundry adds everyday convenience. The lower level expands the living space featuring two additional bedrooms, rec room with bar, 2pc bathroom (potential 3pc), and home office/den. Outdoors, the property is equally well-equipped with a back deck, a detached enclosed temporary garage plus an impressive 20 ft x 40 ft detached garage/workshop, ideal for vehicles, storage, or projects. A private and picturesque parcel with room to grow, work, and unwind-this property delivers the space and freedom of rural living while offering practical features for everyday life. As per Seller direction allow 24 hour irrevocable on offers. (id:64974)
Quick Facts
- Property Type: House (Freehold)
- Style: Bungalow
- Bedrooms: 5 (3 above, 2 below)
- Bathrooms: 3 (1 half)
- Ownership: Freehold
- Attached: No
- Parking: 10 spaces (Detached Garage, Garage)
- Frontage: 420 ft (128 m)
Costs
- Annual Taxes: $3,093.00 (2025)
Listing Provided by: ROYAL LEPAGE PERFORMANCE REALTY
Board: Cornwall & District Real Estate Board
Data provided via CREA DDF®.
Detailed Features
Interior & Systems
- Heating: Forced air, Propane
- Cooling: Central air conditioning
- Basement: Finished, N/A
- Appliances: Washer, Dishwasher, Dryer, Freezer, Window Coverings, Water Heater
Exterior & Construction
- Style: Bungalow
- Exterior: Vinyl siding
- Foundation: Concrete
- Sewer: Septic System
- Water: Drilled Well
Lot & Land
- Frontage: 420 ft (128 m)
- Features: Wooded area, Irregular lot size
- Zoning: A2
Community & Neighbourhood
- Neighbourhood: 723 - South Glengarry (Charlottenburgh) Twp
Room Details (12 rooms)
Listing Information
Listing History
Buy/Sell/Terminated/Expired listing history for 20276 MAPLE ROAD, South Glengarry, Ontario, K0C2J0
Location & Neighborhood
🚗 Travel times
Neighborhood Walkability
Mortgage & Cost Calculators
Nearby Homes (Within 2km)
Similar Homes
Similar Properties
No rental comparables found in this area.
Sold Comparables
Access to sold property data requires a registered and verified account with TRREB DDF integration.
Coming SoonRented Comparables
Access to rented property data requires a registered and verified account with TRREB DDF integration.
Coming Soon















