202 BOWMAN DRIVE, Middlesex Centre (Ilderton), Ontario, N0M2A0
MLS: X12455427 | House (Freehold)
$675,000



Property Description
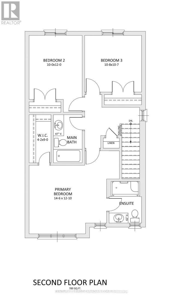
TO BE BUILT. Welcome to the NEW ROBERT layout with a NEW PRICE by Vranic Homes. Over 1450 sq ft of beauty and luxury. This 3 bedroom two storey home in beautiful Clear Skies is available with closing in early to mid 2026. Come and select your own finishings, and don't wait our special pricing is first come first served. Quartz counters throughout, plus design your own kitchen with our design consultant! See documents for a list of standard features. Visit our model at 133 Basil Cr in Ilderton, open Saturdays and Sundays from 2-4 or by appointment. Other models and lots are available, ask for the complete builder's package. (id:64974)
Quick Facts
- Property Type: House (Freehold)
- Bedrooms: 3 (3 above)
- Bathrooms: 3 (1 half)
- Ownership: Freehold
- Attached: No
- Parking: 4 spaces (Attached Garage, Garage)
- Frontage: 38 ft (11.6 m)
Listing Provided by: CENTURY 21 FIRST CANADIAN CORP
Board: London and St. Thomas Association of REALTORS®
Data provided via CREA DDF®.
Detailed Features
Interior & Systems
- Heating: Forced air, Natural gas
- Cooling: Central air conditioning
- Basement: Unfinished, N/A
- Appliances: Water Heater
Exterior & Construction
- Exterior: Brick, Vinyl siding
- Foundation: Poured Concrete
- Sewer: Sanitary sewer
- Water: Municipal water
Lot & Land
- Frontage: 38 ft (11.6 m)
- Zoning: UR-1
Community & Neighbourhood
- Neighbourhood: Ilderton
Room Details (6 rooms)
Listing Information
Listing History
Buy/Sell/Terminated/Expired listing history for 202 BOWMAN DRIVE, Middlesex Centre (Ilderton), Ontario, N0M2A0
Location & Neighborhood
🚗 Travel times
Neighborhood Walkability
Mortgage & Cost Calculators
Nearby Homes (Within 2km)
Similar Homes
Similar Properties
No rental comparables found in this area.
Sold Comparables
Access to sold property data requires a registered and verified account with TRREB DDF integration.
Coming SoonRented Comparables
Access to rented property data requires a registered and verified account with TRREB DDF integration.
Coming Soon




















