201 - 55 EAST LIBERTY STREET, Toronto (Niagara), Ontario, M6K3P9
MLS: C12996982 | Apartment (Condo)
$669,000
































Property Description
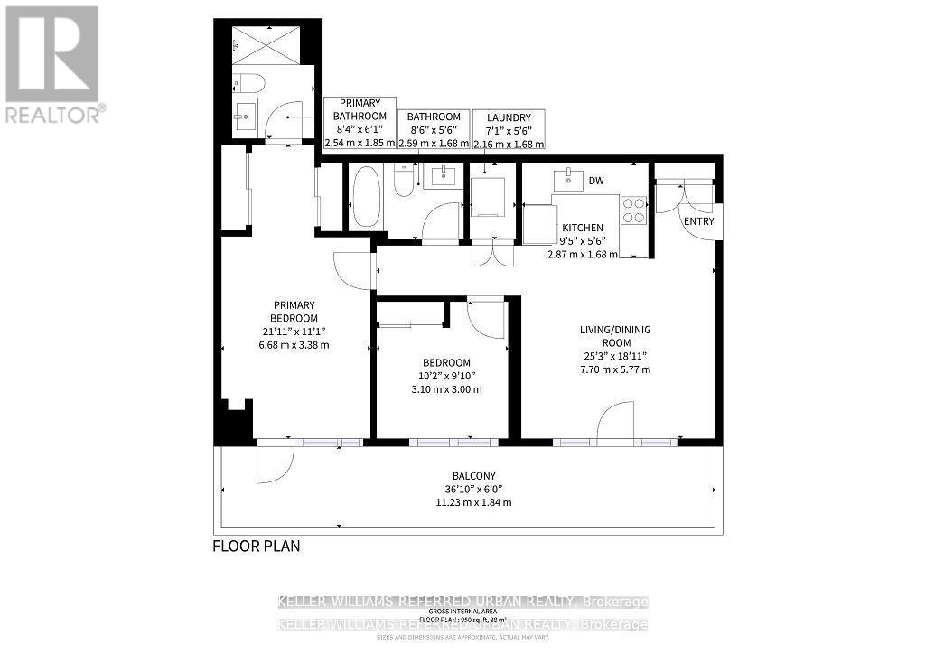
This beautifully designed condo in the heart of Liberty Village offers a spacious, modern living experience with serene courtyard views. The open-concept living, dining, and kitchen area is ideal for both everyday living and entertaining, featuring clean finishes and contemporary lighting. Floor-to-ceiling windows perfectly frames the peaceful greenery outside. The kitchen is equipped with stainless steel appliances, clean white cabinetry, and granite counter space. The spacious primary bedroom provides a calm retreat, complete with a large window overlooking the landscaped courtyard, large his and hers closets and a 3 pc ensuite bath. Soft neutral tones and modern furnishings create a warm, inviting atmosphere throughout the home. A large private balcony extends your living space and offers a perfect spot to enjoy morning coffees with a garden view. Thoughtful layout and smart use of space make this condo feel both airy and functional. Located in vibrant Liberty Village, you're just steps from shops, cafes, parks, and easy transit, making this an ideal urban home. Amazing amenities with 24 hr Concierge, indoor pool, hot tub, sauna, BBQ terrace, fitness centre and 2 party rooms! This unit is freshly painted throughout and the bathrooms tiles, tubs and kitchen backsplash have been professionally cleaned and refinished for a like-new condition and your private parking spot is just steps to the elevator for additional convenience. Just move in and enjoy this spacious home and vibrant neighbourhood! (id:64974)
Quick Facts
- Property Type: Apartment (Condo)
- Bedrooms: 2 (2 above)
- Bathrooms: 2
- Ownership: Condo/Strata
- Attached: Yes
- Parking: 1.0 space (Garage, Underground)
Costs
- Annual Taxes: $3,265.20
- Condo/HOA Fee: $818.98 / monthly
- Corp: Wilson Blanchards Management (416-530-2786)
- Includes: Common Area Maintenance, Heat, Water, Insurance, Parking
Listing Provided by: KELLER WILLIAMS REFERRED URBAN REALTY
Board: Toronto Regional Real Estate Board
Data provided via CREA DDF®.
Detailed Features
Interior & Systems
- Heating: Forced air, Natural gas
- Cooling: Central air conditioning
- Basement: None
- Appliances: All, Washer, Refrigerator, Dishwasher, Stove, Dryer, Microwave, Window Coverings
- Flooring: Laminate
Exterior & Construction
- Exterior: Concrete, Brick Veneer
Lot & Land
- Features: Balcony, Carpet Free
- Pool: Indoor pool
- Waterfront: Waterfront
Community & Neighbourhood
- Community: Community Centre, Pets Allowed With Restrictions
- Building: Storage - Locker, Exercise Centre, Separate Electricity Meters, Party Room, Security/Concierge
- Neighbourhood: Niagara
Room Details (5 rooms)
Listing Information
Listing History
MLS listing activity for 201 - 55 EAST LIBERTY STREET, Toronto (Niagara), Ontario, M6K3P9 — dates reflect when changes were recorded in the DDF
🚗 Travel times
Neighborhood Walkability
Mortgage & Cost Calculators
Nearby Homes ?Nearby Homes — Search CriteriaSearch Radius1 kmPrice Range±5%Match BedroomsYesMatch BathroomsYes

607 - 51 EAST LIBERTY STREET, Toronto (Niagara)
Condo - Apartment$655,000
$3,589/yr taxListing Courtesy of RE/MAX WEST REALTY INC.

2206 - 19 WESTERN BATTERY ROAD, Toronto (Niagara)
Condo - Apartment$699,000
$3,861/yr taxListing Courtesy of RETREND REALTY LTD

811 - 150 EAST LIBERTY STREET, Toronto (Niagara)
Condo - Apartment$679,000
$3,310/yr taxListing Courtesy of ROYAL LEPAGE SIGNATURE REALTY

507 - 38 JOE SHUSTER WAY, Toronto (Niagara)
Condo - Apartment$650,000
$2,918/yr taxListing Courtesy of ROYAL LEPAGE SIGNATURE REALTY

403 - 700 KING STREET, Toronto (Niagara)
Condo - Apartment$649,000
$2,948/yr taxListing Courtesy of ROYAL LEPAGE SIGNATURE REALTY

1622 - 525 ADELAIDE STREET W, Toronto (Waterfront Communities)
Condo - Apartment$669,000
$3,039/yr taxListing Courtesy of RIGHT AT HOME REALTY
Similar Homes ?Similar Homes — Search CriteriaSearch Radius5 kmPrice Range±5%Match Home TypeYesMatch BedroomsYes

3012 - 5 DEFRIES STREET, Toronto (Regent Park)
Condo - Apartment$669,000
$4,225/yr taxListing Courtesy of EXP REALTY

1622 - 525 ADELAIDE STREET W, Toronto (Waterfront Communities)
Condo - Apartment$669,000
$3,039/yr taxListing Courtesy of RIGHT AT HOME REALTY

2305 - 50 CHARLES STREET E, Toronto (Church-Yonge Corridor)
Condo - Apartment$669,000
$4,313/yr taxListing Courtesy of HOMELIFE LANDMARK REALTY INC.

610 - 383 SORAUREN AVENUE, Toronto (Roncesvalles)
Condo - Apartment$669,880
$3,318/yr taxListing Courtesy of RARE REAL ESTATE

3112 - 18 YONGE STREET, Toronto (Waterfront Communities)
Condo - Apartment$669,900
$3,054/yr taxListing Courtesy of ROYAL LEPAGE SIGNATURE REALTY

18 YONGE Street Unit# 3112, Toronto
Condo - Apartment$669,900
$3,054/yr taxListing Courtesy of ROYAL LEPAGE SIGNATURE REALTY

3306 - 14 YORK STREET, Toronto (Waterfront Communities)
Condo - Apartment$669,900
$4,132/yr taxListing Courtesy of HOMELIFE/BAYVIEW REALTY INC.

813 - 103 THE QUEENSWAY W, Toronto (High Park-Swansea)
Condo - Apartment$670,000
$2,918/yr taxListing Courtesy of RE/MAX WEST REALTY INC.

1412 - 1 YORKVILLE AVENUE, Toronto (Annex)
Condo - Apartment$670,000
$3,627/yr taxListing Courtesy of RIGHT AT HOME REALTY

2404 - 110 CHARLES STREET E, Toronto (Church-Yonge Corridor)
Condo - Apartment$665,000
$3,529/yr taxListing Courtesy of RE/MAX PROFESSIONALS INC.

213 - 560 KING STREET W, Toronto (Waterfront Communities)
Condo - Apartment$665,000
$3,786/yr taxListing Courtesy of EXP REALTY

308 - 111 ELIZABETH STREET, Toronto (Bay Street Corridor)
Condo - Apartment$675,000
$3,612/yr taxListing Courtesy of RE/MAX PLUS CITY TEAM INC.

1708 - 25 LOWER SIMCOE STREET, Toronto (Waterfront Communities)
Condo - Apartment$675,000
$2,948/yr taxListing Courtesy of SUTTON GROUP QUANTUM REALTY INC.

205 - 151 AVENUE ROAD, Toronto (Annex)
Condo - Apartment$675,000
$3,877/yr taxListing Courtesy of RE/MAX DASH REALTY

812 - 1 CONCORD CITYPLACE WAY, Toronto (Waterfront Communities)
Condo - Apartment$659,900
Listing Courtesy of PROMPTON REAL ESTATE SERVICES CORP.
Similar Properties ?Active Comparables — Search CriteriaSearch Radius2 kmPrice Range±5%Match Home TypeYesMatch BedroomsYes

1622 - 525 ADELAIDE STREET W, Toronto (Waterfront Communities)
Condo - Apartment$669,000
$3,039/yr taxListing Courtesy of RIGHT AT HOME REALTY

213 - 560 KING STREET W, Toronto (Waterfront Communities)
Condo - Apartment$665,000
$3,786/yr taxListing Courtesy of EXP REALTY

812 - 1 CONCORD CITYPLACE WAY, Toronto (Waterfront Communities)
Condo - Apartment$659,900
Listing Courtesy of PROMPTON REAL ESTATE SERVICES CORP.

516 - 20 GLADSTONE AVENUE, Toronto (Little Portugal)
Condo - Apartment$659,000
$2,700/yr taxListing Courtesy of RE/MAX EXPERTS

3410 - 80 JOHN STREET, Toronto (Waterfront Communities)
Condo - Apartment$679,000
$3,982/yr taxListing Courtesy of CENTURY 21 HERITAGE GROUP LTD.

811 - 150 EAST LIBERTY STREET, Toronto (Niagara)
Condo - Apartment$679,000
$3,310/yr taxListing Courtesy of ROYAL LEPAGE SIGNATURE REALTY

1916 - 4K SPADINA AVENUE, Toronto (Waterfront Communities)
Condo - Apartment$679,000
$3,047/yr taxListing Courtesy of REAL ESTATE HOMEWARD

2704 - 88 BLUE JAYS WAY, Toronto (Waterfront Communities)
Condo - Apartment$679,000
$4,396/yr taxListing Courtesy of SKYBOUND REALTY

606 - 600 QUEENS QUAY W, Toronto (Waterfront Communities)
Condo - Apartment$679,800
$2,804/yr taxListing Courtesy of FOREST HILL REAL ESTATE INC.

602 - 18 STAFFORD STREET, Toronto (Niagara)
Condo - Apartment$680,888
$2,979/yr taxListing Courtesy of RIGHT AT HOME REALTY

607 - 51 EAST LIBERTY STREET, Toronto (Niagara)
Condo - Apartment$655,000
$3,589/yr taxListing Courtesy of RE/MAX WEST REALTY INC.

2510 - 373 FRONT STREET W, Toronto (Waterfront Communities)
Condo$685,000
$2,752/yr taxListing Courtesy of RE/MAX ESCARPMENT REALTY INC.

2503 - 426 UNIVERSITY AVENUE, Toronto (University)
Condo - Apartment$685,000
$3,929/yr taxListing Courtesy of ROYAL LEPAGE SIGNATURE REALTY

1611 - 215 FORT YORK BOULEVARD, Toronto (Niagara)
Condo - Apartment$650,000
$2,639/yr taxListing Courtesy of CENTURY 21 PEOPLE'S CHOICE REALTY INC.

502 - 78 TECUMSETH STREET, Toronto (Niagara)
Condo - Apartment$650,000
$3,522/yr taxListing Courtesy of ZOLO REALTY

UPPER - 899 DUNDAS STREET W, Toronto (Trinity-Bellwoods)
Residential Commercial Mix$6,000/mo
Listing Courtesy of HC REALTY GROUP INC.

534 - 43 HANNA AVENUE, Toronto (Niagara)
Condo - Apartment$5,295/mo
Listing Courtesy of RE/MAX HALLMARK REALTY LTD.

1004 - 295 ADELAIDE ST W, Toronto (Waterfront Communities)
Condo - Apartment$5,000/mo
Listing Courtesy of BEST UNION REALTY INC.

331 - 629 KING STREET W, Toronto (Waterfront Communities)
Condo - Apartment$4,995/mo
Listing Courtesy of THE REAL ESTATE OFFICE INC.

806 - 505 RICHMOND STREET W, Toronto (Waterfront Communities)
Condo - Apartment$4,650/mo
Listing Courtesy of CHESTNUT PARK REAL ESTATE LIMITED

2512 - 300 FRONT STREET W, Toronto (Waterfront Communities)
Condo - Apartment$4,600/mo
Listing Courtesy of RIGHT AT HOME REALTY

509 - 57 SPADINA AVENUE, Toronto (Waterfront Communities)
Condo - Apartment$4,587/mo
Listing Courtesy of DIGI

6202 - 1 CONCORD CITYPLACE WAY, Toronto (Waterfront Communities)
Condo - Apartment$4,500/mo
Listing Courtesy of RE/MAX HALLMARK ARI ZADEGAN GROUP REALTY

4 - 114 OSSINGTON AVENUE, Toronto (Trinity-Bellwoods)
Residential Commercial Mix$4,300/mo
Listing Courtesy of PSR

914 - 628 FLEET STREET, Toronto (Niagara)
Condo - Apartment$4,200/mo
Listing Courtesy of ROYAL LEPAGE SIGNATURE REALTY

109 - 95 BATHURST STREET, Toronto (Waterfront Communities)
Condo - Apartment$4,200/mo
Listing Courtesy of ROYAL LEPAGE SIGNATURE REALTY

611 - 219 FORT YORK BOULEVARD, Toronto (Niagara)
Condo - Apartment$4,200/mo
Listing Courtesy of ICI SOURCE REAL ASSET SERVICES INC.

326 - 560 KING STREET W, Toronto (Waterfront Communities)
Condo - Apartment$4,000/mo
Listing Courtesy of RE/MAX ABOUTOWNE REALTY CORP.

560 W KING Street W Unit# 326, Toronto
Condo - Apartment$4,000/mo
Listing Courtesy of RE/MAX Aboutowne Realty Corp.

1014 - 480 FRONT STREET W, Toronto (Waterfront Communities)
Condo - Apartment$4,000/mo
Listing Courtesy of iCloud Realty Ltd.
Sold Comparables
Access to sold property data requires a registered and verified account with TRREB DDF integration.
Coming SoonRented Comparables
Access to rented property data requires a registered and verified account with TRREB DDF integration.
Coming SoonBook a Viewing
201 - 55 EAST LIBERTY STREET, Toronto (Niagara), Ontario, M6K3P9
