2 WINGATE PLACE, Toronto (Forest Hill North), Ontario, M5N2R1
MLS: C12959594 | House (Freehold)
$4,500 / monthly




































Property Description
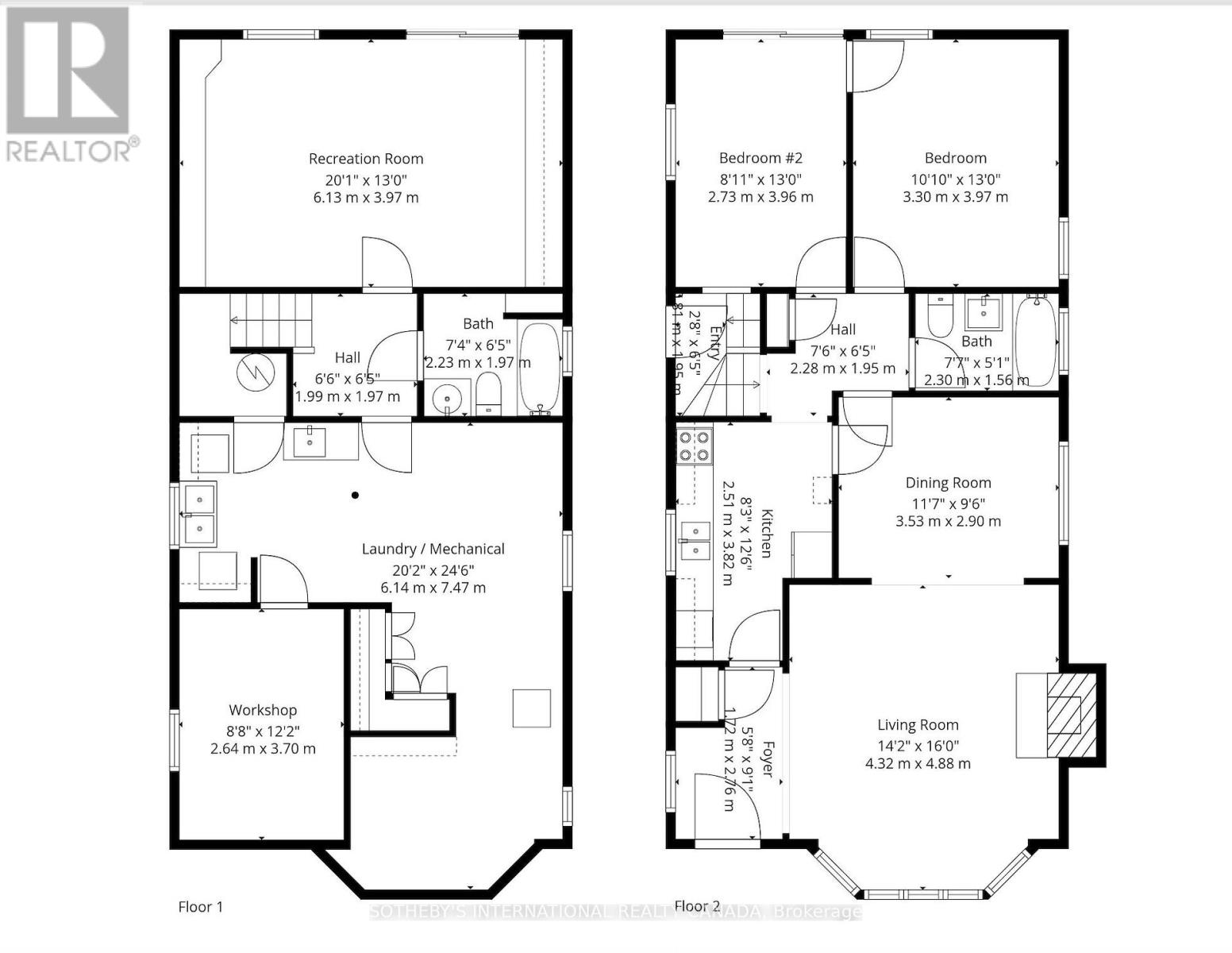
Step inside to discover a newly renovated kitchen featuring quartz countertops, a stylish backsplash, modern tile flooring and new stainless steel appliances, seamlessly flowing into a spacious open-concept living and dining area. This inviting space blends modern upgrades with original character details including a stained-glass window, bay window, crown moulding, elegant archway, and a grand fireplace that creates a warm and welcoming atmosphere. The main level offers two well-proportioned bedrooms with new broadloom and a refreshed 4-piece bathroom, providing comfortable and functional everyday living. The walk-out lower level adds exceptional versatility, featuring a spacious recreation room with built-in shelving and desk area, brand new laminate flooring, a newly renovated 3-piece bathroom with sleek Carrara marble inspired finishes, laundry, and ample storage, ideal for extended living space, a home office, or guest retreat. Additional improvements include a new roof (2023), new eaves (2025), high-efficiency furnace (approx. 2017), and exterior clean-outs, offering added peace of mind for future residents. Convenient 2 car parking (1 garage and 1 driveway). Enjoy living on tree-lined streets within a welcoming, family-friendly community, just moments to parks, playgrounds, shops, cafes, and dining. Ideally located near top-ranked schools including Forest Hill Collegiate with convenient access to TTC, the Eglinton West subway, and the Crosstown LRT for effortless commuting downtown. A rare opportunity to lease a beautifully updated home in one of Forest Hill North's most desirable and established neighbourhoods. (id:64974)
Quick Facts
- Property Type: House (Freehold)
- Style: Bungalow
- Bedrooms: 2 (2 above)
- Bathrooms: 2
- Ownership: Freehold
- Attached: No
- Fireplaces: 1
- Parking: 2.0 spaces (Detached Garage, Garage)
- Frontage: 30 ft (9.1 m)
Listing Provided by: SOTHEBY'S INTERNATIONAL REALTY CANADA
Board: Toronto Regional Real Estate Board
Data provided via CREA DDF®.
Detailed Features
Interior & Systems
- Heating: Forced air, Natural gas
- Cooling: Central air conditioning
- Basement: Partially finished, Walk out, N/A, N/A
- Appliances: Washer, Refrigerator, Dishwasher, Stove, Dryer, Window Coverings, Garage door opener
- Flooring: Tile, Laminate, Carpeted
Exterior & Construction
- Style: Bungalow
- Exterior: Brick
- Foundation: Block
- Sewer: Sanitary sewer
- Water: Municipal water
Lot & Land
- Frontage: 30 ft (9.1 m)
Community & Neighbourhood
- Neighbourhood: Forest Hill North
Room Details (7 rooms)
Listing Information
Listing History
MLS listing activity for 2 WINGATE PLACE, Toronto (Forest Hill North), Ontario, M5N2R1 — dates reflect when changes were recorded in the DDF
🚗 Travel times
Neighborhood Walkability
Mortgage & Cost Calculators
Nearby Homes ?Nearby Homes — Search CriteriaSearch Radius1 kmPrice Range±5%Match BedroomsYesMatch BathroomsYes

523 BRIAR HILL AVENUE, Toronto (Forest Hill North)
House$2,899,000
$15,783/yr taxListing Courtesy of RE/MAX REALTRON REALTY INC.

54 LATIMER AVENUE, Toronto (Forest Hill North)
House$1,699,900
$8,770/yr taxListing Courtesy of EXP REALTY

1031 SPADINA ROAD, Toronto (Forest Hill North)
House$2,998,000
$15,101/yr taxListing Courtesy of CHESTNUT PARK REAL ESTATE LIMITED

53 CASTLEWOOD ROAD, Toronto (Lawrence Park South)
House$3,399,000
$13,430/yr taxListing Courtesy of HARVEY KALLES REAL ESTATE LTD.

615 BRIAR HILL AVENUE, Toronto (Forest Hill North)
House$6,499,999
$25,678/yr taxListing Courtesy of RE/MAX REALTRON BARRY COHEN HOMES INC.

520 BRIAR HILL AVENUE, Toronto (Lawrence Park South)
House$8,000/mo
Listing Courtesy of CENTURY 21 HERITAGE GROUP LTD.

705 - 10 SHALLMAR BOULEVARD, Toronto (Forest Hill North)
Condo - Apartment$2,895/mo
Listing Courtesy of CITY REALTY POINT

268 CORTLEIGH BOULEVARD, Toronto (Lawrence Park South)
Single Family$3,295,000
$18,814/yr taxListing Courtesy of HARVEY KALLES REAL ESTATE LTD.

264 CORTLEIGH BOULEVARD, Toronto (Lawrence Park South)
House$6,995,000
$25,752/yr taxListing Courtesy of HARVEY KALLES REAL ESTATE LTD.

239 CORTLEIGH BOULEVARD, Toronto (Lawrence Park South)
House$10,789,000
$31,234/yr taxListing Courtesy of FOREST HILL REAL ESTATE INC.

28 CASTLE KNOCK ROAD, Toronto (Lawrence Park South)
House$1,799,900
$8,378/yr taxListing Courtesy of FOREST HILL REAL ESTATE INC.

413 ROSELAWN AVENUE, Toronto (Lawrence Park South)
House$1,625,000
$7,443/yr taxListing Courtesy of REAL BROKER ONTARIO LTD.

130 - 1001 ROSELAWN AVENUE, Toronto (Briar Hill-Belgravia)
Condo - Apartment$918,000
$3,408/yr taxListing Courtesy of HARVEY KALLES REAL ESTATE LTD.

2212 - 155 MARLEE AVENUE, Toronto (Briar Hill-Belgravia)
Condo - Apartment$749,000
$3,070/yr taxListing Courtesy of ROYAL LEPAGE TERREQUITY REALTY

335 LYTTON BOULEVARD, Toronto (Lawrence Park South)
House$8,299,000
$31,001/yr taxListing Courtesy of HARVEY KALLES REAL ESTATE LTD.
Similar Homes ?Similar Homes — Search CriteriaSearch Radius5 kmPrice Range±5%Match Home TypeYesMatch BedroomsYes

5609 - 1 BLOOR STREET E, Toronto (Church-Yonge Corridor)
Condo - Apartment$4,500/mo
Listing Courtesy of CENTRAL HOME REALTY INC.

702 - 40 PARK ROAD, Toronto (Rosedale-Moore Park)
Condo - Apartment$4,500/mo
Listing Courtesy of NEW WORLD 2000 REALTY INC.

281 SYMINGTON AVENUE, Toronto (Dovercourt-Wallace Emerson-Junction)
House$4,500/mo
Listing Courtesy of RE/MAX HALLMARK REALTY LTD.

1502 - 175 CUMBERLAND STREET, Toronto (Annex)
Condo - Apartment$4,500/mo
Listing Courtesy of SOTHEBY'S INTERNATIONAL REALTY CANADA

5409 - 1 YORKVILLE AVENUE, Toronto (Annex)
Condo - Apartment$4,400/mo
Listing Courtesy of INTERNATIONAL REALTY FIRM, INC.

801 - 20 COLLIER STREET, Toronto (Rosedale-Moore Park)
Condo - Apartment$4,650/mo
Listing Courtesy of SOTHEBY'S INTERNATIONAL REALTY CANADA

418 - 1 BEDFORD ROAD, Toronto (Annex)
Condo - Apartment$4,300/mo
Listing Courtesy of ROYAL LEPAGE TERREQUITY REALTY

49 OLIVE AVENUE, Toronto (Annex)
Row / Townhouse$4,300/mo
Listing Courtesy of SUTTON GROUP-ASSOCIATES REALTY INC.

TH104 - 5 YORK GARDEN WAY, Toronto (Yorkdale-Glen Park)
Condo - Row / Townhouse$4,275/mo
Listing Courtesy of SOTHEBY'S INTERNATIONAL REALTY CANADA

TH#101 - 5 YORK GARDEN WAY, Toronto (Yorkdale-Glen Park)
Condo - Row / Townhouse$4,275/mo
Listing Courtesy of SOTHEBY'S INTERNATIONAL REALTY CANADA
Similar Properties ?Active Comparables — Search CriteriaSearch Radius2 kmPrice Range±5%Match Home TypeYesMatch BedroomsYes

5609 - 1 BLOOR STREET E, Toronto (Church-Yonge Corridor)
Condo - Apartment$4,500/mo
Listing Courtesy of CENTRAL HOME REALTY INC.

702 - 40 PARK ROAD, Toronto (Rosedale-Moore Park)
Condo - Apartment$4,500/mo
Listing Courtesy of NEW WORLD 2000 REALTY INC.

281 SYMINGTON AVENUE, Toronto (Dovercourt-Wallace Emerson-Junction)
House$4,500/mo
Listing Courtesy of RE/MAX HALLMARK REALTY LTD.

1502 - 175 CUMBERLAND STREET, Toronto (Annex)
Condo - Apartment$4,500/mo
Listing Courtesy of SOTHEBY'S INTERNATIONAL REALTY CANADA

5409 - 1 YORKVILLE AVENUE, Toronto (Annex)
Condo - Apartment$4,400/mo
Listing Courtesy of INTERNATIONAL REALTY FIRM, INC.

801 - 20 COLLIER STREET, Toronto (Rosedale-Moore Park)
Condo - Apartment$4,650/mo
Listing Courtesy of SOTHEBY'S INTERNATIONAL REALTY CANADA

418 - 1 BEDFORD ROAD, Toronto (Annex)
Condo - Apartment$4,300/mo
Listing Courtesy of ROYAL LEPAGE TERREQUITY REALTY

49 OLIVE AVENUE, Toronto (Annex)
Row / Townhouse$4,300/mo
Listing Courtesy of SUTTON GROUP-ASSOCIATES REALTY INC.

TH104 - 5 YORK GARDEN WAY, Toronto (Yorkdale-Glen Park)
Condo - Row / Townhouse$4,275/mo
Listing Courtesy of SOTHEBY'S INTERNATIONAL REALTY CANADA

TH#101 - 5 YORK GARDEN WAY, Toronto (Yorkdale-Glen Park)
Condo - Row / Townhouse$4,275/mo
Listing Courtesy of SOTHEBY'S INTERNATIONAL REALTY CANADA
No rental comparables found in this area.
Sold Comparables
Access to sold property data requires a registered and verified account with TRREB DDF integration.
Coming SoonRented Comparables
Access to rented property data requires a registered and verified account with TRREB DDF integration.
Coming SoonBook a Viewing
2 WINGATE PLACE, Toronto (Forest Hill North), Ontario, M5N2R1
