2 LONGSHORE WAY, Whitby (Port Whitby), Ontario, L1N0M1
MLS: E12903816 | Townhouse (Freehold)
$868,000






















Property Description
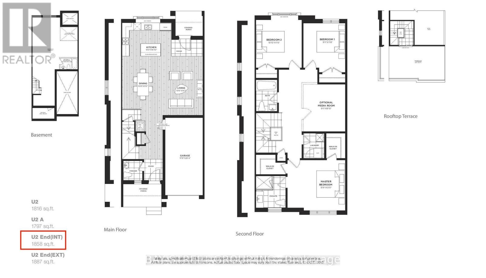
Stunning Corner-Unit Urban Style Townhome Offering Over 1,800 Sq. Ft. Of Bright, Spacious Living In The Highly Sought-After Port Whitby Community, Ideally Located Between Tranquil Lynde Creek And Scenic Whitby Harbour. The Main Floor Features 9-Foot Ceilings, Elegant Hardwood Flooring, And A Sun-Filled Open-Concept Layout Perfect For Modern Living And Entertaining, With A Contemporary Kitchen Boasting Stainless Steel Appliances, Ample Cabinetry, And A Convenient Breakfast Bar That Seamlessly Flows Into The Dining And Living Areas. The Second Floor Offers Three Generously Sized Bedrooms And A Media Room, Including A Spacious Primary Retreat With A Luxurious 5-Piece Ensuite. Enjoy Breathtaking Rooftop Terrace Views Overlooking Lake Ontario, Perfect For Relaxing Or Hosting Guests. Prime Location Just Steps To The Waterfront Trail, Marina, Beaches, Restaurants, Entertainment, Parks, Schools, Hospital, Whitby Centrum, Lynde Shores, And Shopping Plaza With Metro, With Quick Access To Hwy 401, 412, And The GO Station For Easy Commuting-An Exceptional Opportunity Combining Style, Space, And Location. (id:64974)
Quick Facts
- Property Type: Townhouse (Freehold)
- Bedrooms: 4 (3 above, 1 below)
- Bathrooms: 3 (1 half)
- Ownership: Freehold
- Attached: Yes
- Fireplaces: 1
- Parking: 2.0 spaces (Attached Garage, Garage)
- Frontage: 22 ft (6.8 m)
Costs
- Annual Taxes: $6,074.66
- Condo/HOA Fee: $225.00 / monthly
- Includes: Parcel of Tied Land
Listing Provided by: BAY STREET GROUP INC.
Board: Toronto Regional Real Estate Board
Data provided via CREA DDF®.
Detailed Features
Interior & Systems
- Heating: Forced air, Natural gas
- Cooling: Central air conditioning
- Basement: Unfinished, N/A
- Appliances: Washer, Refrigerator, Water meter, Dishwasher, Stove, Dryer, Window Coverings
- Flooring: Carpeted
Exterior & Construction
- Exterior: Brick
- Foundation: Concrete
- Sewer: Sanitary sewer
- Water: Municipal water
Lot & Land
- Frontage: 22 ft (6.8 m)
- Features: Flat site, Conservation/green belt
Community & Neighbourhood
- Building: Separate Electricity Meters
- Neighbourhood: Port Whitby
Room Details (7 rooms)
Listing Information
Listing History
MLS listing activity for 2 LONGSHORE WAY, Whitby (Port Whitby), Ontario, L1N0M1 — dates reflect when changes were recorded in the DDF
🚗 Travel times
Neighborhood Walkability
Mortgage & Cost Calculators
Nearby Homes ?Nearby Homes — Search CriteriaSearch Radius1 kmPrice Range±5%Match BedroomsYesMatch BathroomsYes

19 HAYDOCK WAY, Whitby (Port Whitby)
Row / Townhouse$804,000
$5,648/yr taxListing Courtesy of THE CONDO STORE REALTY INC.

57 JAMES GOVAN DRIVE, Whitby (Port Whitby)
House$1,179,000
$7,966/yr taxListing Courtesy of RE/MAX GOLD REALTY INC.

122 WHITBY SHORES, Whitby (Port Whitby)
House$888,800
$5,941/yr taxListing Courtesy of REMAX YOUR COMMUNITY REALTY

16 DOCKSIDE WAY, Whitby (Port Whitby)
Row / Townhouse$814,900
$5,742/yr taxListing Courtesy of THE CONDO STORE REALTY INC.

36 DOCKSIDE WAY, Whitby (Port Whitby)
Row / Townhouse$844,900
$5,542/yr taxListing Courtesy of TANYA TIERNEY TEAM REALTY INC.

1204 - 360 WATSON STREET, Whitby (Port Whitby)
Condo - Apartment$769,900
$4,462/yr taxListing Courtesy of CENTURY 21 LEADING EDGE REALTY INC.

815 - 340 WATSON STREET W, Whitby (Port Whitby)
Condo - Apartment$549,900
$3,983/yr taxListing Courtesy of LPT Realty

916 - 340 WATSON STREET W, Whitby (Port Whitby)
Condo - Apartment$558,000
$3,996/yr taxListing Courtesy of RE/MAX EXCEL REALTY LTD.

1209 - 340 WATSON ST STREET W, Whitby (Port Whitby)
Condo - Apartment$849,000
$5,502/yr taxListing Courtesy of ROYAL HERITAGE REALTY LTD.

208 - 340 WATSON STREET W, Whitby (Port Whitby)
Condo - Apartment$434,500
$3,662/yr taxListing Courtesy of RE/MAX HALLMARK REALTY LTD.

903 - 340 WATSON STREET W, Whitby (Port Whitby)
Condo - Apartment$775,000
$5,422/yr taxListing Courtesy of TANYA TIERNEY TEAM REALTY INC.

110 - 660 GORDON STREET N, Whitby (Port Whitby)
Condo - Apartment$3,100/mo
Listing Courtesy of THE NOOK REALTY INC.

110 - 660 GORDON STREET, Whitby (Port Whitby)
Condo - Apartment$715,000
$4,556/yr taxListing Courtesy of THE NOOK REALTY INC.

101 - 670 GORDON STREET, Whitby (Port Whitby)
Condo - Apartment$515,000
$3,597/yr taxListing Courtesy of THE NOOK REALTY INC.

312 - 670 GORDON STREET, Whitby (Port Whitby)
Condo - Apartment$3,000/mo
Listing Courtesy of EXP REALTY
Similar Homes ?Similar Homes — Search CriteriaSearch Radius5 kmPrice Range±5%Match Home TypeYesMatch BedroomsYes

148 GUTHRIE CRESCENT, Whitby (Lynde Creek)
House$869,800
$5,955/yr taxListing Courtesy of ROYAL HERITAGE REALTY LTD.

704 BROCK STREET S, Whitby (Downtown Whitby)
House$869,900
$5,662/yr taxListing Courtesy of RE/MAX HALLMARK CHAY REALTY

98 APPLEWOOD CRESCENT, Whitby (Blue Grass Meadows)
House$869,900
$6,248/yr taxListing Courtesy of RE/MAX ROUGE RIVER REALTY LTD.

612 MAPLE STREET W, Whitby (Downtown Whitby)
House$859,900
$5,808/yr taxListing Courtesy of KIC REALTY

57 DOUET LANE, Ajax (South East)
Row / Townhouse$849,000
$7,547/yr taxListing Courtesy of HOMELIFE CLASSIC REALTY INC.

38 MARJORAM DRIVE, Ajax (South East)
Row / Townhouse$889,000
$5,039/yr taxListing Courtesy of HOMELIFE/FUTURE REALTY INC.

886 AUDLEY ROAD S, Ajax (South East)
Row / Townhouse$845,000
$5,995/yr taxListing Courtesy of RE/MAX METROPOLIS REALTY

58 SELFRIDGE WAY, Whitby (Downtown Whitby)
Row / Townhouse$844,900
$4,782/yr taxListing Courtesy of ROYAL LEPAGE FRANK REAL ESTATE

3 HIALEAH CRESCENT, Whitby (Blue Grass Meadows)
House$895,000
$6,741/yr taxListing Courtesy of ROYAL LEPAGE FRANK REAL ESTATE

39 BARNFIELD CRESCENT, Ajax (Central East)
House$895,000
$7,317/yr taxListing Courtesy of HOMELIFE/FUTURE REALTY INC.

29 GLENMORE DRIVE, Whitby (Downtown Whitby)
House$839,000
$5,598/yr taxListing Courtesy of ROYAL LEPAGE FLOWER CITY REALTY

32 BLUEGILL CRESCENT, Whitby (Lynde Creek)
Row / Townhouse$839,000
$5,542/yr taxListing Courtesy of RE/MAX REAL ESTATE CENTRE INC.

310 CORONATION ROAD, Whitby
Row / Townhouse$899,000
$5,592/yr taxListing Courtesy of CENTURY 21 INNOVATIVE REALTY INC.

118 APPLEWOOD CRESCENT, Whitby (Blue Grass Meadows)
House$899,999
$6,168/yr taxListing Courtesy of THE AGENCY

920 GREENWOOD CRESCENT, Whitby (Downtown Whitby)
House$835,000
$4,782/yr taxListing Courtesy of NEW WORLD 2000 REALTY INC.
Similar Properties ?Active Comparables — Search CriteriaSearch Radius2 kmPrice Range±5%Match Home TypeYesMatch BedroomsYes

704 BROCK STREET S, Whitby (Downtown Whitby)
House$869,900
$5,662/yr taxListing Courtesy of RE/MAX HALLMARK CHAY REALTY

29 GLENMORE DRIVE, Whitby (Downtown Whitby)
House$839,000
$5,598/yr taxListing Courtesy of ROYAL LEPAGE FLOWER CITY REALTY

920 GREENWOOD CRESCENT, Whitby (Downtown Whitby)
House$835,000
$4,782/yr taxListing Courtesy of NEW WORLD 2000 REALTY INC.
No rental comparables found in this area.
Sold Comparables
Access to sold property data requires a registered and verified account with TRREB DDF integration.
Coming SoonRented Comparables
Access to rented property data requires a registered and verified account with TRREB DDF integration.
Coming SoonBook a Viewing
2 LONGSHORE WAY, Whitby (Port Whitby), Ontario, L1N0M1
