2 HENDERSHOT AVENUE, Welland (Lincoln/Crowland), Ontario, L3B1G9
MLS: X12477427 | House (Freehold)
$589,900








































Property Description
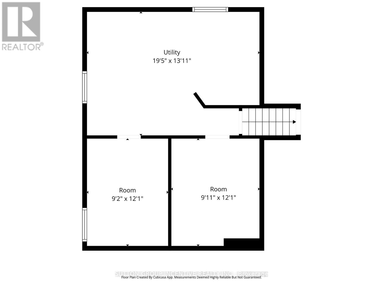
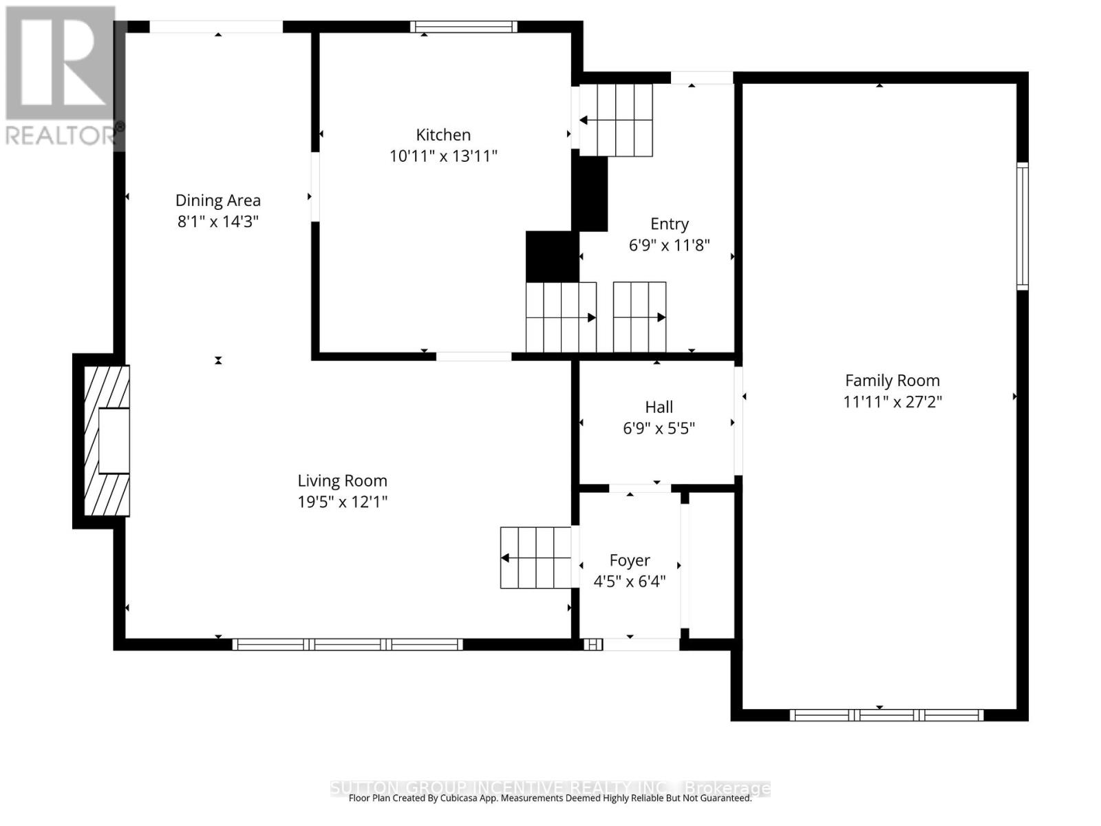
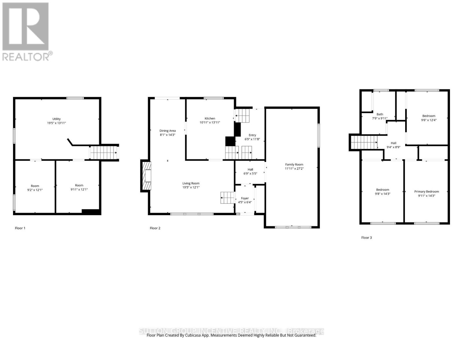
Location Location Location!!! This is Welland at its best, situated in the park lifestyle area of Lincoln Crowland, with a close walk to Memorial Park, Welland Canal Walking Trails, Shopping and easy Hwy access. This very popular quiet neighbourhood adorns this lovely 4 level sidesplit Home that has been just completely updated, New exterior deck with railings, Interior New laminate floors and Trim through out fresh paint, newly finished lower basement rooms, new hot water tank, newer roof, Separate 1.5 car Garage with man door side entry.The home also with a second rear access to the lower level can easily accommodate an inlaw or second suite. The current layout has been updated and modified to create a large open entry way with easy accessibility. This 4 level sidesplit offers many floor plan and housing arrangement options. When you first arrive you will notice the large driveway that comfortably fits 3- 4 vechiles. The main entry is bright and large allowing for easy access and welcoming of guests, there is a large media area on the main floor which is bright and spacious, the new stairs to the main living area boasts a gas fireplace and large kitchen with separate eating area with patio doors to the large new rear yard deck. A short flight of stairs takes you to the third floor where the three bedrooms are located and newer updated bathroom. The large rear yard can be used to relax and enjoy long summer nights and beautiful winter days. This home is ready for you. (id:64974)
Quick Facts
- Property Type: House (Freehold)
- Bedrooms: 3 (3 above)
- Bathrooms: 1
- Ownership: Freehold
- Attached: No
- Fireplaces: Yes
- Parking: 4 spaces (Detached Garage, Garage)
- Frontage: 60 ft (18.3 m)
Costs
- Annual Taxes: $4,031.00 (2025)
Listing Provided by: SUTTON GROUP INCENTIVE REALTY INC.
Board: Toronto Regional Real Estate Board
Data provided via CREA DDF®.
Detailed Features
Interior & Systems
- Heating: Forced air, Natural gas
- Cooling: Central air conditioning
- Basement: Partially finished, Partial
- Appliances: All
Exterior & Construction
- Exterior: Brick, Aluminum siding
- Foundation: Concrete
- Sewer: Sanitary sewer
- Water: Municipal water
Lot & Land
- Frontage: 60 ft (18.3 m)
- Features: Carpet Free
- Zoning: Rl1
Community & Neighbourhood
- Neighbourhood: 773 - Lincoln/Crowland
Room Details (10 rooms)
Listing Information
Listing History
Buy/Sell/Terminated/Expired listing history for 2 HENDERSHOT AVENUE, Welland (Lincoln/Crowland), Ontario, L3B1G9
Location & Neighborhood
🚗 Travel times
Neighborhood Walkability
Mortgage & Cost Calculators
Nearby Homes (Within 2km)
Similar Homes
Similar Properties
No rental comparables found in this area.
Sold Comparables
Access to sold property data requires a registered and verified account with TRREB DDF integration.
Coming SoonRented Comparables
Access to rented property data requires a registered and verified account with TRREB DDF integration.
Coming Soon
























