#2 - 41 MONDAMIN STREET, St. Thomas, Ontario, N5P2V3
MLS: X12652526 | Retail
$20.00 / square feet





Property Description
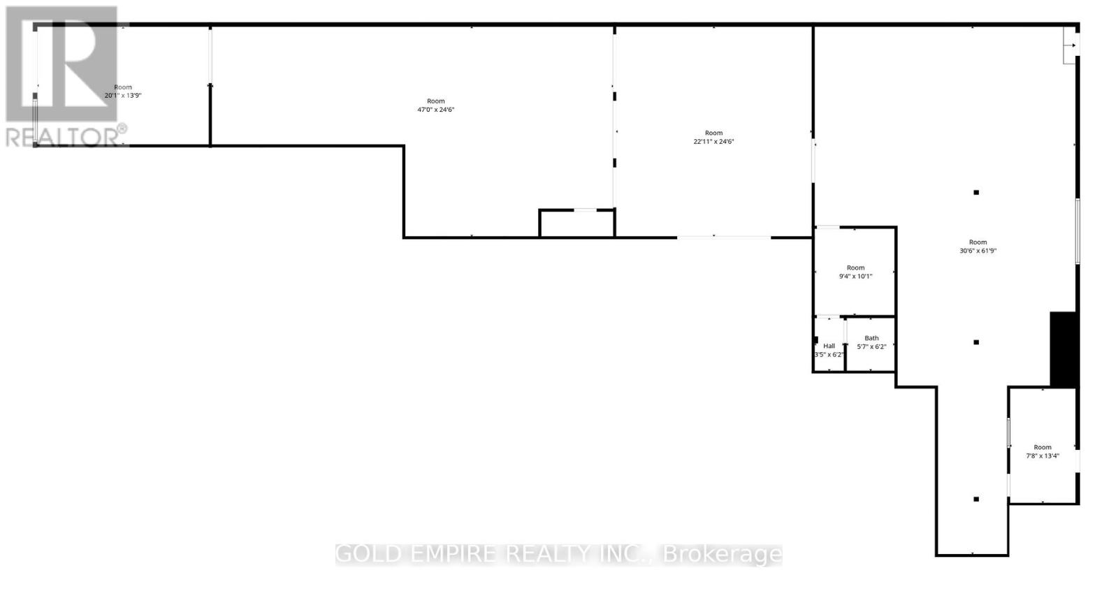
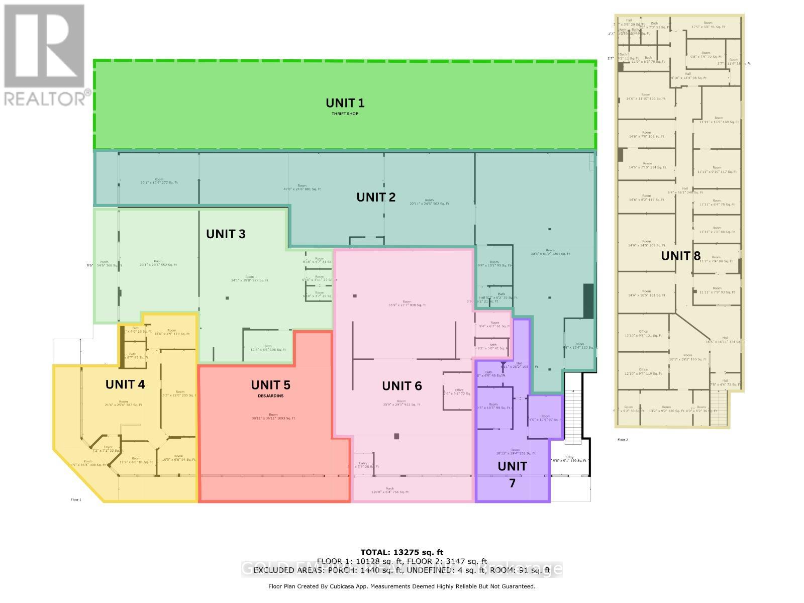
This prime commercial space in the heart of Downtown St. Thomas offers endless possibilities for your business. Zoned C2, it allows for a wide range of uses, including retail, office, restaurant, workshop, entertainment, and other permitted commercial uses.The building offers flexible layouts, with the ability to combine multiple units to create a larger contiguous space and greater overall square footage. Please refer to the plans in the attachments to explore the various unit combinations and layout options available.Located in a high-traffic area with excellent visibility and close proximity to other thriving businesses, this space is ideal for entrepreneurs looking to make a strong presence in the downtown core. Rent is $20 PSF + $5 TMI. (id:64974)
Quick Facts
- Property Type: Retail
- Bedrooms: None
- Bathrooms: None
- Living Area: 3,300 sq ft (306.6 m²)
- Frontage: 196 ft (59.8 m)
Costs
- Annual Taxes: $25,990.00
Listing Provided by: GOLD EMPIRE REALTY INC.
Board: London and St. Thomas Association of REALTORS®
Data provided via CREA DDF®.
Detailed Features
Interior & Systems
- Heating: Forced air, Natural gas
- Cooling: Fully air conditioned
Exterior & Construction
- Water: Municipal water
Lot & Land
- Frontage: 196 ft (59.8 m)
- Zoning: C2-7
Community & Neighbourhood
- Neighbourhood: St. Thomas
Listing Information
Listing History
Buy/Sell/Terminated/Expired listing history for #2 - 41 MONDAMIN STREET, St. Thomas, Ontario, N5P2V3
Location & Neighborhood
🚗 Travel times
Neighborhood Walkability
Mortgage & Cost Calculators
Similar Properties
No active comparables found in this area.
Sold Comparables
Access to sold property data requires a registered and verified account with TRREB DDF integration.
Coming SoonRented Comparables
Access to rented property data requires a registered and verified account with TRREB DDF integration.
Coming Soon














