2 - 217 JARVIS STREET, Toronto (Moss Park), Ontario, M5B2C1
MLS: C12494268 | Other
$1,750.00 / monthly




Property Description
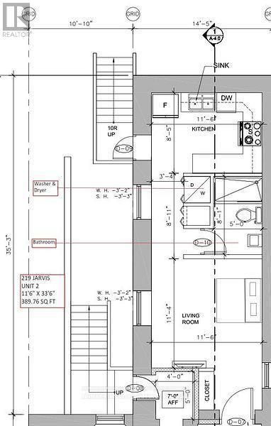
Welcome to New Garden Residences Where Historic Charm Meets Modern Comfort! This studio apartment features a layout with European fixtures, stainless steel appliances, quartz countertops, window coverings, in-suite washer and dryer, air conditioning, and a security intercom system. Ideally located just steps to the Financial District, St. Michaels Hospital, Toronto Metropolitan University, The Village, Eaton Centre, Yonge-Dundas Square, and more. Students welcome. Multiple units available. Some photos may be from similar or staged units. (id:64974)
Quick Facts
- Property Type: Other
- Bedrooms: 0
- Bathrooms: 1
Listing Provided by: RE/MAX WEALTH BUILDERS REAL ESTATE
Board: Toronto Regional Real Estate Board
Data provided via CREA DDF®.
Detailed Features
Interior & Systems
- Heating: Forced air, Natural gas
- Cooling: Central air conditioning
- Basement: None
Exterior & Construction
- Exterior: Brick
- Foundation: Block
- Sewer: Sanitary sewer
- Water: Municipal water
Lot & Land
- Features: Carpet Free
Community & Neighbourhood
- Neighbourhood: Moss Park
Listing Information
Listing History
Buy/Sell/Terminated/Expired listing history for 2 - 217 JARVIS STREET, Toronto (Moss Park), Ontario, M5B2C1
Location & Neighborhood
🚗 Travel times
Neighborhood Walkability
Mortgage & Cost Calculators
Nearby Homes (Within 2km)
Similar Homes
Similar Properties
Sold Comparables
Access to sold property data requires a registered and verified account with TRREB DDF integration.
Coming SoonRented Comparables
Access to rented property data requires a registered and verified account with TRREB DDF integration.
Coming Soon
































