2 - 1591 SOUTH PARADE COURT, Mississauga (East Credit), Ontario, L5M6G1
MLS: W12795524 | Townhouse (Condo)
$735,000


































Property Description
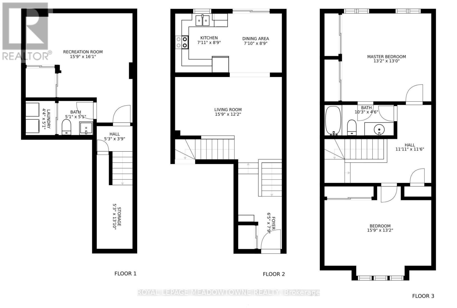
Welcome to this beautiful, freshly painted townhouse in a sought-after Mississauga pocket! Set at the end of a quiet court, this home is perfectly located minutes from Hwys 403/401, Square One, and the GO Station. The main floor features a open-concept living room and a bright dining room with an overview of the backyard. The modern kitchen includes SS appliances, sleek quartz countertops, and a stylish backsplash. This layout features two absolutely massive, king-sized bedrooms-the 2nd bedroom is as large as the Primary! Plus, a versatile flex space easily converts to a 3rd bedroom, office, or gym. The garage Includes a Level 2 EV charger. Enjoy a finished rec room and a clever storage loft in the garage. Turn-key living at its finest! Relax under your private gazebo or enjoy the neighbourhood park just paces away. Steps to visitor parking. (id:64974)
Quick Facts
- Property Type: Townhouse (Condo)
- Bedrooms: 3 (2 above, 1 below)
- Bathrooms: 2 (1 half)
- Ownership: Condo/Strata
- Attached: Yes
- Parking: 2 spaces (Attached Garage, Garage)
Costs
- Annual Taxes: $4,304.00
- Condo/HOA Fee: $409.41 / monthly
- Corp: MRCM LTD
- Includes: Insurance, Parking
Listing Provided by: ROYAL LEPAGE MEADOWTOWNE REALTY
Board: Toronto Regional Real Estate Board
Data provided via CREA DDF®.
Detailed Features
Interior & Systems
- Heating: Forced air, Natural gas
- Cooling: Central air conditioning
- Basement: Finished, N/A
- Appliances: Washer, Central Vacuum, Dryer, Blinds, Garage door opener remote(s), Water Heater
- Flooring: Tile, Laminate
Exterior & Construction
- Exterior: Brick, Shingles
Lot & Land
- Features: Carpet Free
Community & Neighbourhood
- Community: Pets Allowed With Restrictions
- Neighbourhood: East Credit
Room Details (6 rooms)
Listing Information
Listing History
Buy/Sell/Terminated/Expired listing history for 2 - 1591 SOUTH PARADE COURT, Mississauga (East Credit), Ontario, L5M6G1
Location & Neighborhood
🚗 Travel times
Neighborhood Walkability
Mortgage & Cost Calculators
Nearby Homes (Within 2km)
Similar Homes
Similar Properties
No rental comparables found in this area.
Sold Comparables
Access to sold property data requires a registered and verified account with TRREB DDF integration.
Coming SoonRented Comparables
Access to rented property data requires a registered and verified account with TRREB DDF integration.
Coming Soon






















