1E - 609 WILLIAM STREET, Cobourg, Ontario, K9A3A5
MLS: X12713594 | Offices
$875.00 / monthly







Property Description
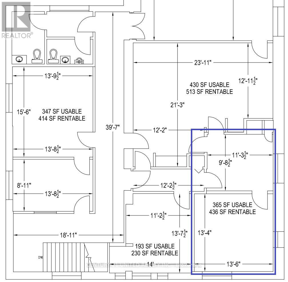
Second floor office space that is made up of two rooms and is available for rent JUNE 1, 2026 in the beautiful and well-maintained 609 William St. Plaza between downtown Cobourg and HWY 401 Unit 1E: 365sqft RENT is $875 a month and ALL INCLUSIVE: property taxes, maintenance, building insurance, A/C, heat, hydro, parking, snow removal, and exterior security cameras only H.S.T. and internet is added to rent! The second floor has 20 stairs leading up and there are 2-2 pc bathroom shared by the other tenants on that floor. (id:64974)
Quick Facts
- Property Type: Offices
- Bedrooms: None
- Bathrooms: 2
- Living Area: 365 sq ft (33.9 m²)
- Lot Size: 365.0000 acres (147.71 ha)
- Frontage: 1,324 ft (403.6 m)
Listing Provided by: CENTURY 21 UNITED REALTY INC.
Board: Central Lakes Association of REALTORS®
Data provided via CREA DDF®.
Detailed Features
Interior & Systems
- Heating: Forced air, Natural gas
- Cooling: Partially air conditioned
Exterior & Construction
- Water: Municipal water
Lot & Land
- Lot Size: 365.0000 acres (147.71 ha)
- Frontage: 1,324 ft (403.6 m)
- Zoning: COMMERCIAL
Community & Neighbourhood
- Neighbourhood: Cobourg
Listing Information
Listing History
Buy/Sell/Terminated/Expired listing history for 1E - 609 WILLIAM STREET, Cobourg, Ontario, K9A3A5
Location & Neighborhood
🚗 Travel times
Neighborhood Walkability
Mortgage & Cost Calculators
Similar Homes
Similar Properties
Sold Comparables
Access to sold property data requires a registered and verified account with TRREB DDF integration.
Coming SoonRented Comparables
Access to rented property data requires a registered and verified account with TRREB DDF integration.
Coming Soon










