196 WASHINGTON STREET, Zorra (Thamesford), Ontario, N0M2M0
MLS: X12980088 | House (Freehold)
$679,000











































Property Description
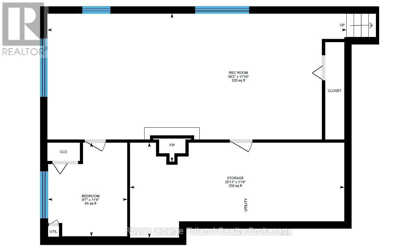
Big Lot, Beautiful Home, Big Opportunity! Set on a standout 99x165 ft treed lot (approx .37 acres) in a quiet, established north Thamesford pocket, this brick ranch blends timeless character with everyday comfort - and offers a lot & location that are becoming increasingly hard to find - a home that balances character & comfort - well-kept and ready for what's ahead. A double garage with inside entry & a double drive for 6 vehicles adds everyday ease, while a short walk connects you to the school, ballpark, public pool, Thames River trails & dog park. Easy access to London, Woodstock, Ingersoll & 401 adds to the appeal. Inside, a welcoming entry opens to a bright living room with pristine hardwood through most of the main floor. Pocket-style French doors add charm & flexibility, an ideal balance of traditional design & modern function! The kitchen is a highlight-warm, well-crafted & thoughtfully updated with rich cherry cabinetry, granite counters & a gas range that will impress any home cook. Open to the dining area, it's a natural gathering place for both daily living & entertaining. A spacious laundry/mudroom offers garage & backyard access, perfect for busy households and/or pets. The nearby 3-pce bath is conveniently positioned. At the west end, a separate bedroom wing sits behind a French door for added quiet. Two bedrooms sit on either side of a central 4-pce bath for a comfortable layout. The finished lower adds a fabulous second living area with a huge 36 ft family room, gas fireplace, oversized windows & new carpet (2025). A separate office offers potential for a 3rd bedroom plus there's lots of storage. Outside, the lot truly sets this property apart - mature trees, room to roam - it opens up endless potential for a future shop, pool, or additional residential unit (buyer to verify). Clean, efficient hot water radiant heat, c/air, water softener & fibre internet! Space to settle, stretch, and see what's next - this is Thamesford living with room to grow! (id:64974)
Quick Facts
- Property Type: House (Freehold)
- Style: Bungalow
- Bedrooms: 2 (2 above)
- Bathrooms: 2
- Ownership: Freehold
- Attached: No
- Fireplaces: 1
- Parking: 8.0 spaces (Attached Garage, Garage, Inside Entry)
- Frontage: 99 ft (30.2 m)
Costs
- Annual Taxes: $3,551.00
Listing Provided by: Royal Lepage Triland Realty Brokerage
Board: Woodstock Ingersoll Tillsonburg and Area Association of REALTORS® (WITAAR)
Data provided via CREA DDF®.
Detailed Features
Interior & Systems
- Cooling: Central air conditioning
- Basement: Partially finished, Full
- Appliances: Washer, Refrigerator, Water meter, Water softener, Central Vacuum, Dishwasher, Range, Dryer, Microwave, Window Coverings, Garage door opener, Garage door opener remote(s)
- Flooring: Hardwood
- Utilities: Sewer, Electricity, Cable
- Security: Smoke Detectors
- Fireplace Features: Insert
Exterior & Construction
- Style: Bungalow
- Exterior: Brick
- Foundation: Concrete
- Fencing: Partially fenced
- Sewer: Sanitary sewer
- Water: Municipal water
Lot & Land
- Frontage: 99 ft (30.2 m)
- Features: Wooded area, Level
- Zoning: R1
Community & Neighbourhood
- Community: School Bus, Community Centre
- Building: Fireplace(s)
- Neighbourhood: Thamesford
Room Details (9 rooms)
Listing Information
Listing History
MLS listing activity for 196 WASHINGTON STREET, Zorra (Thamesford), Ontario, N0M2M0 — dates reflect when changes were recorded in the DDF
🚗 Travel times
Neighborhood Walkability
Mortgage & Cost Calculators
Nearby Homes ?Nearby Homes — Search CriteriaSearch Radius1 kmPrice Range±5%Match BedroomsYesMatch BathroomsYes

169 BYRON STREET, Zorra (Thamesford)
House$609,000
$3,642/yr taxListing Courtesy of MAVERICK REAL ESTATE INC.

8 - 200 BROCK STREET, Zorra (Thamesford)
Condo - Apartment$1,800/mo
Listing Courtesy of MAVERICK REAL ESTATE INC.

8 - 183 BROCK STREET, Zorra (Thamesford)
Row / Townhouse$549,900
Listing Courtesy of MAVERICK REAL ESTATE INC.

146 MIDDLETON Street, Thamesford
Row / Townhouse$2,349/mo
Listing Courtesy of RE/MAX Real Estate Centre Inc.

80 MIDDLETON STREET, Zorra (Thamesford)
Row / Townhouse$2,350/mo
Listing Courtesy of RE/MAX PRESIDENT REALTY
Similar Homes ?Similar Homes — Search CriteriaSearch Radius5 kmPrice Range±5%Match Home TypeYesMatch BedroomsYes

116 POPPLEWELL CRESCENT, Ottawa
Row / Townhouse$679,000
$4,074/yr taxListing Courtesy of SOTHEBY'S INTERNATIONAL REALTY CANADA

4 D'ARCY STREET, Perth
House$679,000
$4,167/yr taxListing Courtesy of COLDWELL BANKER SETTLEMENT REALTY

3410 - 80 JOHN STREET, Toronto (Waterfront Communities)
Condo - Apartment$679,000
$3,982/yr taxListing Courtesy of CENTURY 21 HERITAGE GROUP LTD.

303 CONCESSION 2 ROAD, Norfolk (Townsend)
House$679,000
$3,834/yr taxListing Courtesy of Royal Lepage R.E. Wood Realty Brokerage

34 DERBY DRIVE N, Haldimand
House$679,000
$5,140/yr taxListing Courtesy of RE/MAX PRESIDENT REALTY

20 PULLA STREET, Quinte West (Murray Ward)
Row / Townhouse$679,000
$4,694/yr taxListing Courtesy of ROYAL LEPAGE PROALLIANCE REALTY

415 - 20 FASHION ROSE WAY, Toronto (Willowdale East)
Condo - Apartment$679,000
$3,001/yr taxListing Courtesy of FOREST HILL REAL ESTATE INC.

1101 - 5 NORTHTOWN WAY, Toronto (Willowdale East)
Condo - Apartment$679,000
$3,363/yr taxListing Courtesy of REAL ONE REALTY INC.

21 WEST Street, Dundas
House$679,000
$3,250/yr taxListing Courtesy of Sutton Group Realty Systems

133 PUGH STREET, Perth East (Milverton)
House$679,000
Listing Courtesy of EXP REALTY

51 APPLEWOOD DRIVE, Brighton
House$679,000
$4,333/yr taxListing Courtesy of ROYAL LEPAGE PROALLIANCE REALTY

12 MURRAY STREET, Sundridge
House$679,000
$5,950/yr taxListing Courtesy of Royal LePage Lakes Of Muskoka Realty

246 MADISON Avenue S, Kitchener
House$679,000
$3,612/yr taxListing Courtesy of International Realty Firm, Inc.

4249 ACADEMY Street, Beamsville
House$679,000
$4,331/yr taxListing Courtesy of KELLER WILLIAMS INNOVATION REALTY

48 ARBUTUS Crescent, Stoney Creek
House$679,000
$4,656/yr taxListing Courtesy of Realty Network
Similar Properties ?Active Comparables — Search CriteriaSearch Radius2 kmPrice Range±5%Match Home TypeYesMatch BedroomsYes
No active comparables found in this area.
Sold Comparables
Access to sold property data requires a registered and verified account with TRREB DDF integration.
Coming SoonRented Comparables
Access to rented property data requires a registered and verified account with TRREB DDF integration.
Coming SoonBook a Viewing
196 WASHINGTON STREET, Zorra (Thamesford), Ontario, N0M2M0
