1952 NOTTAWASAGA CONCESSION 6 N, Clearview, Ontario, L0M1S0
MLS: S12923832 | House (Freehold)
$1,375,000






















































Property Description
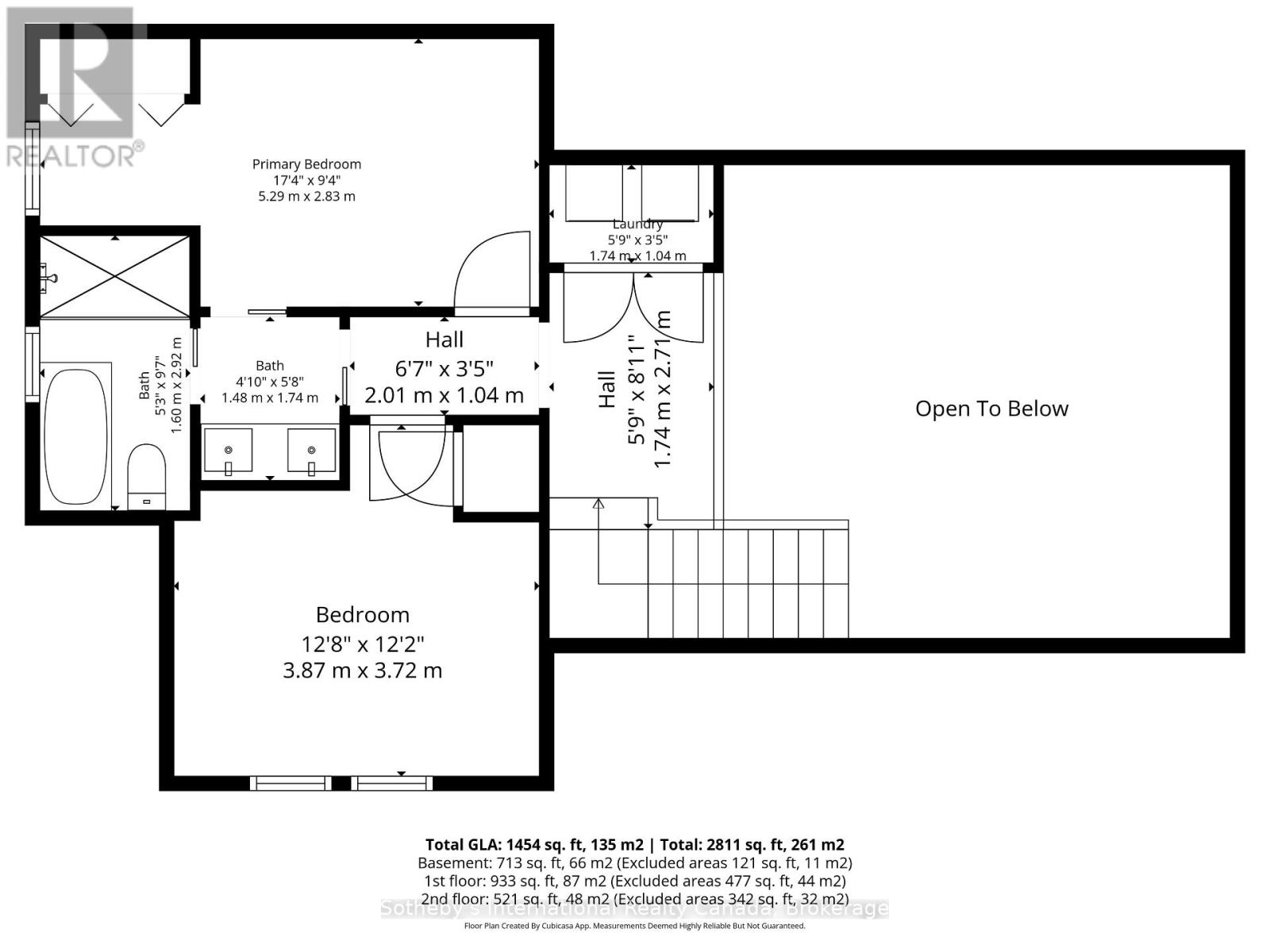
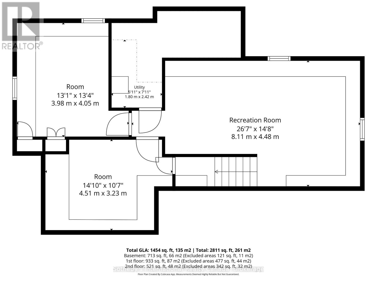
Solid brick farmhouse circa 1900, fully renovated inside and out, offering over 2,100 sq ft of finished living space on a private 2.6-acre parcel in Clearview Township. Blending timeless character with modern design, this property is surrounded by mature trees and open countryside, capturing stunning 180-degree views of the Niagara Escarpment, with sunsets and the evening lights of Blue Mountain Resort in the distance. The thoughtfully redesigned interior features an open-concept main level with soaring cathedral ceilings, a propane linear fireplace, and expansive windows that flood the space with natural light. The kitchen is equipped with a large centre island, quartz countertops, and stainless steel appliances, ideal for everyday living and entertaining. A striking mono staircase with glass railing adds architectural appeal, while multiple walkouts lead to three new decks, creating seamless indoor-outdoor living. A 3-piece bathroom completes the main floor. Upstairs offers two spacious bedrooms and a Jack and Jill 4-piece bathroom with double sinks, a soaker tub and standalone shower. The fully finished lower level provides a bright family room, additional bedroom, and office, bringing the total to 2+1 bedrooms. Extensive upgrades (2023-2025) include new windows, doors, roof, insulation, well, septic, and mechanical systems. In-floor heating in bathrooms, water treatment system, air exchanger, and on-demand hot water ensure year-round comfort. Ideally located minutes to Blue Mountain, Collingwood, Wasaga Beach, and Creemore for skiing, beaches, trails, dining, and shopping. (id:64974)
Quick Facts
- Property Type: House (Freehold)
- Bedrooms: 3 (2 above, 1 below)
- Bathrooms: 2
- Ownership: Freehold
- Attached: No
- Fireplaces: 1
- Parking: 15.0 spaces (No Garage)
Costs
- Annual Taxes: $3,381.00 (2025)
Listing Provided by: Sotheby's International Realty Canada
Board: OnePoint Association of REALTORS®
Data provided via CREA DDF®.
Detailed Features
Interior & Systems
- Heating: Forced air, Propane
- Cooling: Central air conditioning, Air exchanger
- Basement: Finished, Full
- Appliances: Washer, Refrigerator, Water softener, Dishwasher, Stove, Dryer, Water Treatment, Hot Water Instant, Water Heater - Tankless, Water Heater
- Flooring: Vinyl
- Utilities: Electricity, Cable
- Security: Smoke Detectors
- Fireplace Features: Insert
Exterior & Construction
- Exterior: Brick
- Foundation: Concrete
- Sewer: Septic System
- Water: Drilled Well
Lot & Land
- Features: Wooded area, Open space, Flat site, Conservation/green belt, Dry, Level, Sump Pump
- View: View
- Zoning: TB
Community & Neighbourhood
- Community: School Bus
- Building: Fireplace(s)
- Neighbourhood: Rural Clearview
Room Details (11 rooms)
Listing Information
Listing History
MLS listing activity for 1952 NOTTAWASAGA CONCESSION 6 N, Clearview, Ontario, L0M1S0 — dates reflect when changes were recorded in the DDF
🚗 Travel times
Neighborhood Walkability
Mortgage & Cost Calculators
Similar Homes ?Similar Homes — Search CriteriaSearch Radius5 kmPrice Range±5%Match Home TypeYesMatch BedroomsYes

110 BIRKSHIRE DRIVE, Aurora (Bayview Wellington)
House$1,375,000
$6,263/yr taxListing Courtesy of RE/MAX HALLMARK CHAY REALTY

90 ARAGON ROAD, Kingston (City North of 401)
House$1,375,000
$7,801/yr taxListing Courtesy of CENTURY 21 HERITAGE GROUP LTD., BROKERAGE

250 RICHARDSON AVENUE, Ottawa
House$1,375,000
$8,778/yr taxListing Courtesy of RE/MAX HALLMARK REALTY GROUP

301 - 397 ROYAL ORCHARD BOULEVARD, Markham (Royal Orchard)
Condo - Apartment$1,375,000
Listing Courtesy of EXP REALTY

9 CARONPORT CRESCENT, Toronto (Parkwoods-Donalda)
House$1,375,000
$6,681/yr taxListing Courtesy of SKYBOUND REALTY

294 CAWTHRA BOULEVARD, Newmarket (Central Newmarket)
House$1,375,000
$7,828/yr taxListing Courtesy of RE/MAX HALLMARK YORK GROUP REALTY LTD.

444 COOMBS COURT, Milton (SC Scott)
House$1,375,000
$5,790/yr taxListing Courtesy of ROYAL LEPAGE REAL ESTATE SERVICES LTD.

1938 TURKEY POINT Road, Simcoe
House$1,375,000
$5,067/yr taxListing Courtesy of Right at Home Realty

126 ABERFOYLE MILL CRESCENT, Puslinch (Aberfoyle)
Condo - House$1,375,000
$5,550/yr taxListing Courtesy of REVEL REALTY INC.

4936 VASEY ROAD, Midland
House$1,375,000
$8,134/yr taxListing Courtesy of RE/MAX HALLMARK CHAY REALTY

163 PARKSIDE Drive, Brantford
House$1,375,000
$1/yr taxListing Courtesy of Royal LePage Action Realty

1 BAYBERRY ROAD, Mono
House$1,375,000
$6,580/yr taxListing Courtesy of HOME AND BUSINESS REALTY

1 KIRKWOOD CRESCENT, Caledon
House$1,375,000
$6,510/yr taxListing Courtesy of RE/MAX REAL ESTATE CENTRE INC.

63 CLUBHOUSE DRIVE, Huntsville (Chaffey)
House$1,375,000
$7,984/yr taxListing Courtesy of Harvey Kalles Real Estate Ltd.

2602 MUSKOKA 10 ROAD, Huntsville (Brunel)
House$1,375,000
$5,089/yr taxListing Courtesy of Sutton Group Muskoka Realty Inc.
Similar Properties ?Active Comparables — Search CriteriaSearch Radius2 kmPrice Range±5%Match Home TypeYesMatch BedroomsYes
No active comparables found in this area.
No rental comparables found in this area.
Sold Comparables
Access to sold property data requires a registered and verified account with TRREB DDF integration.
Coming SoonRented Comparables
Access to rented property data requires a registered and verified account with TRREB DDF integration.
Coming SoonBook a Viewing
1952 NOTTAWASAGA CONCESSION 6 N, Clearview, Ontario, L0M1S0
