1940 IRONSTONE Drive Unit# 15, Burlington, Ontario, L7L0E4
MLS: 40813482 | Retail
$1,179,000























Property Description
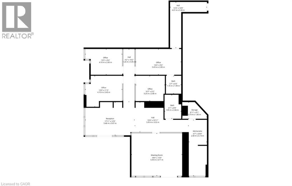
Prime commercial opportunity in a highly sought-after location! This professional office unit, currently occupied by Tangri Law Firm, is ideally situated on the corner of 1940 Ironstone Drive in the heart of Burlington, offering excellent visibility and convenient access right on Appleby Line. The unit features a well-designed layout with four private offices, a spacious boardroom, two washrooms, and a functional kitchenette perfect for a wide range of professional uses. Five separate entrances provide added flexibility, accessibility, and potential for multiple access points or division of space. Fronting onto Appleby Line, this unit benefits from strong exposure and high traffic flow, making it an ideal location for businesses seeking both presence and convenience. Ample parking and proximity to major highways, shopping, and amenities further enhance the appeal. A turnkey space in a prime commercial corridor perfect for law firms, accounting offices, medical professionals, or other service-based businesses. (id:64974)
Quick Facts
- Property Type: Retail
- Bedrooms: None
- Bathrooms: None
- Living Area: 1,916 sq ft (178.0 m²)
- Year Built: 2013
- Ownership: Condo/Strata
Costs
- Annual Taxes: $12,072.00
- Condo/HOA Fee: $1,087.76 / monthly
- Includes: Insurance
Listing Provided by: RE/MAX Escarpment Realty Inc.
Board: Cornerstone Association of REALTORS®
Data provided via CREA DDF®.
Detailed Features
Interior & Systems
- Basement: None
- Security: Alarm system
Exterior & Construction
- Exterior: Brick, Stucco
- Foundation: Poured Concrete
- Sewer: Municipal sewage system
- Water: Municipal water
Lot & Land
- Features: Visual exposure, Paved driveway
- Zoning: UCR1-388
Community & Neighbourhood
- Subdivision: 354 - Tansley
Listing Information
Listing History
MLS listing activity for 1940 IRONSTONE Drive Unit# 15, Burlington, Ontario, L7L0E4 — dates reflect when changes were recorded in the DDF
🚗 Travel times
Neighborhood Walkability
Mortgage & Cost Calculators
Nearby Homes ?Nearby Homes — Search CriteriaSearch Radius1 kmPrice Range±5%Match BedroomsYesMatch BathroomsYes
Similar Homes ?Similar Homes — Search CriteriaSearch Radius5 kmPrice Range±5%Match Home TypeYesMatch BedroomsYes

15 - 1940 IRONSTONE DRIVE, Burlington (Uptown)
Retail$1,179,000
$12,072/yr taxListing Courtesy of RE/MAX ESCARPMENT REALTY INC.

3 - 5006 SOUTH SERVICE ROAD, Burlington (Industrial Burlington)
Retail$1,199,000
$6,556/yr taxListing Courtesy of RE/MAX REALTY SERVICES INC.

5848 FERRY STREET, Niagara Falls (Dorchester)
Retail$1,188,888
$6,600/yr taxListing Courtesy of EXP REALTY

2 ERIE Avenue S, Fisherville
Retail$1,189,000
$5,378/yr taxListing Courtesy of RE/MAX Escarpment Realty Inc.

88-90 MAIN STREET, Erin
Retail$1,190,000
$9,078/yr taxListing Courtesy of Keller Williams Home Group Realty

39 Durham Street, Sudbury
Commercial Mix$1,190,000
Listing Courtesy of ROYAL LEPAGE NORTH HERITAGE REALTY, BROKERAGE

226 KING STREET, Welland (Welland Downtown)
Retail$1,195,000
$6,461/yr taxListing Courtesy of REVEL REALTY INC.

127-129 - 4750 YONGE STREET, Toronto (Lansing-Westgate)
Retail$1,199,000
$16,777/yr taxListing Courtesy of CENTURY 21 HERITAGE GROUP LTD.

1346 KENNEDY ROAD, Toronto (Dorset Park)
Residential Commercial Mix$1,199,000
$5,800/yr taxListing Courtesy of CENTURY 21 KING'S QUAY REAL ESTATE INC.

1268 MAIN STREET E, Milton (DE Dempsey)
Retail$1,199,000
$7,489/yr taxListing Courtesy of RIGHT AT HOME REALTY

1048 GERRARD STREET E, Toronto (South Riverdale)
Residential Commercial Mix$1,199,000
$9,769/yr taxListing Courtesy of CENTURY 21 LEADING EDGE REALTY INC.

431 DOUGALL AVENUE, Caledon
Retail$1,199,300
$6,227/yr taxListing Courtesy of ROYAL LEPAGE SIGNATURE REALTY

330-334 CHARLOTTE STREET W, Peterborough (Town Ward 3)
Residential Commercial Mix$1,199,560
$9,483/yr taxListing Courtesy of CENTURY 21 UNITED REALTY INC.

1079 WELLINGTON STREET W, Ottawa
Retail$1,199,900
$13,924/yr taxListing Courtesy of EXP REALTY

1281 DAVENPORT ROAD, Toronto (Dovercourt-Wallace Emerson-Junction)
Retail$1,199,900
$8,539/yr taxListing Courtesy of HOMELIFE LANDMARK REALTY INC.
Similar Properties ?Active Comparables — Search CriteriaSearch Radius2 kmPrice Range±5%Match Home TypeYesMatch BedroomsYes

15 - 1940 IRONSTONE DRIVE, Burlington (Uptown)
Retail$1,179,000
$12,072/yr taxListing Courtesy of RE/MAX ESCARPMENT REALTY INC.

3 - 5006 SOUTH SERVICE ROAD, Burlington (Industrial Burlington)
Retail$1,199,000
$6,556/yr taxListing Courtesy of RE/MAX REALTY SERVICES INC.
No rental comparables found in this area.
Sold Comparables
Access to sold property data requires a registered and verified account with TRREB DDF integration.
Coming SoonRented Comparables
Access to rented property data requires a registered and verified account with TRREB DDF integration.
Coming SoonBook a Viewing
1940 IRONSTONE Drive Unit# 15, Burlington, Ontario, L7L0E4
