193 BLOOR STREET W, Oshawa (Lakeview), Ontario, L1J1P5
MLS: E12606432 | House (Freehold)
$849,000






Property Description
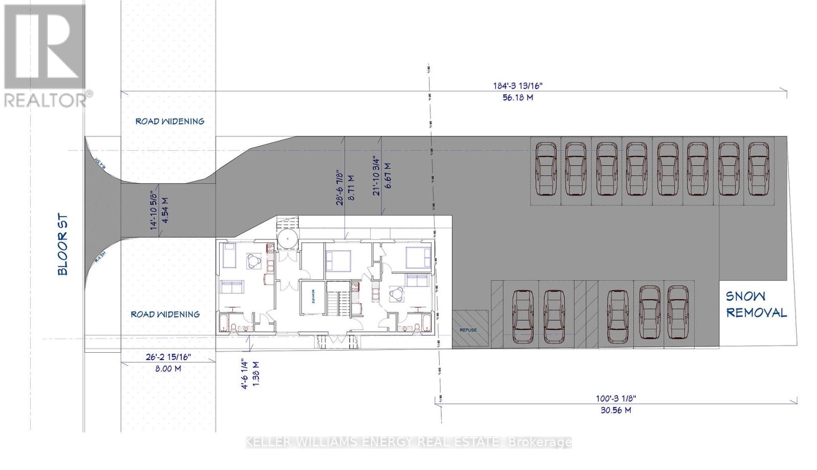
Location, Location, Location! Huge Opportunity To Hold For Future Investment Or Development. With R6-C Zoning Develop Into An Apartment Building, Long Term Care Facility, Nursing Home Or Retirement Home. Surrounded By Large High Rise Multi-family Properties. Currently Used As A 2 Bedroom, 2 Bathroom Home With 2nd Floor Bonus Room. **EXTRAS** Detached garage with power, newer gas furnace, 200 Amp service. Sold as-is-where-is. Some renovations required to make existing structure liveable. (id:64974)
Quick Facts
- Property Type: House (Freehold)
- Bedrooms: 0
- Bathrooms: 0
- Ownership: Freehold
- Attached: No
- Parking: 6 spaces (Detached Garage, Garage)
- Frontage: 60 ft (18.3 m)
Costs
- Annual Taxes: $3,445.00 (2025)
Listing Provided by: KELLER WILLIAMS ENERGY REAL ESTATE
Board: Central Lakes Association of REALTORS®
Data provided via CREA DDF®.
Detailed Features
Interior & Systems
- Heating: Forced air, Natural gas
- Cooling: None
- Basement: None
Exterior & Construction
- Foundation: Concrete
- Sewer: Sanitary sewer
- Water: Municipal water
Lot & Land
- Frontage: 60 ft (18.3 m)
Community & Neighbourhood
- Neighbourhood: Lakeview
Listing Information
Listing History
Buy/Sell/Terminated/Expired listing history for 193 BLOOR STREET W, Oshawa (Lakeview), Ontario, L1J1P5
Location & Neighborhood
🚗 Travel times
Neighborhood Walkability
Mortgage & Cost Calculators
Nearby Homes (Within 2km)
Similar Homes
Similar Properties
No rental comparables found in this area.
Sold Comparables
Access to sold property data requires a registered and verified account with TRREB DDF integration.
Coming SoonRented Comparables
Access to rented property data requires a registered and verified account with TRREB DDF integration.
Coming Soon


























