192 CHERRYWOOD PARKWAY, Greater Napanee (Greater Napanee), Ontario, K7R0E2
MLS: X12950168 | House (Freehold)
$685,000























Property Description
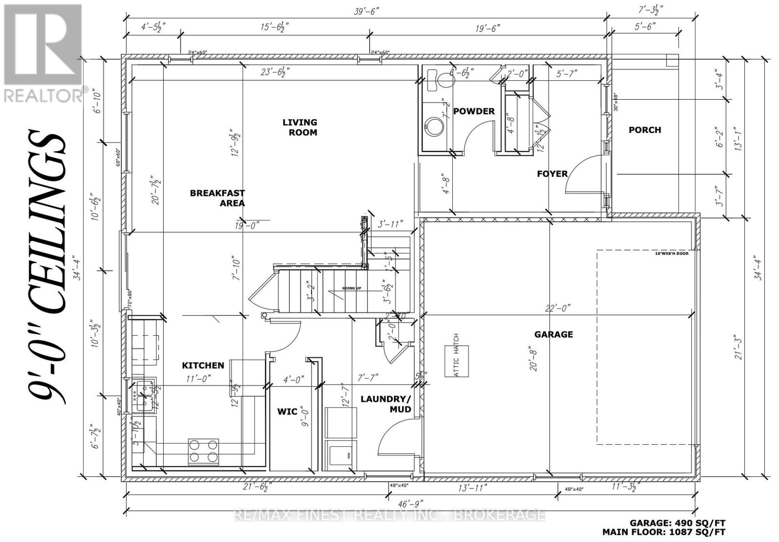
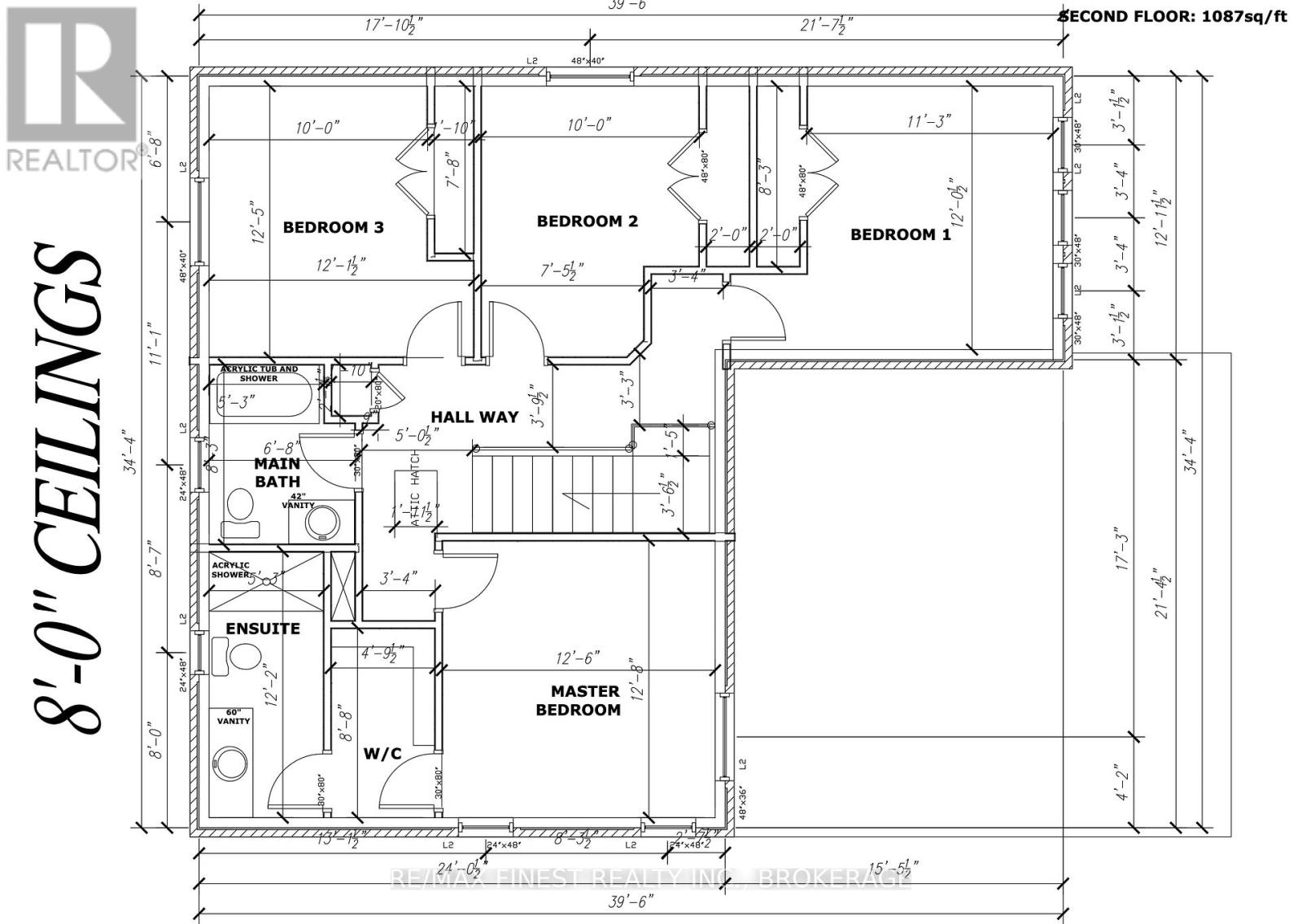
This stunning all-brick, 2-story residence offers 2,174 square feet of thoughtfully designed living space and a double car attached garage. The buyer still has the opportunity to select interior finishes, ensuring the home perfectly reflects your personal style and preferences. As you step inside, you'll be greeted by a large foyer that flows into a spacious open-concept great room. The gourmet kitchen is a highlight, featuring stacked cabinetry that extends to the ceiling with elegant crown molding accents, and Cambria Quartz countertops that provide both style and functionality. The main level also includes a convenient laundry and mudroom accessible from the garage, as well as a guest powder room, all enhanced by beautiful hardwood and tile flooring throughout. Upstairs, a solid wood staircase leads you to a serene retreat. The upper level boasts a large primary bedroom complete with a walk-in closet and an ensuite bathroom, providing the perfect sanctuary at the end of the day. Three additional spacious guest bedrooms, each with large double closets, and a full bathroom offer ample space for family and guests. The unfinished basement is a blank canvas, with a roughed-in fourth bathroom, high-efficiency natural gas furnace, central air, and HRV system included as standard features. Outside, the home continues to impress with a welcoming front porch and a backyard that offers the ultimate in privacy, backing onto a tranquil water retention pond with no rear neighbours. Located in a fantastic west end location, West Bridge Estate offers the perfect blend of natural beauty and convenience. Just down the road from the picturesque Napanee River, and only a block away from the hospital and wellness complex, you'll also enjoy easy access toa large community park with a walking trail. Don't miss this incredible opportunity to own a home that you can truly make your own. Schedule a viewing and start planning your dream home in West Bridge Estate! (id:64974)
Quick Facts
- Property Type: House (Freehold)
- Bedrooms: 4 (4 above)
- Bathrooms: 3 (1 half)
- Ownership: Freehold
- Attached: No
- Parking: 6.0 spaces (Attached Garage, Garage)
- Frontage: 50 ft (15.2 m)
Costs
- Annual Taxes: $5,169.00
Listing Provided by: RE/MAX FINEST REALTY INC., BROKERAGE
Board: Kingston & Area Real Estate Association
Data provided via CREA DDF®.
Detailed Features
Interior & Systems
- Heating: Forced air, Natural gas
- Cooling: Central air conditioning
- Basement: Unfinished, Full
- Utilities: Sewer, Electricity, Cable
Exterior & Construction
- Exterior: Brick
- Foundation: Poured Concrete
- Sewer: Sanitary sewer
- Water: Municipal water
Lot & Land
- Frontage: 50 ft (15.2 m)
- Features: Level
- View: River view
- Zoning: R4-18
Community & Neighbourhood
- Community: School Bus
- Neighbourhood: 58 - Greater Napanee
Room Details (11 rooms)
Listing Information
Listing History
MLS listing activity for 192 CHERRYWOOD PARKWAY, Greater Napanee (Greater Napanee), Ontario, K7R0E2 — dates reflect when changes were recorded in the DDF
🚗 Travel times
Neighborhood Walkability
Mortgage & Cost Calculators
Nearby Homes ?Nearby Homes — Search CriteriaSearch Radius1 kmPrice Range±5%Match BedroomsYesMatch BathroomsYes

442 DUNDAS STREET W, Greater Napanee (Greater Napanee)
House$1,199,000
$4,845/yr taxListing Courtesy of MCCAFFREY REALTY INC., BROKERAGE

89 HARTWOOD CRESCENT, Greater Napanee (Greater Napanee)
House$864,900
$5,516/yr taxListing Courtesy of ROYAL LEPAGE PROALLIANCE REALTY, BROKERAGE

400 DUNDAS STREET W, Greater Napanee (Greater Napanee)
House$699,900
$4,076/yr taxListing Courtesy of EXIT REALTY ACCELERATION REAL ESTATE, BROKERAGE

1 SLASH ROAD, Greater Napanee (Greater Napanee)
House$629,999
$4,400/yr taxListing Courtesy of MCCAFFREY REALTY INC., BROKERAGE
Similar Homes ?Similar Homes — Search CriteriaSearch Radius5 kmPrice Range±5%Match Home TypeYesMatch BedroomsYes

25 KANVERS WAY, Greater Napanee (Greater Napanee)
House$679,900
$4,453/yr taxListing Courtesy of MCCAFFREY REALTY INC., BROKERAGE

1 TELFER ROAD, Collingwood
House$685,000
$3,543/yr taxListing Courtesy of Chestnut Park Real Estate

144 TROUT LANE, Tiny
House$685,000
$2,846/yr taxListing Courtesy of Revel Realty Inc

745 SUSSEX BOULEVARD, Kingston (South of Taylor-Kidd Blvd)
House$685,000
$4,078/yr taxListing Courtesy of ROYAL LEPAGE PROALLIANCE REALTY, BROKERAGE

2503 - 426 UNIVERSITY AVENUE, Toronto (University)
Condo - Apartment$685,000
$3,929/yr taxListing Courtesy of ROYAL LEPAGE SIGNATURE REALTY

502 - 64 QUEEN STREET S, New Tecumseth (Tottenham)
Condo - Apartment$685,000
$2,970/yr taxListing Courtesy of ROYAL LEPAGE RCR REALTY

10 - 290 CATHCART STREET, Ottawa
Condo - Row / Townhouse$685,000
$4,857/yr taxListing Courtesy of ROYAL LEPAGE TEAM REALTY

2510 - 373 FRONT STREET W, Toronto (Waterfront Communities)
Condo$685,000
$2,752/yr taxListing Courtesy of RE/MAX ESCARPMENT REALTY INC.

2702 - 251 MANITOBA STREET, Toronto (Mimico)
Condo - Apartment$685,000
$3,310/yr taxListing Courtesy of RE/MAX WEST REALTY INC.

# 143 - 1035 VICTORIA ROAD S, Guelph (Kortright East)
Condo - Row / Townhouse$685,000
$4,724/yr taxListing Courtesy of HOMELIFE/MIRACLE REALTY LTD

310 - 1560 UPPER WEST AVENUE, London South (South B)
Condo - Apartment$685,000
Listing Courtesy of ROYAL LEPAGE TRILAND REALTY

265 MILL STREET, Saugeen Shores
House$685,000
$4,067/yr taxListing Courtesy of RE/MAX Four Seasons Realty Limited

104 - 64 QUEEN STREET S, New Tecumseth (Tottenham)
Condo - Apartment$685,000
$3,326/yr taxListing Courtesy of COLDWELL BANKER RONAN REALTY

213 JANE STREET, Clearview (Stayner)
House$685,000
$4,560/yr taxListing Courtesy of Century 21 Millennium Inc.

40 - 5031 EAST MILL ROAD, Mississauga (East Credit)
Condo - Row / Townhouse$685,000
$4,652/yr taxListing Courtesy of RE/MAX ABOUTOWNE REALTY CORP.
Similar Properties ?Active Comparables — Search CriteriaSearch Radius2 kmPrice Range±5%Match Home TypeYesMatch BedroomsYes
No rental comparables found in this area.
Sold Comparables
Access to sold property data requires a registered and verified account with TRREB DDF integration.
Coming SoonRented Comparables
Access to rented property data requires a registered and verified account with TRREB DDF integration.
Coming SoonBook a Viewing
192 CHERRYWOOD PARKWAY, Greater Napanee (Greater Napanee), Ontario, K7R0E2
