1916 DUNKIRK Avenue, Woodstock, Ontario, N4T0L7
MLS: 40792087 | Townhouse (Freehold)
$624,900



Property Description
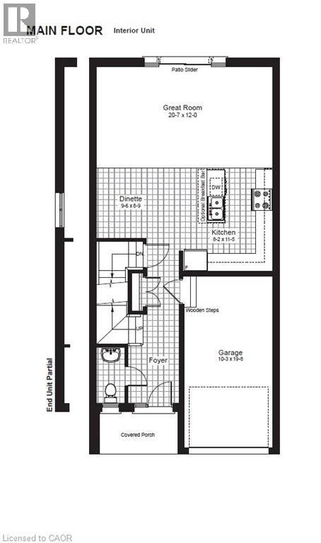
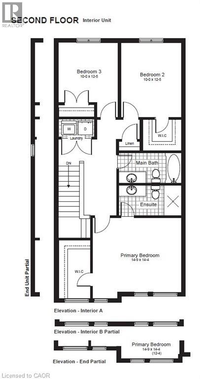
Under construction-Move in spring/summer 2026! Limited time builder incentives. Built by Claysam Homes, this stunning end unit 3-bedroom modern townhouse in the heart of Woodstock, Ontario, where contemporary design meets everyday comfort. From the moment you walk in, you'll be greeted by an inviting open-concept floor plan that is perfect for entertaining, relaxing, and enjoying life’s everyday moments. Flooded with natural light, the main level features a spacious living area that seamlessly flows into the dining space and a large kitchen complete with high-quality finishes, sleek cabinetry, and premium plumbing fixtures. Whether you're hosting family gatherings or enjoying a quiet night in, this layout delivers style and functionality. Upstairs, you’ll find three generous bedrooms, including a bright and airy primary retreat with ample closet space. The additional bedrooms are perfect for family, guests, or a home office—offering flexibility to suit your lifestyle. With modern exterior styling, a private outdoor space, and a location close to parks, schools, shopping, and major commuter routes, this home checks all the boxes for today’s buyer. Don’t miss your chance to own a beautifully crafted townhouse in one of Woodstock’s most desirable and growing communities! First time homebuyer HST rebate - $83,187. Whirlpool appliance package included! (id:64974)
Quick Facts
- Property Type: Townhouse (Freehold)
- Style: 2 Level
- Bedrooms: 3 (3 above)
- Bathrooms: 3 (1 half)
- Living Area: 1,606 sq ft (149.2 m²)
- Above Grade: 1,606 sq ft (149.2 m²)
- Ownership: Freehold
- Attached: Yes
- Parking: 3 spaces (Attached Garage)
- Frontage: 25 ft (7.6 m)
Listing Provided by: eXp Realty, Brokerage
Board: Cornerstone Association of REALTORS®
Data provided via CREA DDF®.
Detailed Features
Interior & Systems
- Heating: Forced air, Natural gas
- Cooling: None
- Basement: Unfinished, Full
- Appliances: Washer, Refrigerator, Dishwasher, Stove, Dryer, Hood Fan
Exterior & Construction
- Style: 2 Level
- Exterior: Concrete
- Foundation: Poured Concrete
- Sewer: Municipal sewage system
- Water: Municipal water
Lot & Land
- Frontage: 25 ft (7.6 m)
- Features: Sump Pump
- Zoning: R3-14
Community & Neighbourhood
- Community: Quiet Area, School Bus, Community Centre
- Subdivision: Woodstock - North
Room Details (10 rooms)
Listing Information
Listing History
Buy/Sell/Terminated/Expired listing history for 1916 DUNKIRK Avenue, Woodstock, Ontario, N4T0L7
Location & Neighborhood
🚗 Travel times
Neighborhood Walkability
Mortgage & Cost Calculators
Nearby Homes (Within 2km)
Similar Homes
Similar Properties
No rental comparables found in this area.
Sold Comparables
Access to sold property data requires a registered and verified account with TRREB DDF integration.
Coming SoonRented Comparables
Access to rented property data requires a registered and verified account with TRREB DDF integration.
Coming Soon





















