1906 - 202 BURNHAMTHORPE ROAD E, Mississauga (Mississauga Valleys), Ontario, L5A4L4
MLS: W12923330 | Apartment (Condo)
$679,900












































Property Description
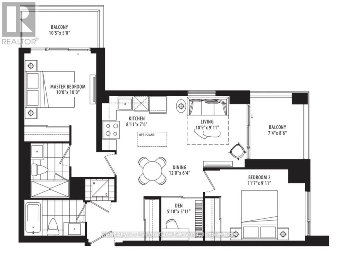
Welcome to this Newly Built, Large 2 Bed + Den, 2 Bath, Corner unit offering space, unbeatable views, and a highly desirable split-bedroom layout. The primary features a 3-piece ensuite with glass shower and walkout to a private balcony with breathtaking CN Tower and Toronto skyline views! The spacious second bedroom and bath are perfect for family or guests, while the versatile den with sliding glass doors provides the ideal home office or flex space. Step into the bright, open-concept living area and enjoy access to a second balcony that is perfect for relaxing or entertaining with panoramic city views. This unit checks every box with full-size stainless steel appliances, quartz countertops, laminate flooring throughout, porcelain tile, custom blinds, and the convenience of in-suite full-size laundry. Plus, enjoy the added value of parking and a locker. Located in the heart of it all, just steps to Square One, Celebration Square, YMCA, Living Arts Centre, restaurants, grocery stores, and everyday essentials. There is no shortage of things to do. This neighbourhood has all the essentials like nearby Schools and Sheridan College, Community Centre, Libraries, Parks, Ravines and Trails. Commuting is a breeze with MiWay Transit, future LRT, Go Station, and Highways all within minutes. Residents enjoy premium building amenities including an outdoor terrace, pool & patio, fitness centre & yoga studio, party, media & games rooms, kids' zones, guest suites, and 24/7 concierge. Come experience the views, layout and amenities in person. Schedule your visit today. (id:64974)
Quick Facts
- Property Type: Apartment (Condo)
- Bedrooms: 3 (2 above, 1 below)
- Bathrooms: 2
- Ownership: Condo/Strata
- Attached: Yes
- Parking: 1.0 space (Garage, Underground)
Costs
- Annual Taxes: $4,848.82
- Condo/HOA Fee: $683.00 / monthly
- Corp: Shelter Canadian
- Includes: Common Area Maintenance, Heat, Insurance, Parking
Listing Provided by: Century 21 Signature Service
Board: Toronto Regional Real Estate Board
Data provided via CREA DDF®.
Detailed Features
Interior & Systems
- Heating: Natural gas, Coil Fan
- Cooling: Central air conditioning
- Basement: None
- Appliances: Washer, Refrigerator, Dishwasher, Stove, Dryer, Microwave, Blinds
- Flooring: Laminate
Exterior & Construction
- Exterior: Brick
Lot & Land
- Features: Balcony, Carpet Free, In suite Laundry
- Pool: Outdoor pool
Community & Neighbourhood
- Community: Community Centre, Pets Allowed With Restrictions
- Building: Storage - Locker, Exercise Centre, Security/Concierge, Visitor Parking
- Neighbourhood: Mississauga Valleys
Room Details (6 rooms)
Listing Information
Listing History
Buy/Sell/Terminated/Expired listing history for 1906 - 202 BURNHAMTHORPE ROAD E, Mississauga (Mississauga Valleys), Ontario, L5A4L4
Location & Neighborhood
🚗 Travel times
Neighborhood Walkability
Mortgage & Cost Calculators
Nearby Homes (Within 2km)
Similar Homes
Similar Properties
No rental comparables found in this area.
Sold Comparables
Access to sold property data requires a registered and verified account with TRREB DDF integration.
Coming SoonRented Comparables
Access to rented property data requires a registered and verified account with TRREB DDF integration.
Coming Soon
























