190 HEMPSTEAD DRIVE, Hamilton (Rymal), Ontario, L8W2E3
MLS: X12676044 | Industrial
$5,900,000
























Property Description
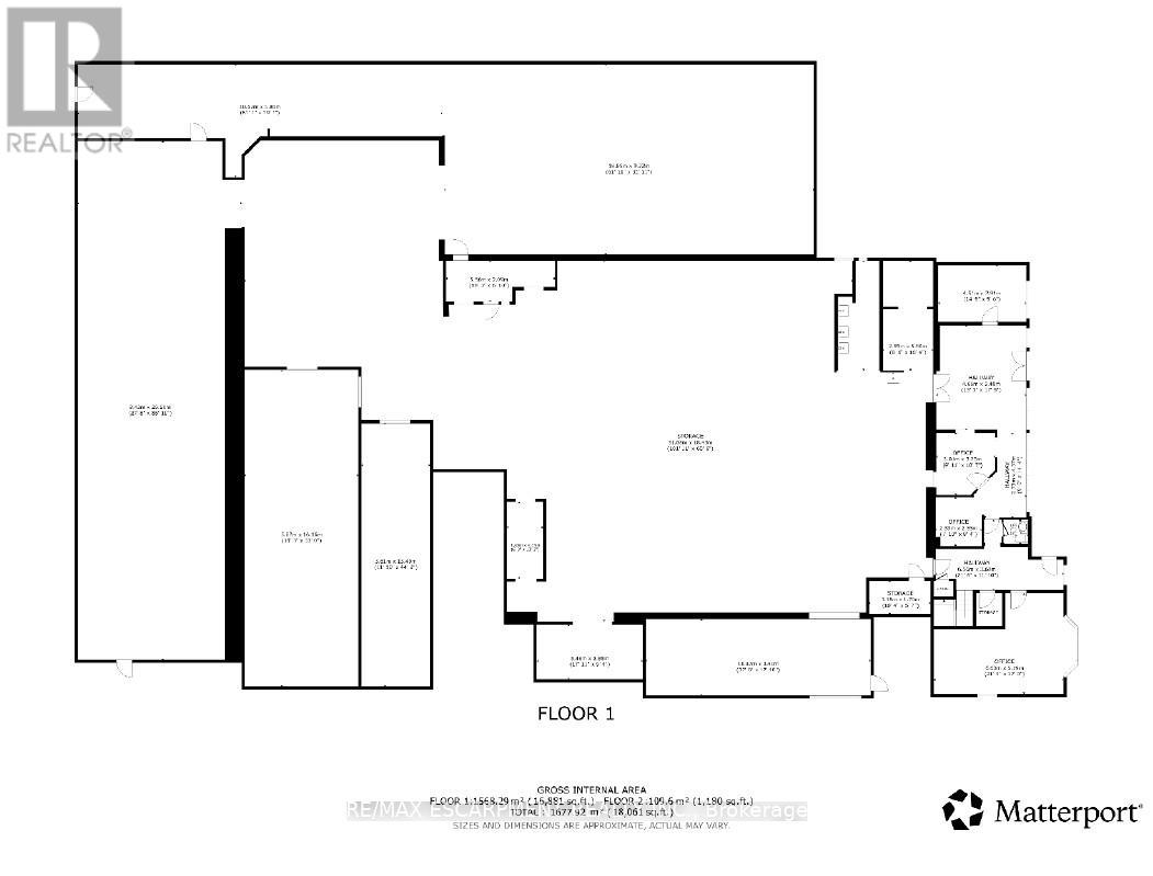
PRICED FOR IMMEDIATE ACTION! Rare opportunity to acquire a fully equipped food manufacturing and cold storage industrial facility in Hamilton's established industrial core. This approx 18,000 sq. ft. building is offered with both land and building included and features M3 zoning, supporting a wide range of industrial uses. The facility includes 4 grade-level man doors and 3 shipping doors, providing excellent functionality for production, shipping, and receiving. Purpose-built for food manufacturing and processing, the property offers approximately 3,000 sq. ft. of freezer space, 760 sq. ft. of coolers, and a 265 sq. ft. blast freezer. The building holds a Global Food Safety Initiative (GFSI) certification, allowing for immediate operational use and reduced regulatory timelines. Strategically located with convenient access to major transportation routes, this is a rare turnkey opportunity for food manufacturers, owner-operators, or investors in one of Hamilton's most sought-after industrial areas. Phase 1 of the ESA is completed, please view in supplements. (id:64974)
Quick Facts
- Property Type: Industrial
- Bedrooms: None
- Bathrooms: 3
- Living Area: 17,976 sq ft (1,670.0 m²)
- Parking: 18 spaces (Other)
- Frontage: 121 ft (37 m)
Costs
- Annual Taxes: $23,940.00
Listing Provided by: RE/MAX ESCARPMENT REALTY INC.
Board: Toronto Regional Real Estate Board
Data provided via CREA DDF®.
Detailed Features
Interior & Systems
- Heating: Forced air, Natural gas
- Cooling: Fully air conditioned
- Appliances: Window Coverings
Exterior & Construction
- Water: Municipal water
Lot & Land
- Frontage: 121 ft (37 m)
- Zoning: M3
Community & Neighbourhood
- Neighbourhood: Rymal
Listing Information
Listing History
Buy/Sell/Terminated/Expired listing history for 190 HEMPSTEAD DRIVE, Hamilton (Rymal), Ontario, L8W2E3
Location & Neighborhood
🚗 Travel times
Neighborhood Walkability
Mortgage & Cost Calculators
Nearby Homes (Within 2km)
Similar Homes
Similar Properties
No rental comparables found in this area.
Sold Comparables
Access to sold property data requires a registered and verified account with TRREB DDF integration.
Coming SoonRented Comparables
Access to rented property data requires a registered and verified account with TRREB DDF integration.
Coming Soon
























