19 TRAILS END, Collingwood, Ontario, L9Y5B1
MLS: S12833696 | House (Freehold)
$1,649,700




















































Property Description
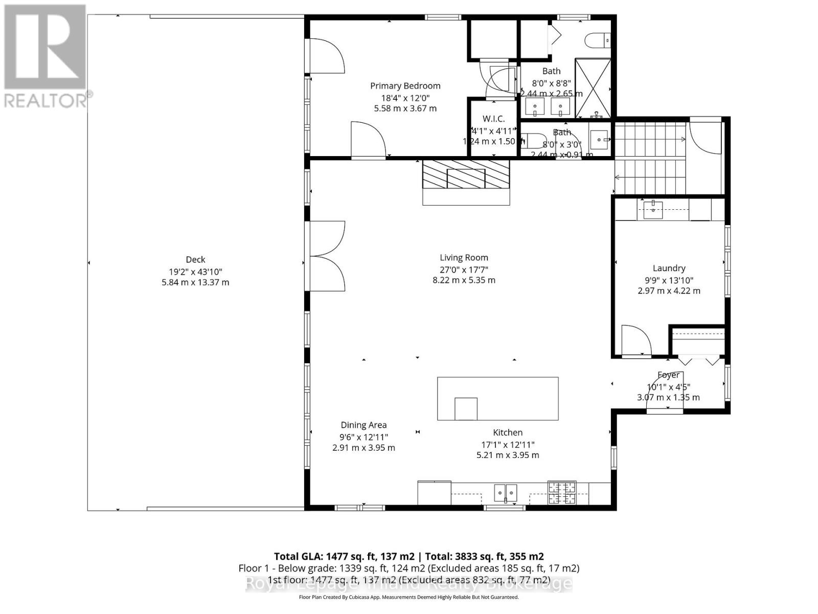
Where the trail ends, something exceptional begins! Tucked into Mount View Estates - a neighborhood known by those who know & valued for privacy over publicity - this custom-built, meticulous 5-bedroom, 3-bath chalet-style bungalow was designed for year-round living & gatherings. Set back from the road & framed by mature trees, the .46-acre lot offers tranquility & privacy. A covered front porch opens to a soaring Great Room with 18.5 ft cathedral ceilings & a floor-to-ceiling custom stone fireplace with Rumford insert. Wide-plank wood floors anchor the space, while oversized windows flood it with natural light. The dining area easily hosts a table for all & flows into a gourmet kitchen anchored by a Viking Professional gas range, quartz counters, custom cabinetry & high-end appliances. A 12' island seating 8+ keeps conversation lingering long after dinner ends! Main-floor living includes a primary retreat with 2 closets, garden door to the deck & an updated 4-pce ensuite with heated flrs, double vanity & glass shower. The laundry with quartz & built-ins flexes as office, ski tuning or hobby rm. The lower offers 4 additional bedrooms, family room, updated 4-pce bath & guest space with private entry via the covered side porch. The expansive 860 sf deck with 2 retractable awnings extends the living space outdoors - ideal for entertaining & starlit evenings by the fire. Board-and-batten exterior nods to authentic Collingwood character. Amenities include EV charging, RV hookup, fenced yard & parking for 6. Residents share ownership & use of 6.3 acres of protected lands & trails along Silver Creek's natural corridor. Minutes to Blue Mountain Resort, private ski clubs, Scandinave Spa, Georgian Bay, hiking & biking trails, golf & historic downtown Collingwood - close to everything, yet removed from Village traffic. From ski days to sunset swims, golf rounds to early morning fishing on the Bay - every season has its moment. Experience Trails End - imagine what begins here! (id:64974)
Quick Facts
- Property Type: House (Freehold)
- Style: Bungalow
- Bedrooms: 5 (1 above, 4 below)
- Bathrooms: 3 (1 half)
- Ownership: Freehold
- Attached: No
- Fireplaces: 1
- Parking: 6 spaces (No Garage, RV)
- Frontage: 90 ft (27.4 m)
Costs
- Annual Taxes: $6,416.00 (2026)
Listing Provided by: Royal Lepage Triland Realty Brokerage
Board: Woodstock Ingersoll Tillsonburg and Area Association of REALTORS® (WITAAR)
Data provided via CREA DDF®.
Detailed Features
Interior & Systems
- Heating: Forced air, Natural gas
- Cooling: Central air conditioning
- Basement: Finished, Full, Separate entrance, Walk-up, N/A, N/A, N/A
- Appliances: Washer, Refrigerator, Water softener, Sauna, Central Vacuum, Dishwasher, Range, Dryer, Freezer, Water Treatment, Water Heater
- Flooring: Ceramic
- Utilities: Electricity, Cable, Telephone, Wireless, Natural Gas Available
- Security: Smoke Detectors, Monitored Alarm
Exterior & Construction
- Style: Bungalow
- Exterior: Wood
- Foundation: Poured Concrete
- Fencing: Fenced yard, Fully Fenced
- Sewer: Septic System
- Water: Drilled Well
Lot & Land
- Frontage: 90 ft (27.4 m)
- Features: Wooded area, Level, Sump Pump, Sauna
Community & Neighbourhood
- Community: School Bus
- Building: Fireplace(s)
- Neighbourhood: Collingwood
Room Details (12 rooms)
Listing Information
Listing History
Buy/Sell/Terminated/Expired listing history for 19 TRAILS END, Collingwood, Ontario, L9Y5B1
Location & Neighborhood
🚗 Travel times
Neighborhood Walkability
Mortgage & Cost Calculators
Nearby Homes (Within 2km)
Similar Homes
Similar Properties
No rental comparables found in this area.
Sold Comparables
Access to sold property data requires a registered and verified account with TRREB DDF integration.
Coming SoonRented Comparables
Access to rented property data requires a registered and verified account with TRREB DDF integration.
Coming Soon
























