19 NYAH COURT, Kincardine, Ontario, N0G2T0
MLS: X12074953 | Townhouse (Freehold)
$599,900



Property Description
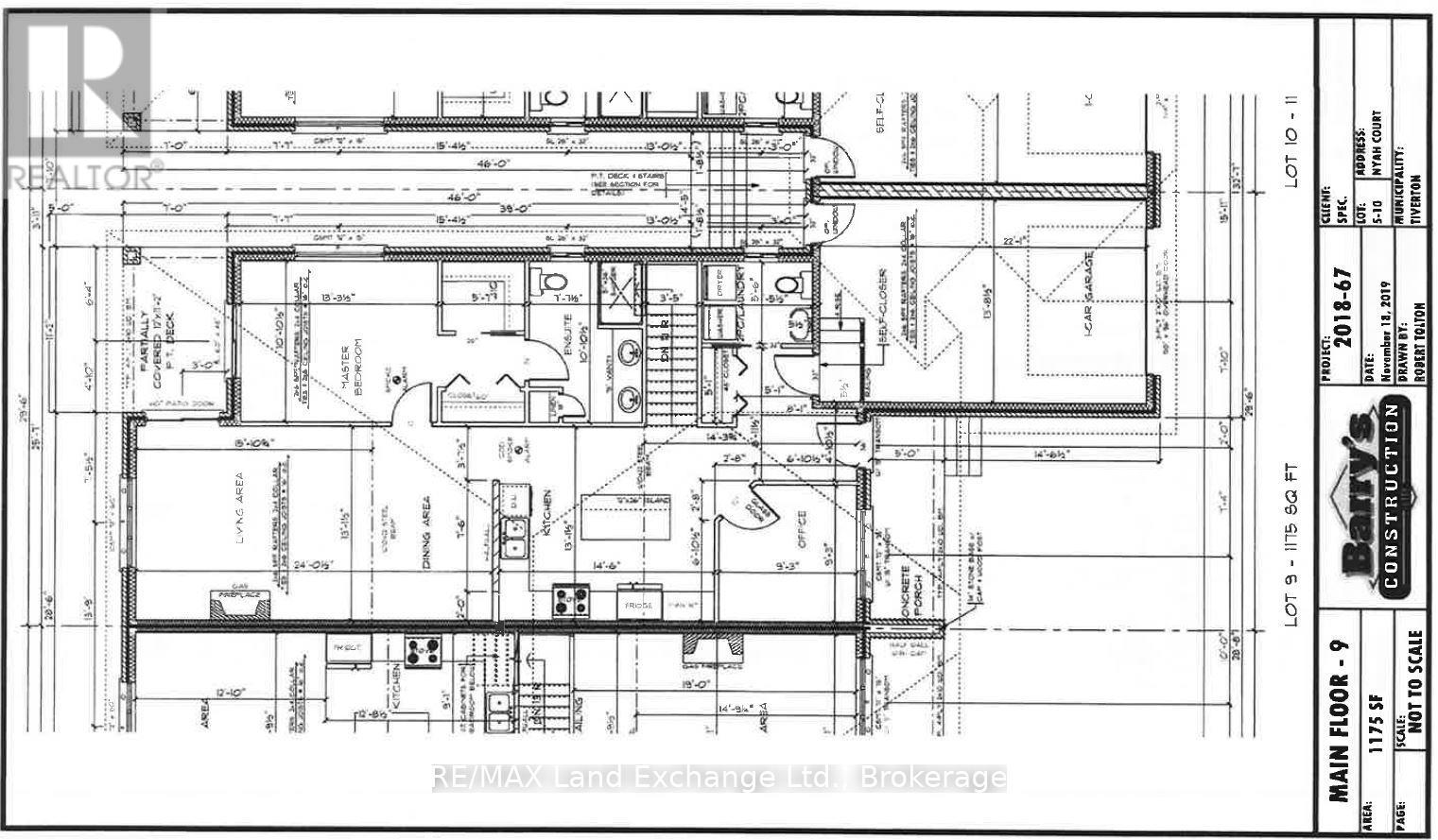
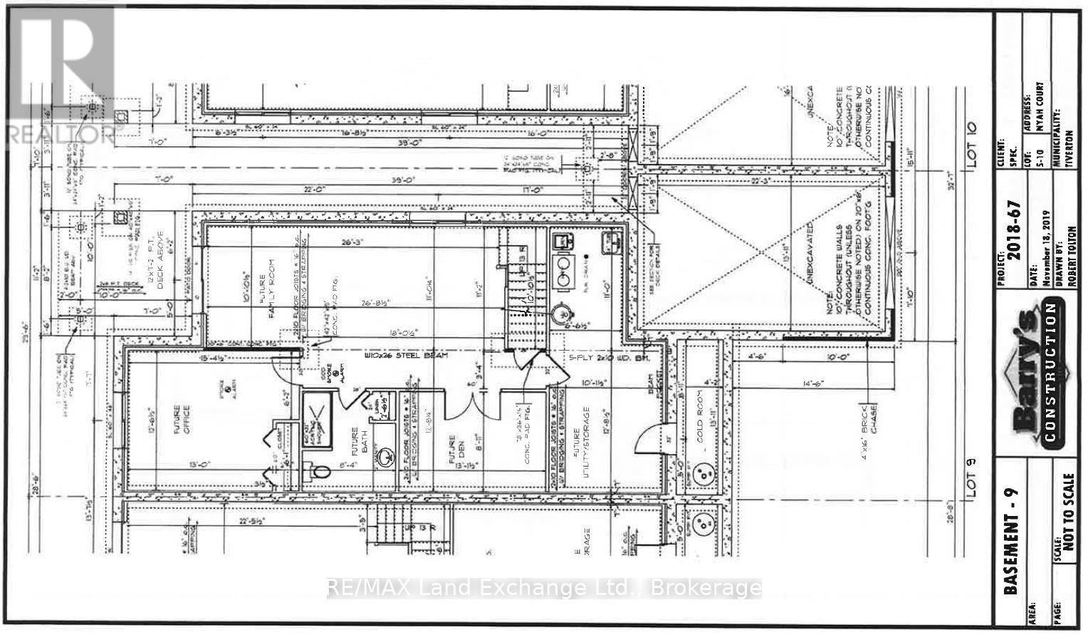
1175 sqft Freehold townhome at 19 Nyah Court in Tiverton, featuring an open concept kitchen, dining, living room with gas fireplace; walkout to partially covered 12 x 11'2 deck; primary bedroom with 4pc ensuite and walk-in closet, laundry / 2pc powder room. The walkout basement is finished and includes a family room, 3pc bath, bedroom, den and storage / utility room. HST is included in the list price provide the Buyer qualifies for the rebate and assigns it to the Builder on closing. Interior colour selections maybe available for those that act early. Exterior will feature a sodded yard. Standard interior features include 9ft ceilings, hardwood and ceramic throughout the main floor, and Quartz counter tops in the kitchen. Prices are subject to change without notice. (id:64974)
Quick Facts
- Property Type: Townhouse (Freehold)
- Style: Bungalow
- Bedrooms: 2 (1 above, 1 below)
- Bathrooms: 3 (1 half)
- Ownership: Freehold
- Attached: Yes
- Fireplaces: 1
- Parking: 3 spaces (Attached Garage, Garage)
- Frontage: 31 ft (9.6 m)
Costs
- Annual Taxes: $4,640.21 (2024)
Listing Provided by: RE/MAX Land Exchange Ltd.
Board: OnePoint Association of REALTORS®
Data provided via CREA DDF®.
Detailed Features
Interior & Systems
- Heating: Forced air, Natural gas
- Cooling: Central air conditioning, Air exchanger
- Basement: Finished, Walk out, N/A, N/A
- Appliances: Water meter, Garage door opener, Garage door opener remote(s), Water Heater - Tankless
- Flooring: Tile, Hardwood
- Utilities: Sewer, Electricity, Cable
Exterior & Construction
- Style: Bungalow
- Exterior: Brick, Vinyl siding
- Foundation: Poured Concrete
- Sewer: Sanitary sewer
- Water: Municipal water
Lot & Land
- Frontage: 31 ft (9.6 m)
- Features: Cul-de-sac, Sloping, Sump Pump
- Zoning: R2
Community & Neighbourhood
- Community: School Bus
- Building: Fireplace(s)
- Neighbourhood: Kincardine
Room Details (9 rooms)
Listing Information
Listing History
Buy/Sell/Terminated/Expired listing history for 19 NYAH COURT, Kincardine, Ontario, N0G2T0
Location & Neighborhood
🚗 Travel times
Neighborhood Walkability
Mortgage & Cost Calculators
Nearby Homes (Within 2km)
Similar Homes
Similar Properties
No rental comparables found in this area.
Sold Comparables
Access to sold property data requires a registered and verified account with TRREB DDF integration.
Coming SoonRented Comparables
Access to rented property data requires a registered and verified account with TRREB DDF integration.
Coming Soon

















