19 LOIS COURT, Lambton Shores (Grand Bend), Ontario, N0M1T0
MLS: X12665526 | House (Freehold)
$899,900






































Property Description
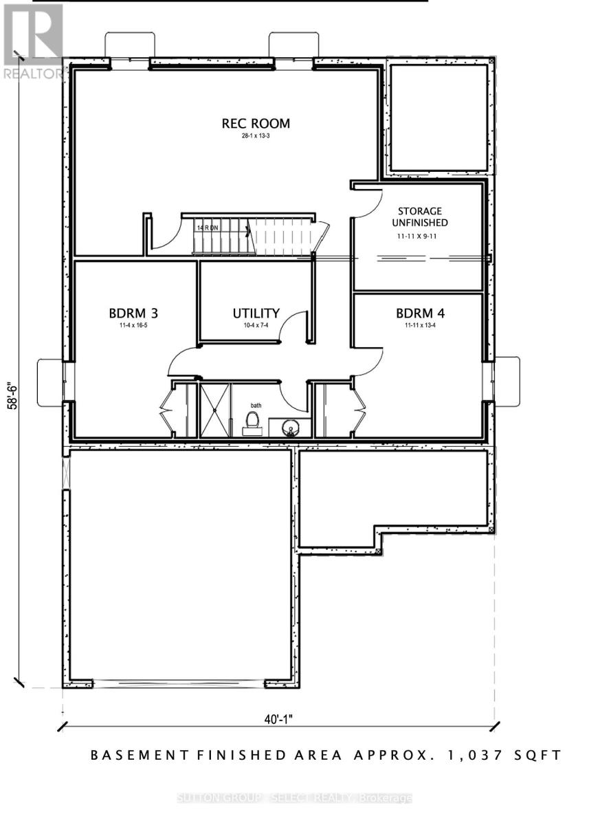
Quality and value are paramount in this impressive offering from Rice Homes. With 2,369 sq. ft. of finished living area this 4 bedroom, 3 bath home is sure to please. Features include: open concept living area with 9 & 10' ceilings, gas fireplace, center island with kitchen, 3 appliances, main floor laundry, master ensuite with walk in closet, pre-engineered hardwood floors, front and rear covered porches, basement fully finished, Hardie Board exterior for low maintenance. Concrete drive & walkway. Call or email L.A. for long list of standard features and finishes. Newport Landing features an incredible location just a short distance from all the amenities Grand Bend is famous for. Walk to shopping, beach, medical and restaurants! Noe! short term rentals are not allowed in this development, enforced by restrictive covenants registered on title. Price includes HST for Purchasers buying as principal residence. Property has not been assessed yet. (id:64974)
Quick Facts
- Property Type: House (Freehold)
- Style: Bungalow
- Bedrooms: 4 (2 above, 2 below)
- Bathrooms: 3
- Ownership: Freehold
- Attached: No
- Fireplaces: Yes
- Parking: 6 spaces (Attached Garage, Garage)
- Frontage: 54 ft (16.4 m)
Costs
- Annual Taxes: $1.00
Listing Provided by: SUTTON GROUP - SELECT REALTY
Board: London and St. Thomas Association of REALTORS®
Data provided via CREA DDF®.
Detailed Features
Interior & Systems
- Heating: Forced air, Natural gas
- Cooling: Central air conditioning, Air exchanger
- Basement: Finished, N/A
- Appliances: Refrigerator, Water meter, Barbeque, Dishwasher, Stove, Microwave, Garage door opener remote(s), Water Heater - Tankless, Water Heater
Exterior & Construction
- Style: Bungalow
- Exterior: Stone, Hardboard
- Foundation: Poured Concrete
- Sewer: Sanitary sewer
- Water: Municipal water
Lot & Land
- Frontage: 54 ft (16.4 m)
- Features: Cul-de-sac, Level lot, Irregular lot size, Flat site, Sump Pump
- Zoning: R4-2 (H12)
Community & Neighbourhood
- Building: Fireplace(s)
- Neighbourhood: Grand Bend
Room Details (12 rooms)
Listing Information
Listing History
Buy/Sell/Terminated/Expired listing history for 19 LOIS COURT, Lambton Shores (Grand Bend), Ontario, N0M1T0
Location & Neighborhood
🚗 Travel times
Neighborhood Walkability
Mortgage & Cost Calculators
Nearby Homes (Within 2km)
Similar Homes
Similar Properties
No rental comparables found in this area.
Sold Comparables
Access to sold property data requires a registered and verified account with TRREB DDF integration.
Coming SoonRented Comparables
Access to rented property data requires a registered and verified account with TRREB DDF integration.
Coming Soon






















