1891 APPLEROCK AVENUE, London North (North S), Ontario, N6G2V8
MLS: X12966968 | House (Freehold)
$949,900



















































Property Description
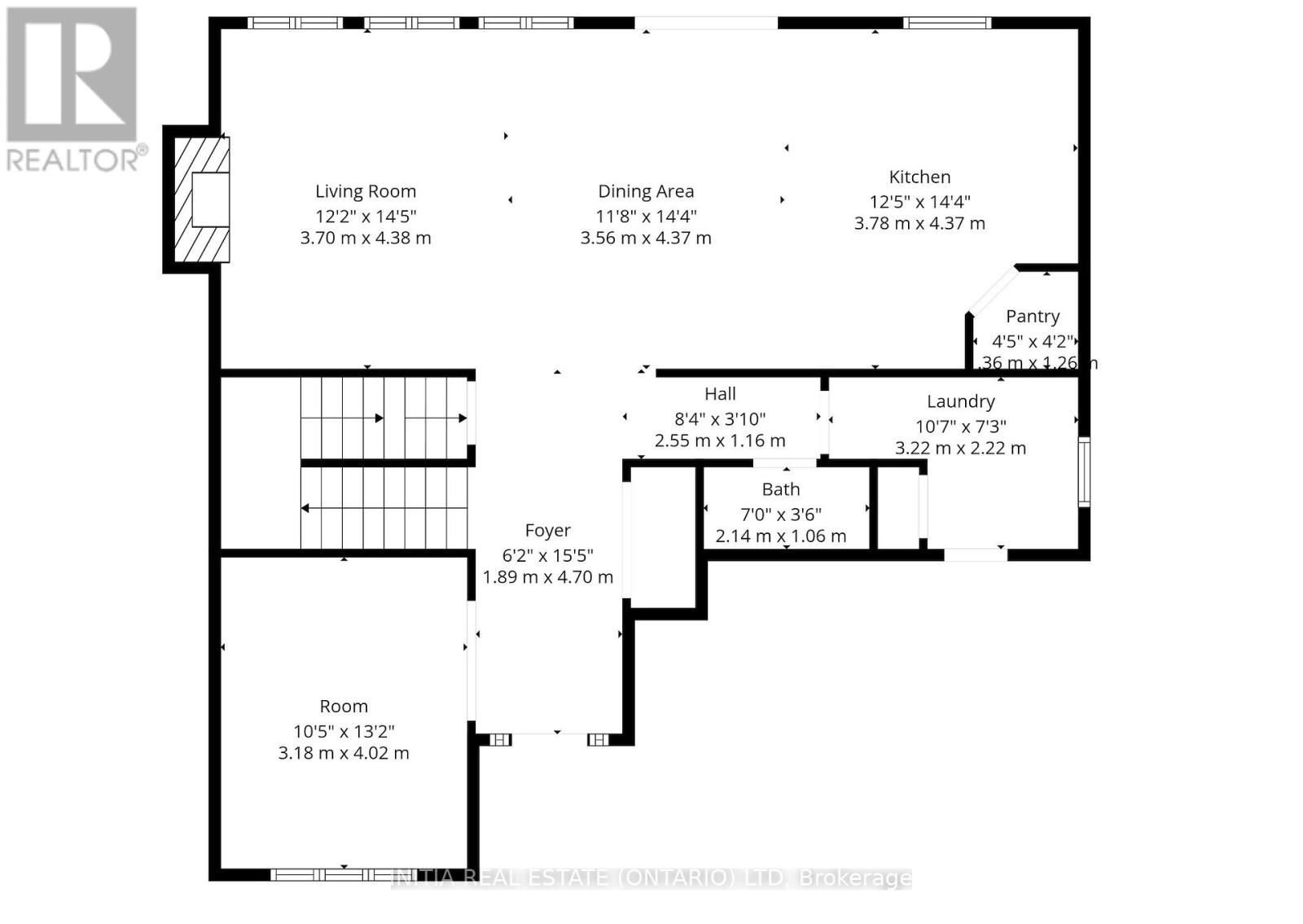
Location, Location, Location! Situated on a premium corner lot directly across from a brand-new elementary school, this impressive home offers approximately 2,181 sq ft of finished living space with a thoughtfully designed layout featuring 4 bedrooms and 3 bathrooms. The striking stone and stucco exterior creates exceptional curb appeal, complemented by a full concrete driveway with parking for up to 4 vehicles, concrete steps and porch, and a double-car garage with two doors. Inside, the main floor showcases 9-ft ceilings and 8-ft doors throughout, enhancing the sense of space and flow. A large window along the staircase fills the home with natural light. The upgraded kitchen is a true highlight, featuring ceiling-height cabinetry, quartz countertops with a full-height backsplash, stainless steel appliances, a corner pantry, and a spacious island with breakfast bar seating. The kitchen overlooks a bright great room with an elegant electric fireplace and stylish accent wall, creating the perfect space for entertaining. A convenient main floor laundry and mudroom complete this level. Upstairs, the primary suite offers a walk-in closet and a luxurious 5-piece ensuite with double quartz vanity, glass shower, and soaker tub. Three additional generously sized bedrooms share a well-appointed main bathroom, providing a functional and family-friendly layout. The fully fenced backyard is beautifully finished with a covered deck and railing-ideal for outdoor relaxation and entertaining. (id:64974)
Quick Facts
- Property Type: House (Freehold)
- Bedrooms: 4 (4 above)
- Bathrooms: 3 (1 half)
- Ownership: Freehold
- Attached: No
- Fireplaces: 1
- Parking: 6.0 spaces (Attached Garage, Garage)
- Frontage: 52 ft (15.7 m)
Costs
- Annual Taxes: $6,404.00 (2025)
Listing Provided by: INITIA REAL ESTATE (ONTARIO) LTD
Board: London and St. Thomas Association of REALTORS®
Data provided via CREA DDF®.
Detailed Features
Interior & Systems
- Heating: Forced air, Natural gas
- Cooling: Central air conditioning
- Basement: Unfinished, Full
- Appliances: Washer, Refrigerator, Water meter, Dishwasher, Dryer, Garage door opener, Garage door opener remote(s)
- Utilities: Sewer, Electricity, Cable
- Security: Smoke Detectors
Exterior & Construction
- Exterior: Stucco, Brick Veneer
- Foundation: Poured Concrete
- Sewer: Sanitary sewer
- Water: Municipal water
Lot & Land
- Frontage: 52 ft (15.7 m)
- Features: Dry, Sump Pump
- Zoning: R1-3
Community & Neighbourhood
- Community: School Bus
- Building: Fireplace(s)
- Neighbourhood: North S
Room Details (10 rooms)
Listing Information
Listing History
MLS listing activity for 1891 APPLEROCK AVENUE, London North (North S), Ontario, N6G2V8 — dates reflect when changes were recorded in the DDF
🚗 Travel times
Neighborhood Walkability
Mortgage & Cost Calculators
Nearby Homes ?Nearby Homes — Search CriteriaSearch Radius1 kmPrice Range±5%Match BedroomsYesMatch BathroomsYes

1630 MEDWAY PARK DR DRIVE, London North (North S)
House$959,900
Listing Courtesy of NU-VISTA PINNACLE REALTY BROKERAGE INC

2831 BUROAK DRIVE, London North (North S)
House$799,900
Listing Courtesy of ROYAL LEPAGE TRILAND PREMIER BROKERAGE

2809 BUROAK DRIVE, London North (North S)
House$829,900
Listing Courtesy of ROYAL LEPAGE TRILAND PREMIER BROKERAGE

2819 BUROAK DRIVE, London North (North S)
House$819,900
Listing Courtesy of ROYAL LEPAGE TRILAND PREMIER BROKERAGE

2825 BUROAK DRIVE, London North (North S)
House$739,900
Listing Courtesy of ROYAL LEPAGE TRILAND PREMIER BROKERAGE

LOWER UNIT 2164 SADDLEROCK AVENUE, London North (North S)
House$1,599/mo
Listing Courtesy of NU-VISTA PINNACLE REALTY BROKERAGE INC

35 - 2700 BUROAK DRIVE, London North (North S)
Condo - Row / Townhouse$549,000
Listing Courtesy of CENTURY 21 FIRST CANADIAN STEVE KLEIMAN INC.

19 - 2700 BUROAK DRIVE, London North (North S)
Condo - Row / Townhouse$549,900
Listing Courtesy of CENTURY 21 FIRST CANADIAN STEVE KLEIMAN INC.

66 - 2650 BUROAK DRIVE, London North (North S)
Condo - Row / Townhouse$749,900
$5,314/yr taxListing Courtesy of THRIVE REALTY GROUP INC.

2668 BUROAK DRIVE, London North (North S)
Condo - Row / Townhouse$728,900
Listing Courtesy of CENTURY 21 FIRST CANADIAN STEVE KLEIMAN INC.

2662 BUROAK DRIVE, London North (North S)
Condo - Row / Townhouse$733,900
Listing Courtesy of CENTURY 21 FIRST CANADIAN STEVE KLEIMAN INC.

45 - 2700 BUROAK DRIVE S, London North (North S)
Condo - Row / Townhouse$549,900
Listing Courtesy of CENTURY 21 FIRST CANADIAN STEVE KLEIMAN INC.

2408 JORDAN BOULEVARD, London North (North S)
House$729,900
Listing Courtesy of THRIVE REALTY GROUP INC.

2386 JORDAN BOULEVARD, London North (North S)
House$774,900
Listing Courtesy of THRIVE REALTY GROUP INC.

1501 APPLEROCK AVENUE, London North (North S)
House$2,800/mo
Listing Courtesy of STREETCITY REALTY INC.
Similar Homes ?Similar Homes — Search CriteriaSearch Radius5 kmPrice Range±5%Match Home TypeYesMatch BedroomsYes

103 TYNEDALE AVENUE, London North (North L)
House$949,900
$6,974/yr taxListing Courtesy of COLDWELL BANKER POWER REALTY

1836 HAYCOCK PLACE, London North (North R)
House$950,000
$7,091/yr taxListing Courtesy of CENTURY 21 FIRST CANADIAN CORP

327 RICHMEADOW ROAD, London North (North M)
House$947,500
$6,672/yr taxListing Courtesy of CENTURY 21 FIRST CANADIAN CORP

1362 BUSH HILL LINK DRIVE, London North (North S)
House$959,000
$6,286/yr taxListing Courtesy of RE/MAX CENTRE CITY REALTY INC.

1630 MEDWAY PARK DR DRIVE, London North (North S)
House$959,900
Listing Courtesy of NU-VISTA PINNACLE REALTY BROKERAGE INC

1341 BUSH HILL LINK, London North (North S)
House$934,900
Listing Courtesy of CENTURY 21 FIRST CANADIAN STEVE KLEIMAN INC.

2628 HEARDCREEK AVENUE, London North (North S)
House$971,500
$1/yr taxListing Courtesy of NU-VISTA PINNACLE REALTY BROKERAGE INC

1577 APPLEROCK AVENUE, London North (North S)
House$924,900
$6,627/yr taxListing Courtesy of PRIME REAL ESTATE BROKERAGE

9 ULLSWATER CRESCENT, London North (North A)
House$979,000
$6,937/yr taxListing Courtesy of SUTTON GROUP - SELECT REALTY

2136 YELLOWBIRCH PLACE, London North (North S)
House$919,900
$6,856/yr taxListing Courtesy of UNION CAPITAL REALTY

5 - 1061 EAGLETRACE DRIVE, London North (North S)
House$986,846
Listing Courtesy of THRIVE REALTY GROUP INC.
Similar Properties ?Active Comparables — Search CriteriaSearch Radius2 kmPrice Range±5%Match Home TypeYesMatch BedroomsYes

1362 BUSH HILL LINK DRIVE, London North (North S)
House$959,000
$6,286/yr taxListing Courtesy of RE/MAX CENTRE CITY REALTY INC.

1630 MEDWAY PARK DR DRIVE, London North (North S)
House$959,900
Listing Courtesy of NU-VISTA PINNACLE REALTY BROKERAGE INC

1341 BUSH HILL LINK, London North (North S)
House$934,900
Listing Courtesy of CENTURY 21 FIRST CANADIAN STEVE KLEIMAN INC.

2628 HEARDCREEK AVENUE, London North (North S)
House$971,500
$1/yr taxListing Courtesy of NU-VISTA PINNACLE REALTY BROKERAGE INC

1577 APPLEROCK AVENUE, London North (North S)
House$924,900
$6,627/yr taxListing Courtesy of PRIME REAL ESTATE BROKERAGE

2136 YELLOWBIRCH PLACE, London North (North S)
House$919,900
$6,856/yr taxListing Courtesy of UNION CAPITAL REALTY

5 - 1061 EAGLETRACE DRIVE, London North (North S)
House$986,846
Listing Courtesy of THRIVE REALTY GROUP INC.
Sold Comparables
Access to sold property data requires a registered and verified account with TRREB DDF integration.
Coming SoonRented Comparables
Access to rented property data requires a registered and verified account with TRREB DDF integration.
Coming SoonBook a Viewing
1891 APPLEROCK AVENUE, London North (North S), Ontario, N6G2V8

