1858 LAKESHORE ROAD W, Mississauga (Clarkson), Ontario, L5J1J7
MLS: W12717544 | Residential Commercial Mix
$1,365,000







































Property Description
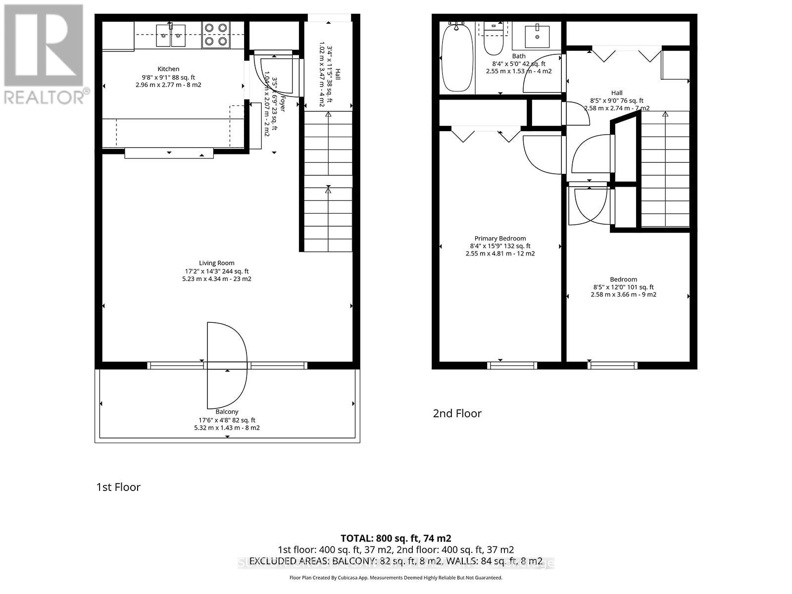
Located in highly desirable Clarkson, 1858 Lakeshore Rd W offers a rare mixed-use investment opportunity with strong visibility and long-term upside. This well-maintained commercial property features approximately 997 sq. ft. on the main floor, ideal for retail, professional, or service-based use, plus an additional 997 sq. ft. basement providing valuable storage or additional workspace. Above the commercial space are two self-contained residential apartments, creating multiple income streams and excellent investment flexibility. The property has a functional layout that supports both owner-occupiers and investors alike. The Lakeshore Rd facing apartment contains 2 bedrooms and 1 bathroom and the 2nd apartment in the back contains 3 bedrooms and 1 washroom. Both apartments have their own separate entrances. Property has 8 parking spots divided between the front and back of unit. Situated in a prime Lakeshore location, the building benefits from strong pedestrian and vehicular traffic, proximity to established neighbourhoods, transit, and nearby amenities. Whether you are looking to operate a business on the main level while generating residential rental income, or add a versatile asset to your portfolio, this property presents an exceptional opportunity in one of Mississauga's most sought-after areas. (id:64974)
Quick Facts
- Property Type: Residential Commercial Mix
- Bedrooms: None
- Bathrooms: None
- Living Area: 2,991 sq ft (277.9 m²)
- Frontage: 18 ft (5.5 m)
Costs
- Annual Taxes: $11,308.00
Listing Provided by: SUTTON GROUP QUANTUM REALTY INC.
Board: Toronto Regional Real Estate Board
Data provided via CREA DDF®.
Detailed Features
Interior & Systems
- Heating: Baseboard heaters
- Cooling: Partially air conditioned
- Appliances: Washer, Dryer
Exterior & Construction
- Sewer: Sanitary sewer
- Water: Municipal water
Lot & Land
- Frontage: 18 ft (5.5 m)
- Zoning: C4-63
Community & Neighbourhood
- Neighbourhood: Clarkson
Listing Information
Listing History
Buy/Sell/Terminated/Expired listing history for 1858 LAKESHORE ROAD W, Mississauga (Clarkson), Ontario, L5J1J7
Location & Neighborhood
🚗 Travel times
Neighborhood Walkability
Mortgage & Cost Calculators
Nearby Homes (Within 2km)
Similar Homes
Similar Properties
No rental comparables found in this area.
Sold Comparables
Access to sold property data requires a registered and verified account with TRREB DDF integration.
Coming SoonRented Comparables
Access to rented property data requires a registered and verified account with TRREB DDF integration.
Coming Soon

























