185 MARKET Street, Hamilton, Ontario, L8R1P1
MLS: 40788420 | House (Freehold)
$599,900



















































Property Description
Bring your ideas and some TLC to enhance this HUGE single family home, great for a large or extended family, featuring 3 kitchens, 3 full bathrooms, plus a 2 piece. There is a large concrete addition at the rear of main level which has been stripped down to the concrete. Convenient to planned LRT and transit, shopping, Art Gallery, popular restaurants, and the new entertainment venues. Easy highway access. Walkability score 94. This home is sold as is, requires updating and is priced accordingly. Mantel is decorative only. (id:64974)
Quick Facts
- Property Type: House (Freehold)
- Bedrooms: 3 (3 above)
- Bathrooms: 4 (1 half)
- Living Area: 2,345 sq ft (217.9 m²)
- Above Grade: 2,345 sq ft (217.9 m²)
- Year Built: 1899
- Ownership: Freehold
- Attached: Yes
- Parking: 2 spaces (Open)
- Frontage: 28 ft (8.5 m)
Costs
- Annual Taxes: $5,584.31
Listing Provided by: Coldwell Banker Community Professionals
Board: Cornerstone Association of REALTORS®
Data provided via CREA DDF®.
Detailed Features
Interior & Systems
- Heating: Forced air, Natural gas
- Cooling: Window air conditioner
- Basement: Partially finished, Full
- Appliances: Washer, Refrigerator, Stove, Dryer, Window Coverings
- Utilities: Natural Gas, Electricity, Cable, Telephone
- Security: Smoke Detectors
Exterior & Construction
- Exterior: Concrete, Brick, Stone, Aluminum siding, Shingles
- Construction: Concrete block, Concrete Walls
- Foundation: Block
- Sewer: Municipal sewage system
- Water: Municipal water
Lot & Land
- Frontage: 28 ft (8.5 m)
- Features: Crushed stone driveway, Shared Driveway, In-Law Suite
- View: City view
- Zoning: D5
Community & Neighbourhood
- Community: High Traffic Area, School Bus
- Subdivision: 104 - Central South
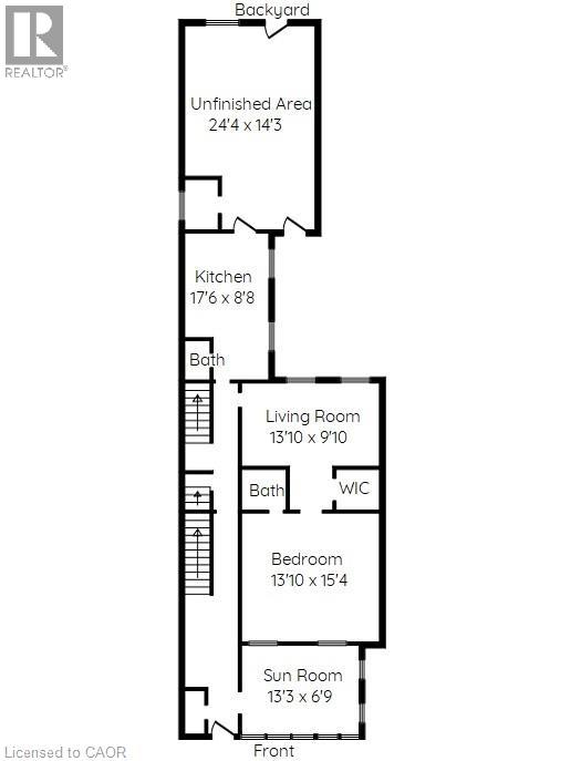
Room Details (19 rooms)
Listing Information
Listing History
Buy/Sell/Terminated/Expired listing history for 185 MARKET Street, Hamilton, Ontario, L8R1P1
Location & Neighborhood
🚗 Travel times
Neighborhood Walkability
Mortgage & Cost Calculators
Nearby Homes (Within 2km)
Similar Homes
Similar Properties
No rental comparables found in this area.
Sold Comparables
Access to sold property data requires a registered and verified account with TRREB DDF integration.
Coming SoonRented Comparables
Access to rented property data requires a registered and verified account with TRREB DDF integration.
Coming Soon
































