1830 STRATTON AVENUE, Peterborough (Otonabee Ward 1), Ontario, K9K2E6
MLS: X12835836 | House (Freehold)
$779,900







































Property Description
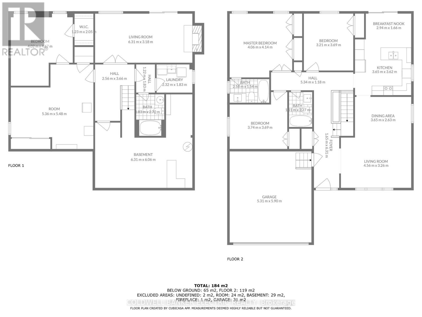
Welcome to this fabulous West end bungalow, perfectly situated on a spacious lot with a double garage. Step into the inviting living and dining room area, featuring a large picture widow that fills the space with natural light. The kitchen has been beautifully updated, with a walk-out to the upper deck, perfect for outdoor dining or relaxing. This home offers two generous bedrooms in addition to the primary suite, which features double closets and a private four piece ensuite. On the lower level, you'll find a cozy family room complete with a fireplace and walkout access to a charming stone patio, ideal for gatherings or quiet evenings. This level also includes a spacious bedroom with a walk-in closet, a full bathroom, a laundry room, and two storage areas for added convenience. Located close to all amenities, schools and SSFC, this home offers easy access to hwy 115, making commuting a breeze, and proximity to Fleming College. (id:64974)
Quick Facts
- Property Type: House (Freehold)
- Style: Bungalow
- Bedrooms: 4 (3 above, 1 below)
- Bathrooms: 3
- Ownership: Freehold
- Attached: No
- Fireplaces: Yes
- Parking: 6 spaces (Attached Garage, Garage)
- Frontage: 66 ft (20 m)
Costs
- Annual Taxes: $6,047.13
Listing Provided by: COLDWELL BANKER ELECTRIC REALTY
Board: Central Lakes Association of REALTORS®
Data provided via CREA DDF®.
Detailed Features
Interior & Systems
- Heating: Forced air, Natural gas
- Cooling: Central air conditioning
- Basement: Full, Walk out
- Appliances: Washer, Refrigerator, Stove, Dryer, Microwave, Garage door opener remote(s), Water Heater
- Utilities: Sewer, Electricity, Cable
Exterior & Construction
- Style: Bungalow
- Exterior: Brick, Vinyl siding
- Foundation: Concrete
- Sewer: Sanitary sewer
- Water: Municipal water
Lot & Land
- Frontage: 66 ft (20 m)
- Features: Sump Pump
- Zoning: R1
Community & Neighbourhood
- Neighbourhood: Otonabee Ward 1
Room Details (12 rooms)
Listing Information
Listing History
Buy/Sell/Terminated/Expired listing history for 1830 STRATTON AVENUE, Peterborough (Otonabee Ward 1), Ontario, K9K2E6
Location & Neighborhood
🚗 Travel times
Neighborhood Walkability
Mortgage & Cost Calculators
Nearby Homes (Within 2km)
Similar Homes
Similar Properties
No rental comparables found in this area.
Sold Comparables
Access to sold property data requires a registered and verified account with TRREB DDF integration.
Coming SoonRented Comparables
Access to rented property data requires a registered and verified account with TRREB DDF integration.
Coming Soon
























