183 PENNY LANE, Hamilton (Stoney Creek Mountain), Ontario, L8J0E2
MLS: X12886854 | Townhouse (Freehold)
$829,900




























Property Description
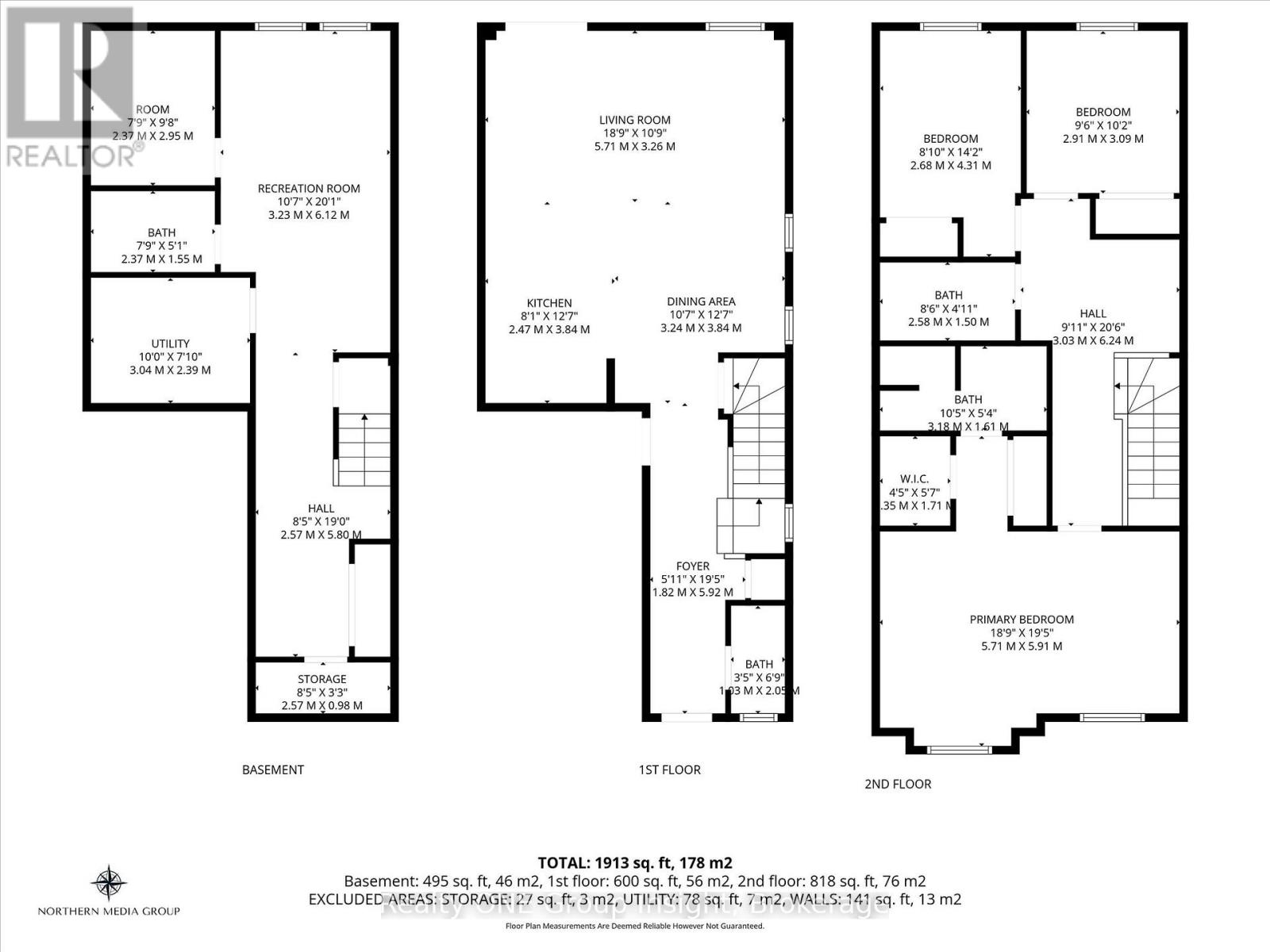
Welcome to this luxurious, bright, and beautifully appointed end-unit townhome, ideally located in the highly sought-after and family-friendly Upper Stoney Creek community. Filled with natural light and showcasing numerous upgrades throughout, this home has been freshly painted and features elegant custom shutters on every window. The main floor offers a practical open-concept layout with a modern kitchen complete with a stylish backsplash, stainless steel appliances, under cabinet lighting and a large island. A hardwood staircase leads to both the second floor and the finished basement, while hardwood flooring adds warmth and elegance to the main floor. The generous primary bedroom features his-and-hers walk-in closets and a 3-piece ensuite. In total, the home offers three bedrooms plus a versatile office/optional fourth bedroom and four bathrooms, providing ample space for families or those working from home. Additional highlights include a finished basement, direct access to the garage, and approximately 1,600 square feet of above-grade living space, plus the finished lower level. Built in 2012, this well-maintained property is conveniently located close to schools, shopping, highways, and all essential amenities. Don't miss this exceptional opportunity to own a stunning home in one of Upper Stoney Creek's most desirable neighbourhoods. The home is currently vacant and ready for immediate occupancy. (id:64974)
Quick Facts
- Property Type: Townhouse (Freehold)
- Bedrooms: 4 (3 above, 1 below)
- Bathrooms: 4 (1 half)
- Ownership: Freehold
- Attached: Yes
- Parking: 3.0 spaces (Garage)
- Frontage: 24 ft (7.3 m)
Costs
- Annual Taxes: $4,888.00 (2025)
Listing Provided by: Realty ONE Group Insight
Board: Toronto Regional Real Estate Board
Data provided via CREA DDF®.
Detailed Features
Interior & Systems
- Heating: Forced air, Natural gas
- Cooling: Central air conditioning
- Basement: Finished, N/A
- Appliances: Washer, Refrigerator, Water meter, Dishwasher, Stove, Dryer, Window Coverings
- Flooring: Hardwood, Carpeted, Ceramic, Vinyl
Exterior & Construction
- Exterior: Stucco
- Foundation: Concrete
- Fencing: Fenced yard
- Sewer: Sanitary sewer
- Water: Municipal water
Lot & Land
- Frontage: 24 ft (7.3 m)
- Features: Flat site, Sump Pump
- Zoning: R1
Community & Neighbourhood
- Community: Community Centre
- Neighbourhood: Stoney Creek Mountain
Room Details (9 rooms)
Listing Information
Listing History
MLS listing activity for 183 PENNY LANE, Hamilton (Stoney Creek Mountain), Ontario, L8J0E2 — dates reflect when changes were recorded in the DDF
🚗 Travel times
Neighborhood Walkability
Mortgage & Cost Calculators
Nearby Homes ?Nearby Homes — Search CriteriaSearch Radius1 kmPrice Range±5%Match BedroomsYesMatch BathroomsYes

33 TALENCE DRIVE, Hamilton (Stoney Creek)
Row / Townhouse$789,900
$5,366/yr taxListing Courtesy of CENTURY 21 PEOPLE'S CHOICE REALTY INC.

183 PENNY Lane, Stoney Creek
Row / Townhouse$829,900
$4,888/yr taxListing Courtesy of REALTY ONE GROUP INSIGHT

71 BRADBURY ROAD, Hamilton (Stoney Creek Mountain)
Row / Townhouse$784,000
$5,504/yr taxListing Courtesy of ROYAL LEPAGE STATE REALTY

71 BRADBURY Road, Stoney Creek
Row / Townhouse$784,000
$5,504/yr taxListing Courtesy of Royal LePage State Realty Inc.

27 WATERBRIDGE STREET, Hamilton (Stoney Creek Mountain)
Row / Townhouse$2,900/mo
Listing Courtesy of RE/MAX HALLMARK REALTY LTD.

18 ENGLAND Terrace, Stoney Creek
Row / Townhouse$649,900
$4,318/yr taxListing Courtesy of Right at Home Realty

11 WEATHERING HEIGHTS DRIVE, Hamilton (Stoney Creek Mountain)
House$1,220,000
$7,409/yr taxListing Courtesy of Bradbury Estate Realty Inc., Brokerage

31 MAYLAND Trail, Stoney Creek
Row / Townhouse$674,900
$4,254/yr taxListing Courtesy of RE/MAX Escarpment Realty Inc.

31 MAYLAND STREET, Hamilton (Stoney Creek Mountain)
Row / Townhouse$674,900
$4,254/yr taxListing Courtesy of RE/MAX ESCARPMENT REALTY INC.

4 MAYLAND Trail, Stoney Creek
Row / Townhouse$2,600/mo
Listing Courtesy of RE/MAX Escarpment Realty Inc.

29 BRADBURY ROAD, Hamilton (Stoney Creek)
Row / Townhouse$814,900
$5,276/yr taxListing Courtesy of ROYAL LEPAGE SIGNATURE REALTY

204 LORMONT Boulevard, Stoney Creek
House$3,100/mo
Listing Courtesy of RE/MAX Escarpment Realty Inc.

151 LORMONT BOULEVARD, Hamilton (Stoney Creek Mountain)
Row / Townhouse$779,900
$4,991/yr taxListing Courtesy of COLDWELL BANKER POWER REALTY

204 LORMONT BOULEVARD, Hamilton (Stoney Creek Mountain)
House$3,100/mo
Listing Courtesy of RE/MAX ESCARPMENT REALTY INC.

9 MELLENBY Street, Stoney Creek
House$699,500
$4,177/yr taxListing Courtesy of RE/MAX Escarpment Realty Inc.
Similar Homes ?Similar Homes — Search CriteriaSearch Radius5 kmPrice Range±5%Match Home TypeYesMatch BedroomsYes

264 CELTIC DRIVE, Hamilton (Stoney Creek)
House$829,900
$4,961/yr taxListing Courtesy of RE/MAX ABOUTOWNE REALTY CORP.

19 LYNWOOD DRIVE, Hamilton (Stoney Creek)
House$829,900
$4,771/yr taxListing Courtesy of REVEL Realty Inc., Brokerage

19 LYNWOOD Drive, Hamilton
House$829,900
$4,771/yr taxListing Courtesy of Cornerstone Association of REALTORS®

5 CORTINA CRESCENT, Hamilton (Rosedale)
House$839,000
$5,737/yr taxListing Courtesy of CENTURY 21 MILLER REAL ESTATE LTD.

128 NUGENT DRIVE, Hamilton (Kentley)
House$839,900
$5,763/yr taxListing Courtesy of ROYAL LEPAGE STATE REALTY

128 NUGENT Drive, Hamilton
House$839,900
$5,763/yr taxListing Courtesy of Royal LePage State Realty Inc.

18 JASPER DRIVE, Hamilton (Stoney Creek)
House$839,900
$4,969/yr taxListing Courtesy of RE/MAX ESCARPMENT REALTY INC.

18 JASPER Drive, Stoney Creek
House$839,900
$4,969/yr taxListing Courtesy of RE/MAX Escarpment Realty Inc.

60 GALBRAITH DRIVE, Hamilton (Stoney Creek)
House$819,900
$4,145/yr taxListing Courtesy of RE/MAX ESCARPMENT REALTY INC.

73 - 10 ANGUS ROAD, Hamilton (Vincent)
Condo - Row / Townhouse$840,000
$2,981/yr taxListing Courtesy of HOMELIFE MAPLE LEAF REALTY LTD.

26 ELLINGTON AVENUE, Hamilton (Stoney Creek)
House$818,000
$4,943/yr taxListing Courtesy of Toronto Regional Real Estate Board

293 #20 REGIONAL Road, Stoney Creek
House$849,900
$3,675/yr taxListing Courtesy of RE/MAX Escarpment Realty Inc.

42 PURITAN COURT, Hamilton (Stoney Creek)
House$849,900
$4,967/yr taxListing Courtesy of HOMELIFE MAPLE LEAF REALTY LTD.

12 BEN NEVIS Drive, Stoney Creek
House$858,900
$5,847/yr taxListing Courtesy of Coldwell Banker-Burnhill Realty

21 ODESSA Street, Stoney Creek
House$799,900
$4,449/yr taxListing Courtesy of RE/MAX Escarpment Golfi Realty Inc.
Similar Properties ?Active Comparables — Search CriteriaSearch Radius2 kmPrice Range±5%Match Home TypeYesMatch BedroomsYes

21 ODESSA Street, Stoney Creek
House$799,900
$4,449/yr taxListing Courtesy of RE/MAX Escarpment Golfi Realty Inc.

312 BEDROCK DRIVE, Hamilton (Stoney Creek Mountain)
House$799,900
$6,172/yr taxListing Courtesy of REALTY ONE GROUP FLAGSHIP

33 TALENCE DRIVE, Hamilton (Stoney Creek)
Row / Townhouse$789,900
$5,366/yr taxListing Courtesy of CENTURY 21 PEOPLE'S CHOICE REALTY INC.

204 LORMONT BOULEVARD, Hamilton (Stoney Creek Mountain)
House$3,100/mo
Listing Courtesy of RE/MAX ESCARPMENT REALTY INC.

204 LORMONT Boulevard, Stoney Creek
House$3,100/mo
Listing Courtesy of RE/MAX Escarpment Realty Inc.
Sold Comparables
Access to sold property data requires a registered and verified account with TRREB DDF integration.
Coming SoonRented Comparables
Access to rented property data requires a registered and verified account with TRREB DDF integration.
Coming SoonBook a Viewing
183 PENNY LANE, Hamilton (Stoney Creek Mountain), Ontario, L8J0E2
