1803 - 50 TOWN CENTRE COURT, Toronto (Bendale), Ontario, M1P0A9
MLS: E12826086 | Apartment (Condo)
$488,880



































Property Description
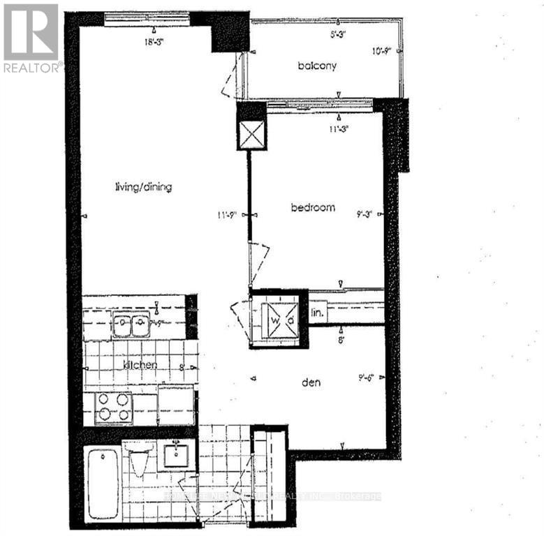
Encore at Equinox, located at 50 Town Centre Court, this Stunning high-floor 1 Bedroom + Den suite offers exceptional convenience and a lifestyle. The Spacious Den is large enough to be used as a Second Bedroom or Home Office. This bright and sunny unit features a Panoramic West view with a large balcony, extending toward downtown Toronto. Designed with a modern open-concept layout and elegant contemporary finishes throughout. Enjoy world-class amenities including 24-hour concierge and security, fully equipped Gym, Theatre Room, Party Room, and Media Room. Unbeatable location! Steps to Scarborough Town Centre (STC), TTC RT Station, GO Bus, Movie Theatre, and a wide variety of Restaurants and Shops. Just minutes to Highway 401. (id:64974)
Quick Facts
- Property Type: Apartment (Condo)
- Bedrooms: 2 (1 above, 1 below)
- Bathrooms: 1
- Ownership: Condo/Strata
- Attached: Yes
- Parking: 1 space (Garage, Underground)
Costs
- Annual Taxes: $2,217.02
- Condo/HOA Fee: $572.23 / monthly
- Corp: Percel Property Management
- Includes: Common Area Maintenance, Heat, Water, Insurance, Parking
Listing Provided by: HOMELIFE NEW WORLD REALTY INC.
Board: Toronto Regional Real Estate Board
Data provided via CREA DDF®.
Detailed Features
Interior & Systems
- Heating: Forced air, Natural gas
- Cooling: Central air conditioning
- Basement: None
- Appliances: Washer, Refrigerator, Dishwasher, Stove, Dryer, Microwave, Window Coverings
- Flooring: Laminate, Ceramic
Exterior & Construction
- Exterior: Concrete
Lot & Land
- Features: Balcony, Carpet Free
- View: City view
Community & Neighbourhood
- Community: Pets Allowed With Restrictions
- Building: Storage - Locker
- Neighbourhood: Bendale
Room Details (5 rooms)
Listing Information
Listing History
Buy/Sell/Terminated/Expired listing history for 1803 - 50 TOWN CENTRE COURT, Toronto (Bendale), Ontario, M1P0A9
Location & Neighborhood
🚗 Travel times
Neighborhood Walkability
Mortgage & Cost Calculators
Nearby Homes (Within 2km)
Similar Homes
Similar Properties
No rental comparables found in this area.
Sold Comparables
Access to sold property data requires a registered and verified account with TRREB DDF integration.
Coming SoonRented Comparables
Access to rented property data requires a registered and verified account with TRREB DDF integration.
Coming Soon


























