1776 LABONTE STREET, Clarence-Rockland, Ontario, K0A1N0
MLS: X12815452 | House (Freehold)
$514,900














































Property Description
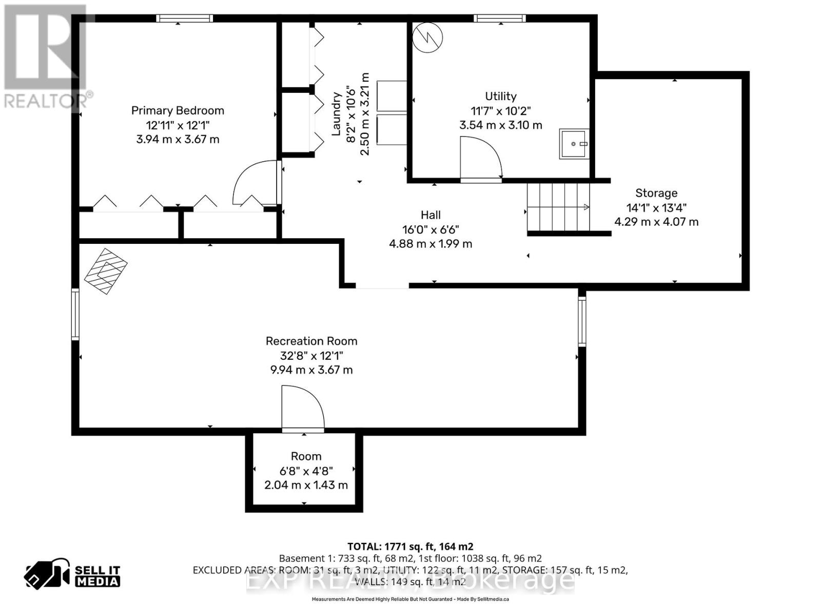
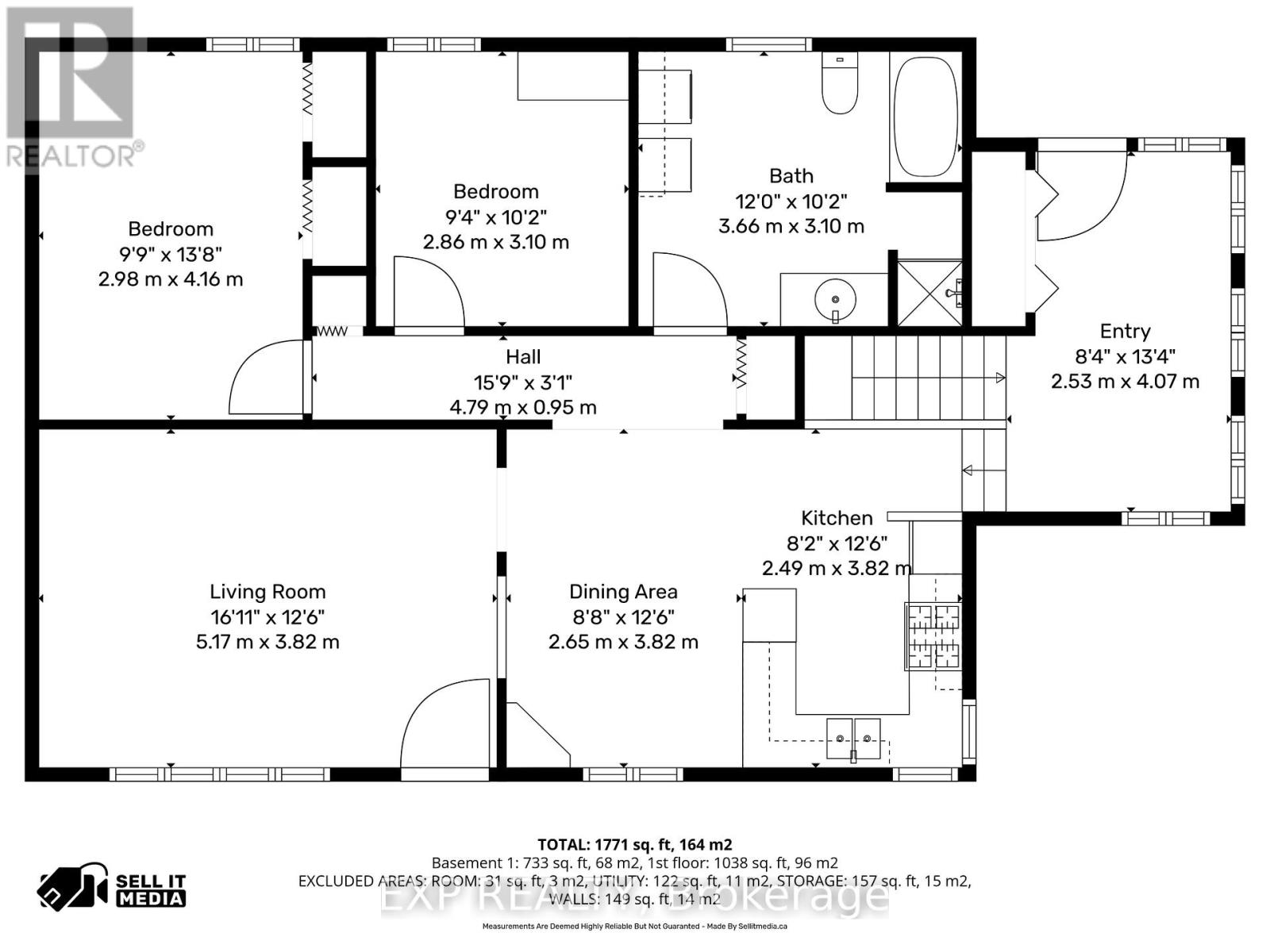
Country Charm on a Full Acre - Minutes from Rockland & Ottawa! Discover the perfect blend of space, privacy, and opportunity with this charming 3-bedroom bungalow set on a full 1-acre lot, just 10 minutes to Rockland and 25 minutes to Ottawa-ideal for first-time buyers, families, or investors looking for future potential. Step inside to a bright and welcoming layout featuring a functional kitchen that opens to a cozy dining area-perfect for everyday living and family meals. A few steps away, the spacious living room offers plenty of natural light, creating a warm and inviting atmosphere.Down the hall, you'll find the primary bedroom and a second generous bedroom, along with a large full bathroom that conveniently includes main-floor laundry.The finished lower level adds even more living space with a third bedroom and a comfortable family room complete with a natural gas fireplace-perfect for movie nights or relaxing evenings.Outside, the property truly shines: Oversized detached garage with room for 2 vehicles, tools, and all your toys Beautiful 1-acre lot offering privacy and room to roam Property originally purchased as two half-acre parcels with potential severance opportunity. Enjoy peaceful country living while staying close to schools, shops, and amenities in Rockland, with an easy commute into Ottawa.A rare opportunity with space, value, and future potential-don't miss it! (id:64974)
Quick Facts
- Property Type: House (Freehold)
- Style: Bungalow
- Bedrooms: 3 (2 above, 1 below)
- Bathrooms: 1
- Ownership: Freehold
- Attached: No
- Parking: 12 spaces (Detached Garage, Garage)
- Frontage: 150 ft (45.7 m)
Costs
- Annual Taxes: $3,595.00
Listing Provided by: EXP REALTY
Board: Ottawa Real Estate Board
Data provided via CREA DDF®.
Detailed Features
Interior & Systems
- Heating: Baseboard heaters, Not known, Not known, Electric, Natural gas
- Cooling: None
- Basement: Finished, Full
- Appliances: Washer, Refrigerator, Stove, Dryer, Garage door opener remote(s)
- Utilities: Electricity, Cable
Exterior & Construction
- Style: Bungalow
- Exterior: Vinyl siding
- Foundation: Block
- Sewer: Septic System
- Water: Municipal water
Lot & Land
- Frontage: 150 ft (45.7 m)
- Features: Carpet Free
Community & Neighbourhood
- Building: Fireplace(s)
- Neighbourhood: 607 - Clarence/Rockland Twp
Room Details (11 rooms)
Listing Information
Listing History
Buy/Sell/Terminated/Expired listing history for 1776 LABONTE STREET, Clarence-Rockland, Ontario, K0A1N0
Location & Neighborhood
🚗 Travel times
Neighborhood Walkability
Mortgage & Cost Calculators
Nearby Homes (Within 2km)
Similar Homes
Similar Properties
No rental comparables found in this area.
Sold Comparables
Access to sold property data requires a registered and verified account with TRREB DDF integration.
Coming SoonRented Comparables
Access to rented property data requires a registered and verified account with TRREB DDF integration.
Coming Soon


















