176 DAGMAR AVENUE, Ottawa, Ontario, K1L5T2
MLS: X12916094 | Duplex
$859,000









































Property Description
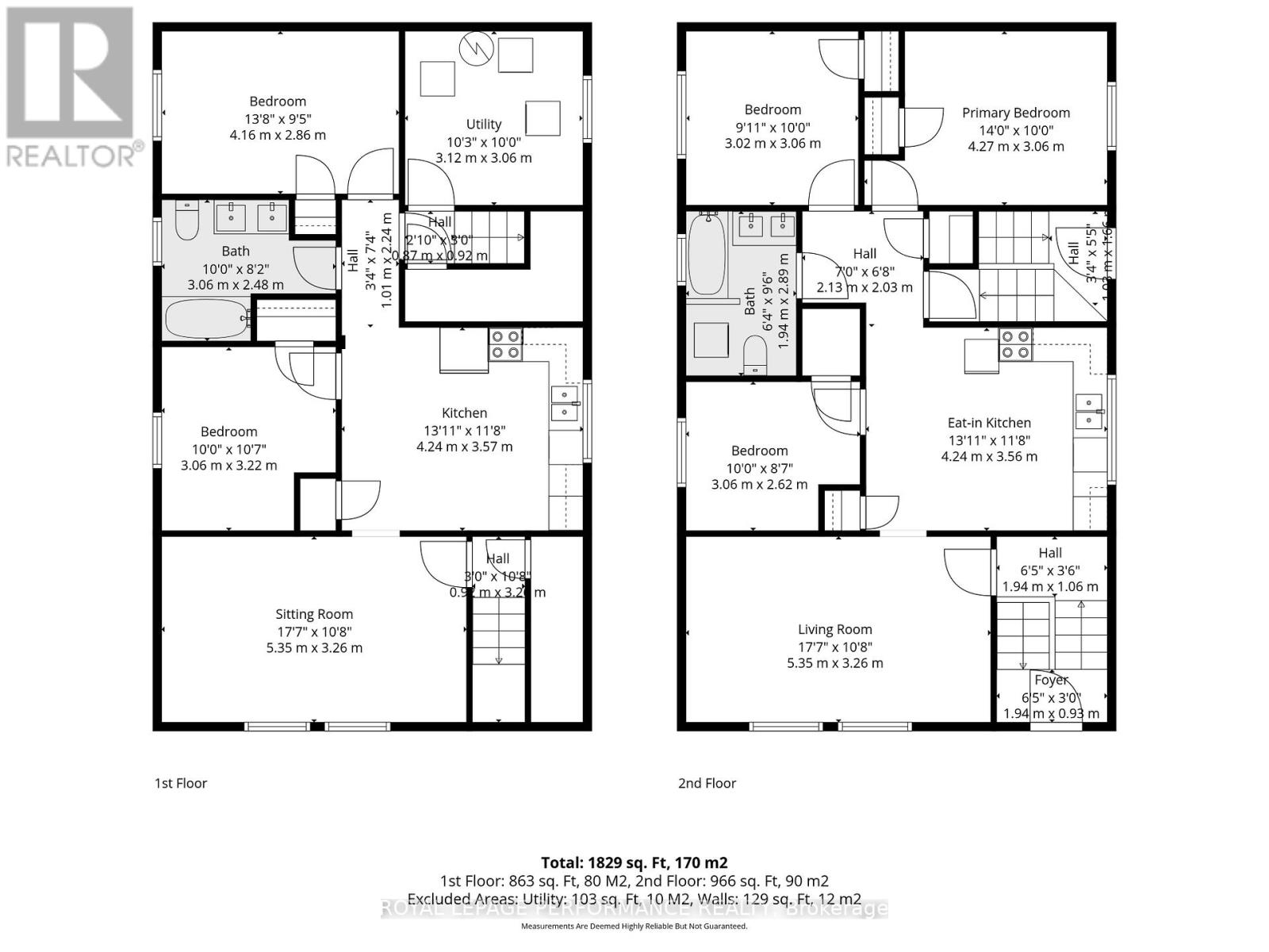
Invest in community, and peace of mind with this fully renovated, purpose-built duplex in trendy Vanier North. Extensively upgraded (2022-2023), this duplex is perfectly suited for first-time home buyers who want to own with income, investors looking for a savvy property or multi-generational living. Enjoy a new roof, windows, and exterior doors, alongside front yard landscaping, shed and plenty of space to park. The interiors shine with new kitchens, bathrooms, modern flooring, stylish fixtures, and new paint throughout. The upper unit boasts three spacious bedrooms, living room, kitchen, a full bathroom with laundry. The lower unit has two bedrooms, a living room and a large kitchen with a separate laundry room. Walk to the best cafes and shops along Beechwood Avenue, and just a short jaunt to Downtown Ottawa from this turnkey home. (id:64974)
Quick Facts
- Property Type: Duplex
- Style: Raised bungalow
- Bedrooms: 5 (3 above, 2 below)
- Bathrooms: 2
- Attached: Yes
- Parking: 5.0 spaces (No Garage)
- Frontage: 39 ft (12 m)
Costs
- Annual Taxes: $4,503.00
Listing Provided by: ROYAL LEPAGE PERFORMANCE REALTY
Board: Ottawa Real Estate Board
Data provided via CREA DDF®.
Detailed Features
Interior & Systems
- Heating: Radiant heat, Natural gas
- Cooling: Window air conditioner
- Basement: Finished, N/A
Exterior & Construction
- Style: Raised bungalow
- Exterior: Brick Facing
- Foundation: Block
- Sewer: Sanitary sewer
- Water: Municipal water
Lot & Land
- Frontage: 39 ft (12 m)
- Features: Carpet Free
Community & Neighbourhood
- Building: Separate Electricity Meters, Separate Heating Controls
- Neighbourhood: 3402 - Vanier
Listing Information
Listing History
MLS listing activity for 176 DAGMAR AVENUE, Ottawa, Ontario, K1L5T2 — dates reflect when changes were recorded in the DDF
🚗 Travel times
Neighborhood Walkability
Mortgage & Cost Calculators
Nearby Homes ?Nearby Homes — Search CriteriaSearch Radius1 kmPrice Range±5%Match BedroomsYesMatch BathroomsYes

154-156 DAGMAR AVENUE, Ottawa
Multi-Family$1,649,900
$8,365/yr taxListing Courtesy of SUTTON GROUP - OTTAWA REALTY

2 - 131 DAGMAR AVENUE, Ottawa
Triplex$2,000/mo
Listing Courtesy of RE/MAX ABSOLUTE WALKER REALTY

4 - 250 SHAKESPEARE STREET, Ottawa
Other$2,050/mo
Listing Courtesy of LPT REALTY

216 HANNAH STREET, Ottawa
Triplex$699,900
$4,926/yr taxListing Courtesy of AVENUE NORTH REALTY INC.

273 SHAKESPEARE STREET, Ottawa
Duplex$1,850/mo
Listing Courtesy of RE/MAX DELTA REALTY TEAM

4 - 96 JOLLIET AVENUE, Ottawa
Other$2,250/mo
Listing Courtesy of AVENUE NORTH REALTY INC.

3 - 72 JOLLIET AVENUE, Ottawa
Triplex$1,975/mo
Listing Courtesy of Enas Awad

BASEMENT - 233 HECTOR-HOTTE WAY, Ottawa
Triplex$1,850/mo
Listing Courtesy of Enas Awad

253 FRECHETTE STREET, Ottawa
Duplex$888,000
$6,800/yr taxListing Courtesy of FIRST CHOICE REALTY ONTARIO LTD.

264 MICHEL CIRCLE, Ottawa
Duplex$799,900
$5,615/yr taxListing Courtesy of RE/MAX HALLMARK REALTY GROUP

75 GENEST STREET, Ottawa
Other$2,699,000
$7,669/yr taxListing Courtesy of RE/MAX HALLMARK REALTY GROUP

269 MICHEL CIRCLE, Ottawa
Duplex$899,900
$4,845/yr taxListing Courtesy of RE/MAX HALLMARK REALTY GROUP

8 - 319 SHAKESPEARE STREET, Ottawa
Other$1,800/mo
Listing Courtesy of LPT REALTY

5 - 319 SHAKESPEARE STREET, Ottawa
Other$2,400/mo
Listing Courtesy of LPT REALTY

9 - 319 SHAKESPEARE STREET, Ottawa
Other$2,600/mo
Listing Courtesy of LPT REALTY
Similar Homes ?Similar Homes — Search CriteriaSearch Radius5 kmPrice Range±5%Match Home TypeYesMatch BedroomsYes

352 LACASSE AVENUE, Ottawa
Duplex$835,000
$5,620/yr taxListing Courtesy of RE/MAX ABSOLUTE REALTY INC.

253 FRECHETTE STREET, Ottawa
Duplex$888,000
$6,800/yr taxListing Courtesy of FIRST CHOICE REALTY ONTARIO LTD.

395 MCLEOD STREET, Ottawa
Fourplex$899,900
$8,187/yr taxListing Courtesy of ROYAL LEPAGE TEAM REALTY

546 GUY STREET, Ottawa
Duplex$899,900
$6,035/yr taxListing Courtesy of EXP REALTY

548 GUY STREET, Ottawa
Duplex$899,900
$6,219/yr taxListing Courtesy of EXP REALTY
Similar Properties ?Active Comparables — Search CriteriaSearch Radius2 kmPrice Range±5%Match Home TypeYesMatch BedroomsYes

352 LACASSE AVENUE, Ottawa
Duplex$835,000
$5,620/yr taxListing Courtesy of RE/MAX ABSOLUTE REALTY INC.

253 FRECHETTE STREET, Ottawa
Duplex$888,000
$6,800/yr taxListing Courtesy of FIRST CHOICE REALTY ONTARIO LTD.

546 GUY STREET, Ottawa
Duplex$899,900
$6,035/yr taxListing Courtesy of EXP REALTY

548 GUY STREET, Ottawa
Duplex$899,900
$6,219/yr taxListing Courtesy of EXP REALTY
No rental comparables found in this area.
Sold Comparables
Access to sold property data requires a registered and verified account with TRREB DDF integration.
Coming SoonRented Comparables
Access to rented property data requires a registered and verified account with TRREB DDF integration.
Coming SoonBook a Viewing
176 DAGMAR AVENUE, Ottawa, Ontario, K1L5T2
