175 POMEROY AVENUE, Tweed (Tweed (Village)), Ontario, K0K3J0
MLS: X12840824 | Townhouse (Freehold)
$550,000


































Property Description
Come to the model home at 159 Pomeroy for the Open House on Thursday March 5 - 2:30-4:00. Looking for small town charm, hospitality and a quality new build? This is a lifestyle worth waiting for! This bright and spacious *ready to be finished* end unit town home will shine with amenities you expect and desire, from the 9 ft ceilings, to the open concept living area with gas fireplace, tray ceiling and huge patio doors to a private deck. Bonus, builder selection kitchen appliances included, quartz counters with breakfast peninsula and perfect for entertaining. The primary is a beautiful retreat with the perfect size for your king suite, a walk-in closet, and an elevated ensuite with tile shower & glass doors. The front hall leads to a second bedroom perfect for guests or as a home office with the main bath close by. To top it off a separate main floor laundry room and separate entry to the attached garage. Plus a full basement waiting for your future development and ample storage space. This stylish brand new home built by Schoolyard Developments comes with a Tarion Warranty so you can just relax and enjoy this convenient location only two blocks from the quaint and welcoming downtown of Tweed. Stroll along the Moira River or head to the shore where the park meets the beach on Stoco Lake or drive to the premier Potter Settlement Vineyards & Artisan Winery nearby. This is a perfect opportunity for those looking to simplify, downsize, retire or start a new life together in a friendly and scenic village where the stars still sparkle at night, in the Land O Lakes, only minutes to Highway 7 or a half hour to 401/Belleville. There's still time to choose some finishes - you don't want to miss this opportunity. Please note, for inspiration the Virtual Tour & Photos in the Gallery (which are reversed) are from the Model Unit. The video shows both unit 175 unfinished and the finished plan at the Model Unit 159. (id:64974)
Quick Facts
- Property Type: Townhouse (Freehold)
- Style: Bungalow
- Bedrooms: 2 (2 above)
- Bathrooms: 2
- Ownership: Freehold
- Attached: Yes
- Fireplaces: 1
- Parking: 2 spaces (Attached Garage, Garage)
- Frontage: 39 ft (12 m)
Listing Provided by: ROYAL LEPAGE PROALLIANCE REALTY
Board: Central Lakes Association of REALTORS®
Data provided via CREA DDF®.
Detailed Features
Interior & Systems
- Heating: Forced air, Natural gas
- Cooling: Central air conditioning
- Basement: Unfinished, Full, N/A
- Appliances: Refrigerator, Dishwasher, Stove, Garage door opener
- Security: Smoke Detectors
Exterior & Construction
- Style: Bungalow
- Exterior: Stone, Hardboard
- Foundation: Poured Concrete
- Sewer: Sanitary sewer
- Water: Municipal water
Lot & Land
- Frontage: 39 ft (12 m)
- Features: Carpet Free
Community & Neighbourhood
- Community: Community Centre
- Building: Fireplace(s)
- Neighbourhood: Tweed (Village)
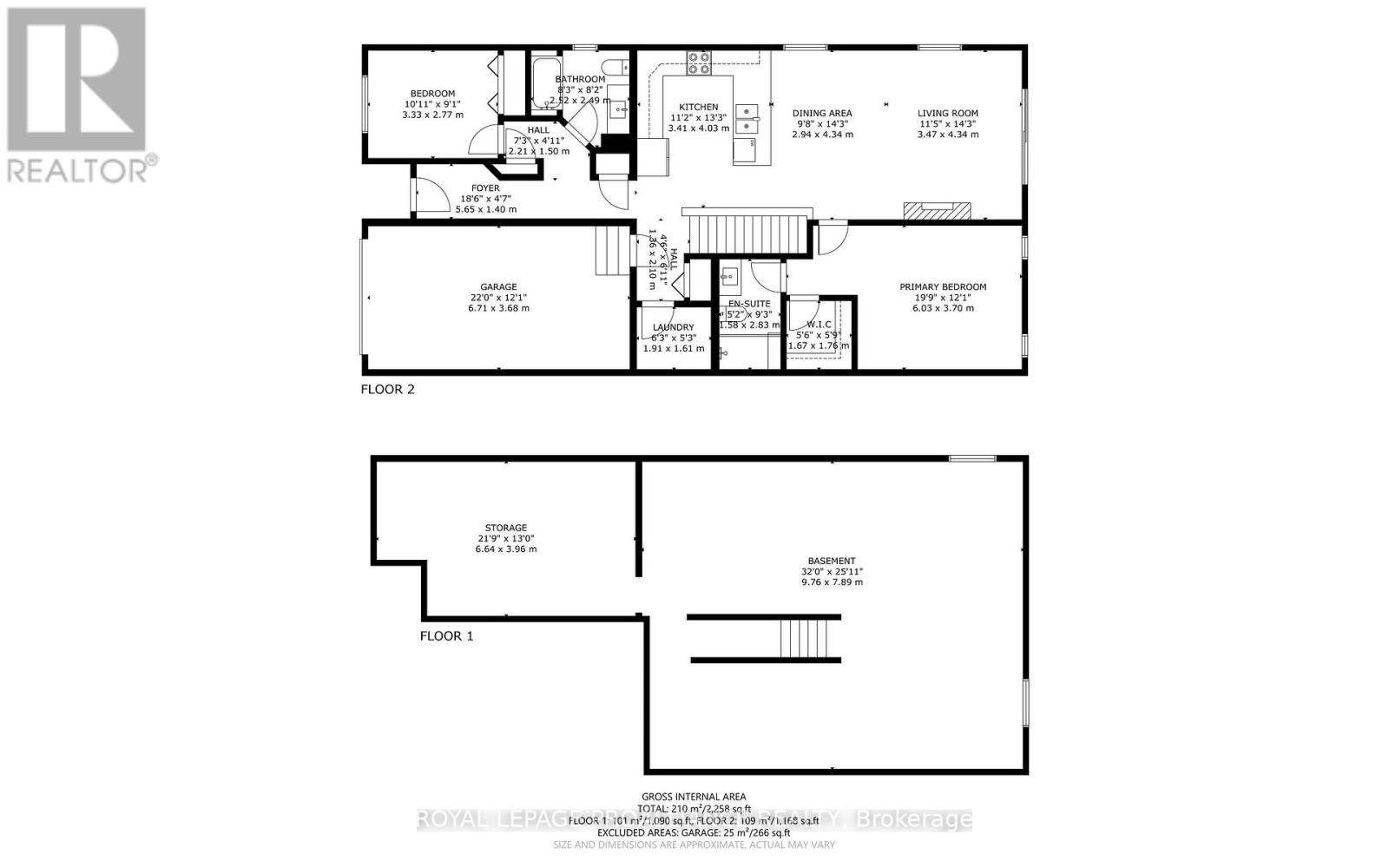
Room Details (9 rooms)
Listing Information
Listing History
Buy/Sell/Terminated/Expired listing history for 175 POMEROY AVENUE, Tweed (Tweed (Village)), Ontario, K0K3J0
Location & Neighborhood
🚗 Travel times
Neighborhood Walkability
Mortgage & Cost Calculators
Nearby Homes (Within 2km)
Similar Homes
Similar Properties
No rental comparables found in this area.
Sold Comparables
Access to sold property data requires a registered and verified account with TRREB DDF integration.
Coming SoonRented Comparables
Access to rented property data requires a registered and verified account with TRREB DDF integration.
Coming Soon























