1706 COUNTY 18 ROAD, North Grenville, Ontario, K0G1S0
MLS: X12991898 | House (Freehold)
$900,000












Property Description
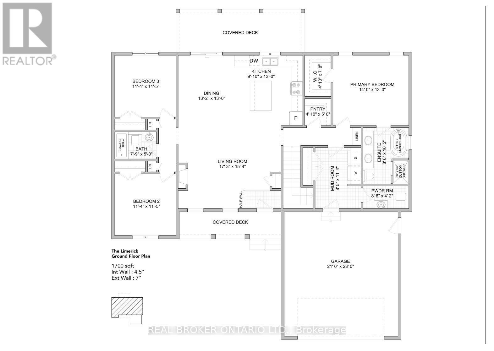
Welcome to your dream waterfront bungalow by ArchStone Homes, perfectly positioned in the heart of North Grenville. This stunning home opportunity offers modern design, quality craftsmanship, and peaceful living along Kemptville Creek. Situated on a spacious lot with direct waterfront access, this thoughtfully designed 3-bedroom bungalow features approximately 1,700 sq ft of finished living space with a bright, open-concept layout. The main floor showcases a stylish kitchen flowing seamlessly into the dining and living areas, ideal for both everyday living and entertaining. The primary bedroom retreat offers convenience on the main level, complemented by well-appointed additional bedrooms and bathrooms. Enjoy the added potential of a walk-out basement, perfect for future customization, in-law capability, or extended living space. Quality finishes include forced air propane heating, central air conditioning, and modern exterior details that enhance curb appeal. Step outside to experience tranquil waterfront views, a private rural setting, and ample parking with an attached garage and lane driveway. Located just minutes from amenities while offering the serenity of country living, this home is the perfect blend of comfort and lifestyle. Don't miss your chance to own a brand-new waterfront home in a growing and desirable community. (id:64974)
Quick Facts
- Property Type: House (Freehold)
- Style: Bungalow
- Bedrooms: 3 (3 above)
- Bathrooms: 3 (1 half)
- Ownership: Freehold
- Attached: No
- Parking: 5.0 spaces (Attached Garage, Garage)
- Frontage: 131 ft (40 m)
Listing Provided by: REAL BROKER ONTARIO LTD.
Board: Ottawa Real Estate Board
Data provided via CREA DDF®.
Detailed Features
Interior & Systems
- Heating: Forced air, Propane
- Cooling: Central air conditioning, Air exchanger
- Basement: Walk out, N/A
- Appliances: Garage door opener remote(s)
Exterior & Construction
- Style: Bungalow
- Exterior: Vinyl siding
- Foundation: Poured Concrete
- Sewer: Septic System
- Water: Drilled Well
Lot & Land
- Frontage: 131 ft (40 m)
- Features: Lane
- View: Direct Water View
- Waterfront: Waterfront on creek
- Water Body: Kemptville Creek
Community & Neighbourhood
- Neighbourhood: 803 - North Grenville Twp (Kemptville South)
Room Details (10 rooms)
Listing Information
Listing History
MLS listing activity for 1706 COUNTY 18 ROAD, North Grenville, Ontario, K0G1S0 — dates reflect when changes were recorded in the DDF
🚗 Travel times
Neighborhood Walkability
Mortgage & Cost Calculators
Nearby Homes ?Nearby Homes — Search CriteriaSearch Radius1 kmPrice Range±5%Match BedroomsYesMatch BathroomsYes

1718 COUNTY 18 ROAD, North Grenville
House$999,000
Listing Courtesy of REAL BROKER ONTARIO LTD.

1722 COUNTY 18 ROAD, North Grenville
House$1,150,000
Listing Courtesy of REAL BROKER ONTARIO LTD.

9 WATER STREET, North Grenville
House$585,000
$4,035/yr taxListing Courtesy of KEMPTVILLE HOMES REAL ESTATE INC.

7 TILLY LANE, North Grenville
House$628,900
$3,107/yr taxListing Courtesy of DETAILS REALTY INC.
Similar Homes ?Similar Homes — Search CriteriaSearch Radius5 kmPrice Range±5%Match Home TypeYesMatch BedroomsYes

67 STONEWALK DRIVE, North Grenville
House$885,000
$5,472/yr taxListing Courtesy of ROYAL LEPAGE TEAM REALTY

216 EMICK DRIVE, Hamilton (Ancaster)
House$900,000
$6,098/yr taxListing Courtesy of BAY STREET GROUP INC.

803 - 1 DEER PARK CRESCENT, Toronto (Yonge-St. Clair)
Condo - Apartment$900,000
$4,013/yr taxListing Courtesy of SAGE REAL ESTATE LIMITED

522 MISSISSAGUA ROAD, Niagara-on-the-Lake (Town)
House$900,000
$4,373/yr taxListing Courtesy of REVEL Realty Inc., Brokerage

325 - 155 MERCHANTS' WHARF, Toronto (Waterfront Communities)
Condo - Apartment$900,000
Listing Courtesy of PC275 REALTY INC.

597 ROBERT HILL STREET, Mississippi Mills
House$900,000
$4,896/yr taxListing Courtesy of ROYAL LEPAGE PERFORMANCE REALTY

6 GLEN ABBEY COURT, Meaford
House$900,000
$5,584/yr taxListing Courtesy of Century 21 Millennium Inc.

158 ANNE STREET, Niagara-on-the-Lake (Town)
Row / Townhouse$900,000
$5,650/yr taxListing Courtesy of RE/MAX WEST REALTY INC.

1005 MACDONALD LANE, Frontenac (Frontenac South)
House$900,000
$2,891/yr taxListing Courtesy of RE/MAX FINEST REALTY INC., BROKERAGE

96 ISLAND ROAD, Prince Edward County (Hallowell Ward)
House$900,000
$4,683/yr taxListing Courtesy of KELLER WILLIAMS ENERGY REAL ESTATE

42 DANDARA GATE, Vaughan (Steeles West Industrial)
Row / Townhouse$900,000
$4,037/yr taxListing Courtesy of RIGHT AT HOME REALTY

33 RIDGEWAY AVENUE, Guelph (Pineridge/Westminster Woods)
House$900,000
$5,676/yr taxListing Courtesy of HOUSESIGMA INC.

5 MELODY LANE, Georgina (Sutton & Jackson's Point)
House$900,000
$5,992/yr taxListing Courtesy of Royal LePage Our Neighbourhood Realty

2253 LINKWAY BOULEVARD, London South (South A)
House$900,000
$8,315/yr taxListing Courtesy of CENTURY 21 FIRST CANADIAN CORP

PH5 - 500 DUPONT STREET, Toronto (Annex)
Condo - Apartment$900,000
Listing Courtesy of CITYVIEW REALTY INC.
Similar Properties ?Active Comparables — Search CriteriaSearch Radius2 kmPrice Range±5%Match Home TypeYesMatch BedroomsYes
No rental comparables found in this area.
Sold Comparables
Access to sold property data requires a registered and verified account with TRREB DDF integration.
Coming SoonRented Comparables
Access to rented property data requires a registered and verified account with TRREB DDF integration.
Coming SoonBook a Viewing
1706 COUNTY 18 ROAD, North Grenville, Ontario, K0G1S0
