1706 - 2625 REGINA STREET, Ottawa, Ontario, K2B5W8
MLS: X12963344 | Apartment (Condo)
$424,900

















































Property Description
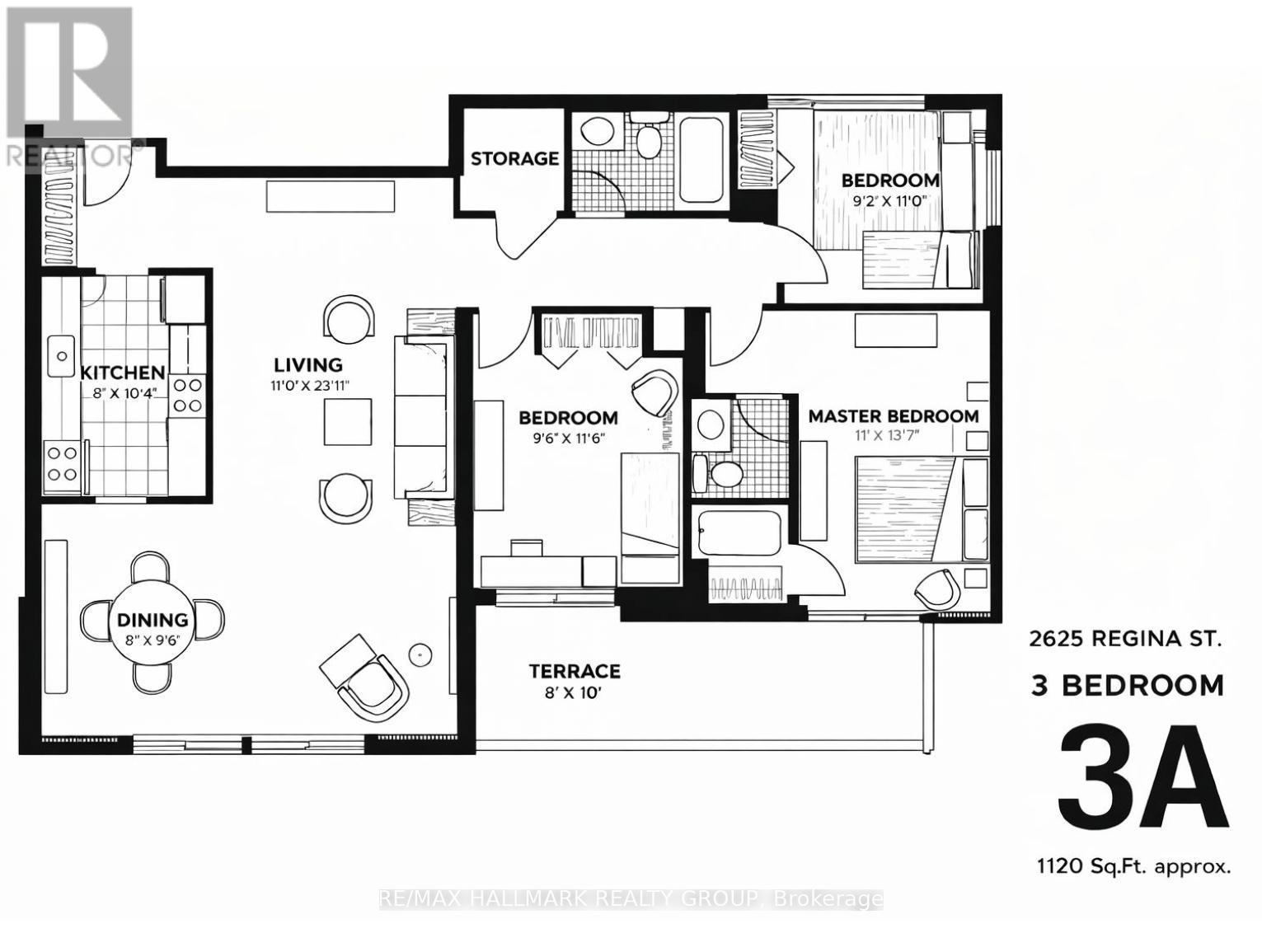
Welcome to this rarely offered spacious 3-bedroom condo perched on the 17th floor, offering breathtaking views of Britannia Bay and stunning sunsets over the Ottawa River. This large floor plan provides an ideal blend of comfort and functionality, perfect for both everyday living and entertaining. The unit has been freshly painted and features an updated kitchen and two renovated bathrooms, all finished with high-end materials. The kitchen is equipped with stainless steel appliances, offering a modern and clean aesthetic. Additional highlights include in-unit storage and an oversized private balcony, perfect for enjoying the panoramic water views. Residents enjoy a true resort-style lifestyle with access to premium amenities including a large lap pool, fully equipped gym, party room, expansive outdoor spaces, and a walking track. Step outside and connect directly to the Ottawa River Pathway and nearby natural gems like Mud Lake. Ideally located in Ottawa's west end, this condo is just steps to shopping, transit, and everyday amenities, making it a perfect option for those seeking convenience without compromising on lifestyle. Finally, this corner unit was fully updated with an energy efficient heat pump system reducing your energy costs! Book your showing today! Complete with underground parking, this is elevated condo living at its best. (id:64974)
Quick Facts
- Property Type: Apartment (Condo)
- Bedrooms: 3 (3 above)
- Bathrooms: 2 (1 half)
- Ownership: Condo/Strata
- Attached: Yes
- Parking: 1.0 space (Garage, Underground)
Costs
- Annual Taxes: $3,087.00 (2025)
- Condo/HOA Fee: $1,022.00 / monthly
- Corp: Eastern Ontario Property Management Group
- Includes: Water, Insurance
Listing Provided by: RE/MAX HALLMARK REALTY GROUP
Board: Ottawa Real Estate Board
Data provided via CREA DDF®.
Detailed Features
Interior & Systems
- Heating: Heat Pump, Electric
- Cooling: Wall unit
- Basement: None
- Appliances: Refrigerator, Dishwasher, Stove, Microwave, Hood Fan, Blinds
- Security: Smoke Detectors
Exterior & Construction
- Exterior: Brick
Lot & Land
- Features: Elevator, Balcony, Carpet Free, Laundry- Coin operated, Sauna
- View: River view, View
- Pool: Indoor pool
Community & Neighbourhood
- Community: Pets Allowed With Restrictions
- Building: Exercise Centre, Party Room, Sauna
- Neighbourhood: 6102 - Britannia
Room Details (10 rooms)
Listing Information
Listing History
MLS listing activity for 1706 - 2625 REGINA STREET, Ottawa, Ontario, K2B5W8 — dates reflect when changes were recorded in the DDF
🚗 Travel times
Neighborhood Walkability
Mortgage & Cost Calculators
Nearby Homes ?Nearby Homes — Search CriteriaSearch Radius1 kmPrice Range±5%Match BedroomsYesMatch BathroomsYes

57 - 811 CONNAUGHT AVENUE, Ottawa
Condo - Row / Townhouse$415,000
$2,992/yr taxListing Courtesy of TRINITYSTONE REALTY INC.

1209 - 2625 REGINA STREET, Ottawa
Condo - Apartment$319,900
$2,626/yr taxListing Courtesy of BENNETT PROPERTY SHOP REALTY

409 - 2625 REGINA STREET, Ottawa
Condo - Apartment$289,900
$2,769/yr taxListing Courtesy of BENNETT PROPERTY SHOP REALTY

803 - 2625 REGINA STREET, Ottawa
Condo - Apartment$312,500
$2,565/yr taxListing Courtesy of ROYAL LEPAGE INTEGRITY REALTY

1603 - 265 POULIN AVENUE E, Ottawa
Condo - Apartment$279,000
$2,356/yr taxListing Courtesy of RE/MAX HALLMARK REALTY GROUP

109 - 265 POULIN AVENUE, Ottawa
Condo - Apartment$299,900
$2,111/yr taxListing Courtesy of COLDWELL BANKER SARAZEN REALTY

B - 2643 DON STREET, Ottawa
House$1,800/mo
Listing Courtesy of TRU REALTY

207 - 265 POULIN AVENUE, Ottawa
Condo - Apartment$380,000
$3,394/yr taxListing Courtesy of ROYAL LEPAGE PERFORMANCE REALTY

1611 - 265 POULIN AVENUE N, Ottawa
Condo - Apartment$359,900
$2,626/yr taxListing Courtesy of ROYAL LEPAGE TEAM REALTY

2666 REGINA STREET, Ottawa
House$595,000
$3,510/yr taxListing Courtesy of REMAX BOARDWALK REALTY

336 POULIN AVENUE, Ottawa
House$735,000
$4,270/yr taxListing Courtesy of EXP REALTY

345 POULIN AVENUE, Ottawa
House$614,900
$3,629/yr taxListing Courtesy of ROYAL LEPAGE TEAM REALTY

C - 2647 PRISCILLA STREET, Ottawa
Other$2,050/mo
Listing Courtesy of LOTFUL REALTY

2691 PRISCILLA STREET, Ottawa
House$649,999
$3,914/yr taxListing Courtesy of REMAX BOARDWALK REALTY

2700 PRISCILLA STREET, Ottawa
House$1,095,000
$4,489/yr taxListing Courtesy of RIGHT AT HOME REALTY
Similar Homes ?Similar Homes — Search CriteriaSearch Radius5 kmPrice Range±5%Match Home TypeYesMatch BedroomsYes

117 TALL PINES PRIVATE, Ottawa
Condo - Row / Townhouse$423,900
$2,953/yr taxListing Courtesy of RE/MAX ABSOLUTE REALTY INC.

115 TALL PINES PRIVATE, Ottawa
Condo - Row / Townhouse$419,999
$2,638/yr taxListing Courtesy of SUTTON GROUP - OTTAWA REALTY

57 - 811 CONNAUGHT AVENUE, Ottawa
Condo - Row / Townhouse$415,000
$2,992/yr taxListing Courtesy of TRINITYSTONE REALTY INC.

D - 284 DALEHURST DRIVE, Ottawa
Condo - Row / Townhouse$434,900
$2,822/yr taxListing Courtesy of EXP REALTY

1137 AMBLESIDE DRIVE, Ottawa
Condo - Row / Townhouse$439,750
$4,585/yr taxListing Courtesy of ROYAL LEPAGE TEAM REALTY
Similar Properties ?Active Comparables — Search CriteriaSearch Radius2 kmPrice Range±5%Match Home TypeYesMatch BedroomsYes

57 - 811 CONNAUGHT AVENUE, Ottawa
Condo - Row / Townhouse$415,000
$2,992/yr taxListing Courtesy of TRINITYSTONE REALTY INC.

1137 AMBLESIDE DRIVE, Ottawa
Condo - Row / Townhouse$439,750
$4,585/yr taxListing Courtesy of ROYAL LEPAGE TEAM REALTY
No rental comparables found in this area.
Sold Comparables
Access to sold property data requires a registered and verified account with TRREB DDF integration.
Coming SoonRented Comparables
Access to rented property data requires a registered and verified account with TRREB DDF integration.
Coming SoonBook a Viewing
1706 - 2625 REGINA STREET, Ottawa, Ontario, K2B5W8
