170 DIANA DRIVE, Orillia, Ontario, L3V8J7
MLS: S12911516 | House (Freehold)
$742,000







































Property Description
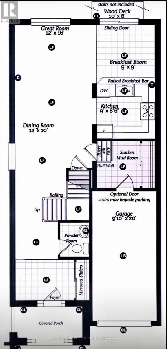
Welcome to this beautifully maintained detached home offering the perfect blend of space, comfort, and convenience. Featuring four generously sized bedrooms, this residence is ideal for growing families orthose seeking a functional and elegant layout. The expansive main floor is filled with natural light through large windows, creating a warm and inviting atmosphere throughout. The upgraded kitchen is designed for both style and practicality, complete with a modern sink and faucet, stainless steel appliances, and a bright breakfast area with a walk-out to a private deck-perfect for morning coffee or entertaining guests. The added convenience of an upper-level laundry room enhances everyday living. Ideally located close to a wide range of amenities, including shopping, restaurants, and a nearby university, this home also offers easy access to outdoor and recreational attractions such as Horseshoe Valley Resort, premier golf courses, and the scenic Port of Orillia. A wonderful opportunity to enjoy comfort, lifestyle, and location all in one exceptional property. (id:64974)
Quick Facts
- Property Type: House (Freehold)
- Bedrooms: 4 (4 above)
- Bathrooms: 3 (1 half)
- Ownership: Freehold
- Attached: No
- Fireplaces: 1
- Parking: 3.0 spaces (Attached Garage, Garage)
- Frontage: 10.0 m (33 ft)
Costs
- Annual Taxes: $5,228.00 (2025)
Listing Provided by: CENTURY 21 PERCY FULTON LTD.
Board: Toronto Regional Real Estate Board
Data provided via CREA DDF®.
Detailed Features
Interior & Systems
- Heating: Forced air, Natural gas
- Cooling: Central air conditioning
- Basement: Unfinished, N/A
- Appliances: Washer, Range, Dryer, Garage door opener remote(s)
- Flooring: Tile, Carpeted
Exterior & Construction
- Exterior: Brick
- Foundation: Concrete
- Sewer: Sanitary sewer
- Water: Municipal water
Lot & Land
- Frontage: 10.0 m (33 ft)
Community & Neighbourhood
- Neighbourhood: Orillia
Room Details (8 rooms)
Listing Information
Listing History
MLS listing activity for 170 DIANA DRIVE, Orillia, Ontario, L3V8J7 — dates reflect when changes were recorded in the DDF
🚗 Travel times
Neighborhood Walkability
Mortgage & Cost Calculators
Nearby Homes ?Nearby Homes — Search CriteriaSearch Radius1 kmPrice Range±5%Match BedroomsYesMatch BathroomsYes

106 DIANA DRIVE, Orillia
House$629,800
$4,612/yr taxListing Courtesy of CENTURY 21 PERCY FULTON LTD.

203 DIANA DRIVE, Orillia
Row / Townhouse$579,999
$4,082/yr taxListing Courtesy of REMAX YC REALTY

225 DIANA DRIVE, Orillia
House$825,000
$6,304/yr taxListing Courtesy of KELLER WILLIAMS EXPERIENCE REALTY

2997 STONE RIDGE BOULEVARD, Orillia
House$849,999
$6,168/yr taxListing Courtesy of RE/MAX RIGHT MOVE

UPPER - 177 ISABELLA DRIVE, Orillia
Row / Townhouse$2,550/mo
Listing Courtesy of RE/MAX PREMIER INC.

LOWER - 177 ISABELLA DRIVE, Orillia
Row / Townhouse$1,850/mo
Listing Courtesy of RE/MAX PREMIER INC.

BSMT - 188 ISABELLA DRIVE, Orillia
Row / Townhouse$1,800/mo
Listing Courtesy of HOMELIFE GOLCONDA REALTY INC.

139 ISABELLA DRIVE, Orillia
House$639,900
$4,953/yr taxListing Courtesy of COLDWELL BANKER MOMENTUM REALTY, BROKERAGE

3027 MONARCH DRIVE, Orillia
House$3,800/mo
Listing Courtesy of CENTURY 21 B.J. ROTH REALTY LTD.

3063 EMPEROR DRIVE, Orillia
House$809,900
$6,516/yr taxListing Courtesy of EXECUTIVE REAL ESTATE SERVICES LTD.

70 PEARL DRIVE, Orillia
House$669,888
$4,100/yr taxListing Courtesy of Royal LePage Lakes Of Muskoka Realty

61 PEARL DRIVE, Orillia
House$724,999
$4,716/yr taxListing Courtesy of COLDWELL BANKER THE REAL ESTATE CENTRE

2974 MONARCH DRIVE, Orillia
House$826,900
Listing Courtesy of CENTURY 21 B.J. ROTH REALTY LTD.

2968 MONARCH DRIVE, Orillia
House$799,900
Listing Courtesy of RE/MAX HALLMARK YORK GROUP REALTY LTD.

3021 SIERRA DRIVE, Orillia
House$978,888
$7,272/yr taxListing Courtesy of REAL BROKER ONTARIO LTD.
Similar Homes ?Similar Homes — Search CriteriaSearch Radius5 kmPrice Range±5%Match Home TypeYesMatch BedroomsYes

447 SUNDIAL DRIVE, Orillia
House$749,331
$3,770/yr taxListing Courtesy of Real Broker Ontario Ltd

110 MARY STREET, Orillia
House$729,900
$5,823/yr taxListing Courtesy of RE/MAX RIGHT MOVE

61 PEARL DRIVE, Orillia
House$724,999
$4,716/yr taxListing Courtesy of COLDWELL BANKER THE REAL ESTATE CENTRE

18 TRAIL SIDE DRIVE, St. Marys
House$742,000
$4,649/yr taxListing Courtesy of Home and Company Real Estate Corp Brokerage

2109 SWANFIELD STREET, Kingston (East Gardiners Rd)
House$742,500
$5,422/yr taxListing Courtesy of SUTTON GROUP-MASTERS REALTY INC., BROKERAGE

306 - 12 CLARA DRIVE, Prince Edward County (Picton Ward)
Condo - Apartment$742,595
Listing Courtesy of RE/MAX QUINTE LTD.

31 - 780 SHEPPARD AVENUE E, Toronto (Bayview Village)
Condo - Row / Townhouse$742,999
$3,914/yr taxListing Courtesy of REAL BROKER ONTARIO LTD.

50 - 351 MILITARY TRAIL, Toronto (Morningside)
Condo - Row / Townhouse$741,000
$2,406/yr taxListing Courtesy of RE/MAX COMMUNITY REALTY INC.

113 SHADY LANE CRESCENT, Clarington (Bowmanville)
Row / Townhouse$741,000
$4,341/yr taxListing Courtesy of CENTURY 21 LEADING EDGE REALTY INC.

714 - 11121 YONGE STREET, Richmond Hill (Devonsleigh)
Condo - Apartment$743,000
$2,870/yr taxListing Courtesy of RE/MAX ATRIUM HOME REALTY

805 - 5105 HURONTARIO STREET, Mississauga (Hurontario)
Condo - Apartment$740,900
Listing Courtesy of PMA BRETHOUR REAL ESTATE CORPORATION INC.

2024 EVANS BOULEVARD, London South (South U)
House$743,900
Listing Courtesy of RE/MAX TWIN CITY REALTY INC.

185 DURHAM AVENUE, Barrie
Row / Townhouse$743,900
Listing Courtesy of RE/MAX HALLMARK PEGGY HILL GROUP REALTY

813 - 260 SACKVILLE STREET, Toronto (Regent Park)
Condo - Apartment$740,000
$3,755/yr taxListing Courtesy of RE/MAX HALLMARK REALTY LTD.

15 - 1285 BRISTOL ROAD W, Mississauga (East Credit)
Condo - Row / Townhouse$740,000
$3,632/yr taxListing Courtesy of ROYAL LEPAGE MEADOWTOWNE REALTY
Similar Properties ?Active Comparables — Search CriteriaSearch Radius2 kmPrice Range±5%Match Home TypeYesMatch BedroomsYes
No rental comparables found in this area.
Sold Comparables
Access to sold property data requires a registered and verified account with TRREB DDF integration.
Coming SoonRented Comparables
Access to rented property data requires a registered and verified account with TRREB DDF integration.
Coming SoonBook a Viewing
170 DIANA DRIVE, Orillia, Ontario, L3V8J7
