17 LEEDS COURT, Bracebridge (Monck (Bracebridge)), Ontario, P1L0B7
MLS: X12946732 | Townhouse (Freehold)
$935,840






Property Description
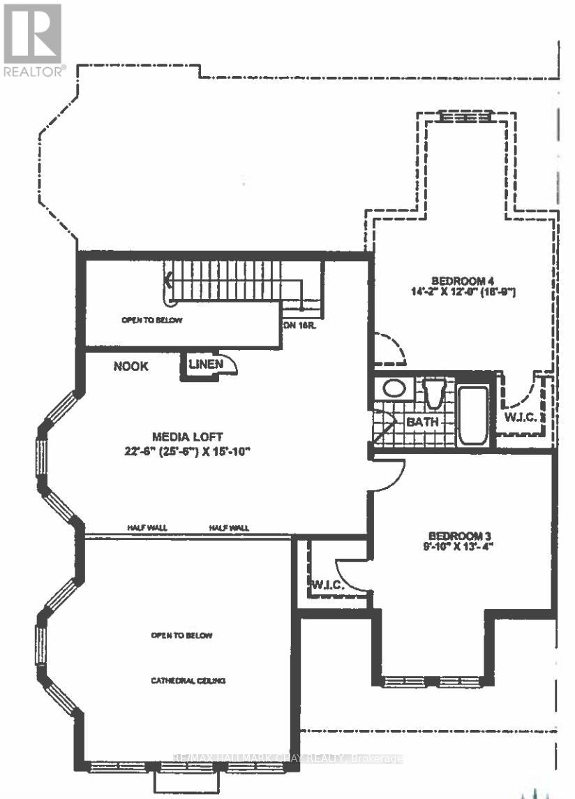
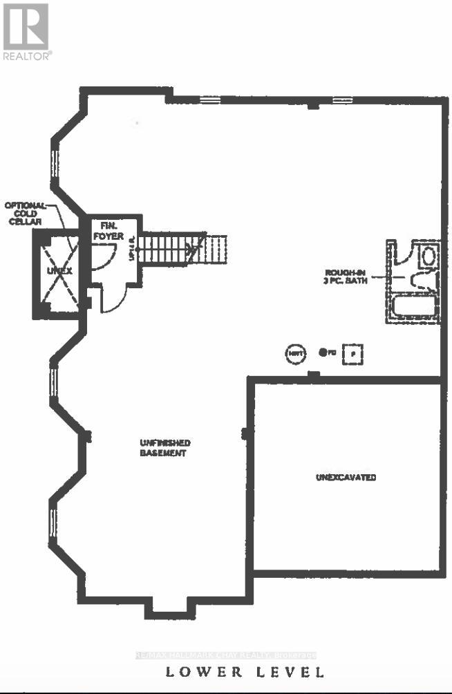
Welcome to Waterways of Muskoka, where low-maintenance living meets the beauty of cottage country. This bright and spacious new construction bungaloft townhome offers 2,571 sq ft of thoughtfully designed living space and the ease of freehold ownership with common element condo services, including snow removal and lawn maintenance.The main floor features a stunning great room with vaulted ceiling, a primary bedroom with walk-in closet, a second main floor bedroom, and convenient main floor laundry. Enjoy the charm of the Muskoka room with walkout to the patio, perfect for relaxing or entertaining.Upstairs, a large media loft provides flexible living space and is complemented by two additional bedrooms, each with walk-in closets.New construction - a great opportunity to choose your finishes and personalize your Muskoka home. A perfect blend of comfort, space, and carefree living in one of Muskoka's most desirable communities. Yearly Model (id:64974)
Quick Facts
- Property Type: Townhouse (Freehold)
- Bedrooms: 4 (4 above)
- Bathrooms: 3
- Ownership: Freehold
- Attached: Yes
- Fireplaces: Yes
- Parking: 4.0 spaces (Garage)
- Frontage: 51 ft (15.6 m)
Costs
- Condo/HOA Fee: $287.06 / monthly
- Includes: Parcel of Tied Land
Listing Provided by: RE/MAX HALLMARK CHAY REALTY
Board: Toronto Regional Real Estate Board
Data provided via CREA DDF®.
Detailed Features
Interior & Systems
- Heating: Forced air, Natural gas
- Basement: Full
Exterior & Construction
- Exterior: Wood, Stone
- Foundation: Poured Concrete
- Sewer: Sanitary sewer
- Water: Municipal water
Lot & Land
- Frontage: 51 ft (15.6 m)
Community & Neighbourhood
- Building: Fireplace(s)
- Neighbourhood: Monck (Bracebridge)
Room Details (9 rooms)
Listing Information
Listing History
MLS listing activity for 17 LEEDS COURT, Bracebridge (Monck (Bracebridge)), Ontario, P1L0B7 — dates reflect when changes were recorded in the DDF
🚗 Travel times
Neighborhood Walkability
Mortgage & Cost Calculators
Nearby Homes ?Nearby Homes — Search CriteriaSearch Radius1 kmPrice Range±5%Match BedroomsYesMatch BathroomsYes

23 SPENCER STREET, Bracebridge (Monck (Bracebridge))
Row / Townhouse$899,000
$5,056/yr taxListing Courtesy of Chestnut Park Real Estate

16 LEEDS COURT, Bracebridge (Monck (Bracebridge))
Row / Townhouse$835,000
Listing Courtesy of Peryle Keye Real Estate Brokerage

4 LEEDS COURT, Bracebridge (Monck (Bracebridge))
Row / Townhouse$816,814
Listing Courtesy of RE/MAX HALLMARK CHAY REALTY

2 LEEDS COURT, Bracebridge (Monck (Bracebridge))
Row / Townhouse$734,900
$3,415/yr taxListing Courtesy of Peryle Keye Real Estate Brokerage

230 ECCLESTONE DRIVE, Bracebridge (Macaulay)
House$1,549,000
$7,363/yr taxListing Courtesy of Royal LePage Lakes Of Muskoka Realty

50 SHORELINE DRIVE, Bracebridge (Macaulay)
Condo - Row / Townhouse$524,900
$4,088/yr taxListing Courtesy of Royal LePage Lakes Of Muskoka Realty

22 INVERARAY COURT, Bracebridge (Monck (Bracebridge))
House$2,700/mo
Listing Courtesy of RE/MAX Professionals North

2 INVERARAY COURT, Bracebridge (Monck (Bracebridge))
House$739,900
$4,725/yr taxListing Courtesy of Royal LePage Lakes Of Muskoka Realty

B/311 - 10 KIMBERLEY AVENUE, Bracebridge (Macaulay)
Condo - Apartment$489,900
$3,664/yr taxListing Courtesy of eXp Realty

144 SHIER STREET, Bracebridge (Macaulay)
House$789,900
$4,759/yr taxListing Courtesy of Peryle Keye Real Estate Brokerage

208 - 24 ONTARIO STREET, Bracebridge (Macaulay)
Condo - Apartment$649,000
$4,438/yr taxListing Courtesy of RE/MAX ATRIUM HOME REALTY
Similar Homes ?Similar Homes — Search CriteriaSearch Radius5 kmPrice Range±5%Match Home TypeYesMatch BedroomsYes

31 THE GRANITE BLUFF, Bracebridge (Macaulay)
House$949,000
$5,500/yr taxListing Courtesy of RE/MAX Professionals North

363 SANTAS VILLAGE ROAD, Bracebridge (Monck (Bracebridge))
House$899,900
$5,093/yr taxListing Courtesy of COLDWELL BANKER RONAN REALTY

23 SPENCER STREET, Bracebridge (Monck (Bracebridge))
Row / Townhouse$899,000
$5,056/yr taxListing Courtesy of Chestnut Park Real Estate

12 PHEASANT RUN, Bracebridge (Macaulay)
House$899,000
$6,440/yr taxListing Courtesy of Royal LePage Lakes Of Muskoka Realty
Similar Properties ?Active Comparables — Search CriteriaSearch Radius2 kmPrice Range±5%Match Home TypeYesMatch BedroomsYes
No rental comparables found in this area.
Sold Comparables
Access to sold property data requires a registered and verified account with TRREB DDF integration.
Coming SoonRented Comparables
Access to rented property data requires a registered and verified account with TRREB DDF integration.
Coming SoonBook a Viewing
17 LEEDS COURT, Bracebridge (Monck (Bracebridge)), Ontario, P1L0B7
