16985 HEADLINE ROAD, South Stormont, Ontario, K0C1P0
MLS: X12789456 | House (Freehold)
$875,000















































Property Description
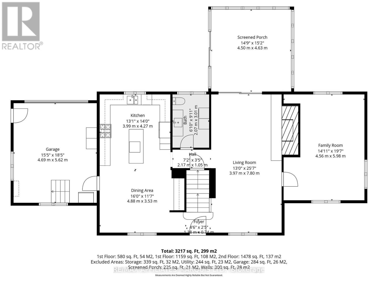
Welcome to this stunning 3,000 sq. ft. log home set on over 2 beautifully maintained acres just outside the city limits. Offering the perfect blend of peaceful rural living and convenient proximity to Cornwall, this property is ideal for families seeking space, character, and comfort. From the moment you arrive, the charm is undeniable. A spacious front porch invites you to relax and enjoy the quiet surroundings. Inside, exposed wood throughout the main floor creates a warm, timeless atmosphere. The updated eat-in kitchen features custom cabinetry, granite countertops, and a large island perfect for gathering. The inviting living room is highlighted by a striking stone fireplace with a gas insert and patio doors leading to the expansive screened-in patio, ideal for evening relaxation. A separate main-floor family room offers additional living space, and a convenient 2-piece bath combined with laundry adds everyday practicality. Upstairs you'll find four generously sized bedrooms. The primary suite includes a private 3-piece ensuite and a bonus room that could serve as a fifth bedroom, office, nursery, or exercise space. A full bathroom and an additional second-floor family room provide flexibility for growing families. The basement is currently used for storage but offers excellent potential for future development, with a walk-out from the attached single-car garage. Outside, the immaculate yard showcases mature landscaping, stone walkways, multiple patio areas, and a fire pit, perfect for entertaining or peaceful evenings under the stars. With ample parking and space for campers, boats, or recreational vehicles, this property blends lifestyle and practicality. Located minutes to Cornwall, approximately one hour to Ottawa and just over an hour to Montreal, this home offers space, warmth, and character you won't want to miss. (id:64974)
Quick Facts
- Property Type: House (Freehold)
- Bedrooms: 4 (4 above)
- Bathrooms: 3 (1 half)
- Ownership: Freehold
- Attached: No
- Fireplaces: Yes
- Parking: 11 spaces (Attached Garage, Garage)
- Frontage: 229 ft (69.8 m)
Costs
- Annual Taxes: $5,031.00 (2025)
Listing Provided by: RE/MAX AFFILIATES MARQUIS LTD.
Board: Cornwall & District Real Estate Board
Data provided via CREA DDF®.
Detailed Features
Interior & Systems
- Heating: Forced air, Natural gas
- Cooling: Central air conditioning
- Basement: Unfinished, Full
- Appliances: Water softener, Water Heater
Exterior & Construction
- Exterior: Wood, Log
- Foundation: Concrete
- Sewer: Septic System
Lot & Land
- Frontage: 229 ft (69.8 m)
- Features: Irregular lot size
Community & Neighbourhood
- Building: Fireplace(s)
- Neighbourhood: 716 - South Stormont (Cornwall) Twp
Listing Information
Listing History
Buy/Sell/Terminated/Expired listing history for 16985 HEADLINE ROAD, South Stormont, Ontario, K0C1P0
Location & Neighborhood
🚗 Travel times
Neighborhood Walkability
Mortgage & Cost Calculators
Nearby Homes (Within 2km)
Similar Homes
Similar Properties
No rental comparables found in this area.
Sold Comparables
Access to sold property data requires a registered and verified account with TRREB DDF integration.
Coming SoonRented Comparables
Access to rented property data requires a registered and verified account with TRREB DDF integration.
Coming Soon
















