1655 GRAND MARAIS Unit# 310, Windsor, Ontario, N8E4W4
MLS: 26005559 | Apartment (Condo)
$414,900



































Property Description
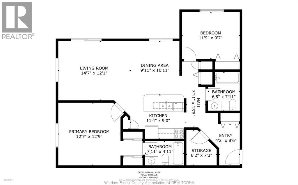
Welcome to this beautifully maintained 2-bedroom, 2 full bath corner condo located in a safe neighbourhood close to everyday conveniences. This bright, spacious unit offers extra natural light thanks to its corner location. Private balcony overlooking a peaceful park setting - perfect for enjoying your morning coffee or unwinding at the end of the day. Ceramic & laminate flooring throughout, open-concept layout, well-appointed kitchen complete w/ a breakfast bar. All appliances included. The primary bdrm features a private ensuite. In unit laundry. Garage parking w/low monthly fees of just $61.01 and close proximity to stores, coffee shops, & amenities. Whether you're a first-time buyer, downsizing, or looking for a smart investment, this condo offers comfort, convenience, and low-maintenance living in an excellent location. Super clean tenant vacating end of May. (id:64974)
Quick Facts
- Property Type: Apartment (Condo)
- Bedrooms: 2 (2 above)
- Bathrooms: 2
- Living Area: 1,000 sq ft (92.9 m²)
- Above Grade: 1,000 sq ft (92.9 m²)
- Year Built: 2001
- Ownership: Condo/Strata
- Attached: Yes
Costs
- Condo/HOA Fee: $489.18 / monthly
- Includes: Exterior Maintenance, Property Management, Ground Maintenance, Water, Insurance
Listing Provided by: REMAX PREFERRED REALTY LTD. - 585
Board: Windsor-Essex County Association of REALTORS®
Data provided via CREA DDF®.
Detailed Features
Interior & Systems
- Heating: Forced air, Natural gas, Furnace
- Cooling: Central air conditioning
- Flooring: Laminate, Ceramic/Porcelain
Exterior & Construction
- Exterior: Stucco
- Foundation: Concrete
Lot & Land
- Zoning: RD3.4
Room Details (9 rooms)
Listing Information
Listing History
MLS listing activity for 1655 GRAND MARAIS Unit# 310, Windsor, Ontario, N8E4W4 — dates reflect when changes were recorded in the DDF
🚗 Travel times
Neighborhood Walkability
Mortgage & Cost Calculators
Nearby Homes ?Nearby Homes — Search CriteriaSearch Radius1 kmPrice Range±5%Match BedroomsYesMatch BathroomsYes

1535 GRAND MARAIS ROAD Unit# 301, Windsor
Condo - Apartment$429,900
Listing Courtesy of LC PLATINUM REALTY INC.

2979 ORION, Windsor
House$549,500
Listing Courtesy of REMO VALENTE REAL ESTATE (1990) LIMITED

2848 GLENWOOD AVENUE, Windsor
House$459,900
Listing Courtesy of DEERBROOK REALTY INC.

2804 EVERTS, Windsor
House$498,000
Listing Courtesy of DEERBROOK REALTY INC.

3295 Curry Unit# Lower, Windsor
House$1,700/mo
Listing Courtesy of EXP REALTY

3277 DOMINION, Windsor
House$535,000
Listing Courtesy of KEY SOLUTIONS REALTY LTD.

3315 Rankin AVENUE, Windsor
House$659,900
Listing Courtesy of KW SIGNATURE

2692 EVERTS, Windsor
House$679,900
Listing Courtesy of ROYAL LEPAGE BINDER REAL ESTATE

3401 ROXBOROUGH Unit# LOWER, Windsor
House$1,400/mo
Listing Courtesy of MANOR WINDSOR REALTY LTD.

2880 ST. CLAIR ALLEY, Windsor
Single Family$689,000
Listing Courtesy of BUCKINGHAM REALTY (WINDSOR) LTD.

3082 BETTS AVENUE, Windsor
House$1,399,000
Listing Courtesy of LC PLATINUM REALTY INC.

3425 RANKIN, Windsor
House$465,000
Listing Courtesy of BOB PEDLER REAL ESTATE LIMITED

3024 VIRGINIA PARK AVENUE, Windsor
House$2,750/mo
Listing Courtesy of EXP REALTY

2678 ASKIN AVENUE, Windsor
House$549,900
Listing Courtesy of REMO VALENTE REAL ESTATE (1990) LIMITED

1900 COLUMBIA COURT Unit# 44, Windsor
Condo - Row / Townhouse$1,895/mo
Listing Courtesy of REMAX CAPITAL DIAMOND REALTY
Similar Homes ?Similar Homes — Search CriteriaSearch Radius5 kmPrice Range±5%Match Home TypeYesMatch BedroomsYes

1900 6TH CONCESSION ROAD Unit# 312, LaSalle
Condo - Apartment$415,000
Listing Courtesy of EXP REALTY

425 Hanna STREET West, Windsor
House$419,900
Listing Courtesy of JUMP REALTY INC.

2650 SANDWICH WEST PARKWAY Unit# 409, LaSalle
Condo - Apartment$399,999
Listing Courtesy of DEERBROOK REALTY INC.

1535 GRAND MARAIS ROAD Unit# 301, Windsor
Condo - Apartment$429,900
Listing Courtesy of LC PLATINUM REALTY INC.

401 GRAND MARAIS ROAD West Unit# 304, Windsor
Condo - Apartment$429,900
Listing Courtesy of REMAX PREFERRED REALTY LTD. - 585
Similar Properties ?Active Comparables — Search CriteriaSearch Radius2 kmPrice Range±5%Match Home TypeYesMatch BedroomsYes

1535 GRAND MARAIS ROAD Unit# 301, Windsor
Condo - Apartment$429,900
Listing Courtesy of LC PLATINUM REALTY INC.

401 GRAND MARAIS ROAD West Unit# 304, Windsor
Condo - Apartment$429,900
Listing Courtesy of REMAX PREFERRED REALTY LTD. - 585
Sold Comparables
Access to sold property data requires a registered and verified account with TRREB DDF integration.
Coming SoonRented Comparables
Access to rented property data requires a registered and verified account with TRREB DDF integration.
Coming SoonBook a Viewing
1655 GRAND MARAIS Unit# 310, Windsor, Ontario, N8E4W4

