1655 GRAND MARAIS Unit# 310, Windsor, Ontario, N8E4W4
MLS: 26004514 | Apartment (Condo)
$439,900



































Property Description
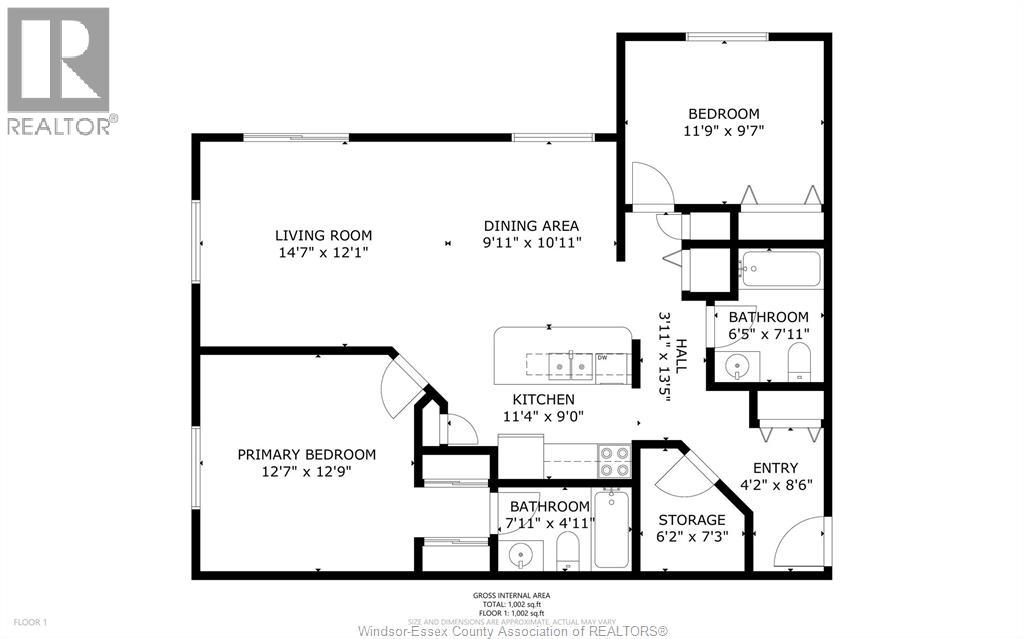
Welcome to this beautifully maintained 2-bedroom, 2 full bath corner condo located in a safe and desirable neighbourhood close to everyday conveniences. This bright and spacious unit offers extra natural light thanks to its corner location and features a private balcony overlooking a peaceful park setting - perfect for enjoying your morning coffee or unwinding at the end of the day. Inside, you'll find ceramic and laminate flooring throughout, a functional open-concept layout, and a well-appointed kitchen complete with a breakfast bar and all appliances included. The primary bedroom features a private ensuite, and the added convenience of in-suite laundry makes daily living effortless. Additional highlights include garage parking with low monthly fees of just $61.01 and close proximity to stores, coffee shops, and amenities. Whether you're a first-time buyer, downsizing, or looking for a smart investment, this condo offers comfort, convenience, and low-maintenance living in an excellent location. (id:64974)
Quick Facts
- Property Type: Apartment (Condo)
- Bedrooms: 2 (2 above)
- Bathrooms: 2
- Year Built: 2001
- Ownership: Condo/Strata
- Attached: Yes
Costs
- Condo/HOA Fee: $489.18 / monthly
- Includes: Exterior Maintenance, Property Management, Ground Maintenance, Water, Insurance
Listing Provided by: REMAX PREFERRED REALTY LTD. - 585
Board: Windsor-Essex County Association of REALTORS®
Data provided via CREA DDF®.
Detailed Features
Interior & Systems
- Heating: Forced air, Natural gas, Furnace
- Cooling: Central air conditioning
- Flooring: Laminate, Ceramic/Porcelain
Exterior & Construction
- Exterior: Stucco
- Foundation: Concrete
Lot & Land
- Zoning: RD3.4
Room Details (11 rooms)
Listing Information
Listing History
Buy/Sell/Terminated/Expired listing history for 1655 GRAND MARAIS Unit# 310, Windsor, Ontario, N8E4W4
Location & Neighborhood
🚗 Travel times
Neighborhood Walkability
Mortgage & Cost Calculators
Nearby Homes (Within 2km)
Similar Homes
Similar Properties
No rental comparables found in this area.
Sold Comparables
Access to sold property data requires a registered and verified account with TRREB DDF integration.
Coming SoonRented Comparables
Access to rented property data requires a registered and verified account with TRREB DDF integration.
Coming Soon
























