165 SIMPSON AVENUE, Northern Bruce Peninsula, Ontario, N0H2R0
MLS: X12364186 | House (Freehold)
$1,265,000



















































Property Description
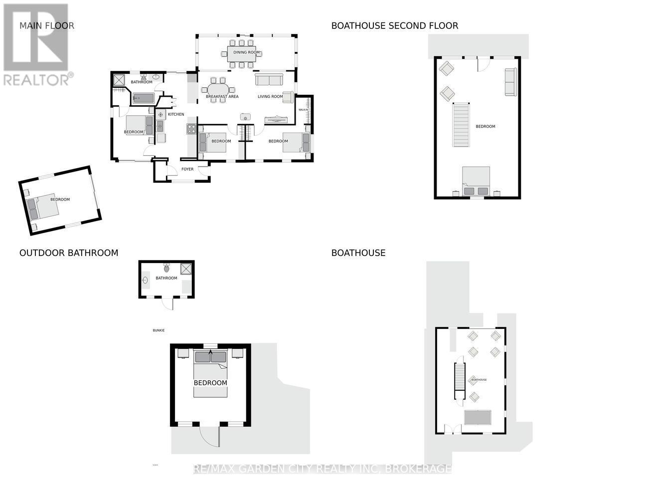
A Rare Waterfront Gem on Lake Huron! Don't miss this exceptional opportunity to own a four-season home or cottage on the pristine shores of Lake Huron. With 170 feet of gradual shoreline, this beautifully maintained property offers the perfect setting for unforgettable lakeside living. The main residence, 1179 sq. ft. of thoughtfully designed space, features one-level living with 3 bedrooms and a 4-piece bath. An open concept living and dining area is filled with natural light, showcasing picturesque lake views and a cozy woodstove. The modern kitchen includes stone countertops, under-cabinet lighting, and convenient built-in laundry. This turn-key retreat also includes a dry boathouse, detached garage, and charming guest accommodations. The boathouse is a perfect place to unwind, relax, or play games - rain or shine. The upper-level suite offers panoramic lake views from a private balcony, ideal for guests or extended family. The additional bunkies with hydro provide extra comfort and versatility. Outdoor living is at its finest here! Entertain with ease using the outdoor grill station, or relax along stone pathways that lead through landscaped grounds, designed for privacy and beauty. Swim, kayak, or simply take in the stunning sunsets over the lake - the clean, rocky shoreline is perfect for it all. Located just a short drive from Tobermorys shops, restaurants, and recreational attractions, this property offers a unique blend of serenity and convenience. Whether you're seeking a peaceful getaway or a place to host family and friends, this Lake Huron retreat is ready to welcome you. Are you ready to explore? (id:64974)
Quick Facts
- Property Type: House (Freehold)
- Style: Bungalow
- Bedrooms: 3 (3 above)
- Bathrooms: 1
- Ownership: Freehold
- Attached: No
- Fireplaces: 1
- Parking: 4 spaces (Detached Garage, Garage)
- Frontage: 70 ft (21.3 m)
Costs
- Annual Taxes: $3,584.00 (2024)
Listing Provided by: RE/MAX GARDEN CITY REALTY INC, BROKERAGE
Board: Niagara Association of REALTORS®
Data provided via CREA DDF®.
Detailed Features
Interior & Systems
- Heating: Baseboard heaters, Electric
- Cooling: None
- Basement: None
- Appliances: Washer, Refrigerator, Water softener, Dishwasher, Stove, Dryer, Water Treatment, Furniture, Window Coverings, Water Heater
- Flooring: Tile, Hardwood
- Utilities: Electricity, Telephone, Wireless, Electricity Connected
- Security: Smoke Detectors
Exterior & Construction
- Style: Bungalow
- Exterior: Wood
- Foundation: Concrete, Slab
- Sewer: Septic System
- Water: Drilled Well
Lot & Land
- Frontage: 70 ft (21.3 m)
- Features: Cul-de-sac, Wooded area, Irregular lot size, Rocky, Rolling, Partially cleared, Level, Carpet Free, Guest Suite
- View: Lake view, View of water, Direct Water View
- Waterfront: Waterfront on lake
- Water Body: Lake Huron
- Zoning: R2
Community & Neighbourhood
- Building: Separate Heating Controls, Fireplace(s)
- Neighbourhood: Northern Bruce Peninsula
Room Details (9 rooms)
Listing Information
Listing History
Buy/Sell/Terminated/Expired listing history for 165 SIMPSON AVENUE, Northern Bruce Peninsula, Ontario, N0H2R0
Location & Neighborhood
🚗 Travel times
Neighborhood Walkability
Mortgage & Cost Calculators
Similar Homes
Similar Properties
No rental comparables found in this area.
Sold Comparables
Access to sold property data requires a registered and verified account with TRREB DDF integration.
Coming SoonRented Comparables
Access to rented property data requires a registered and verified account with TRREB DDF integration.
Coming Soon














