164 APPLEWOOD Street, Plattsville, Ontario, N3C2V4
MLS: 40817162 | House (Freehold)
$1,034,900



Property Description
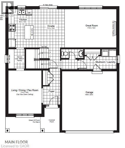
PRICE IMPROVED - To be built! This spectacular 2 storey family home offers 4 bedrooms and a nearly 2400 sq ft of thoughtful layout. With 50 feet of frontage, this home stands boldly on approach. Beautiful brick on entire 1st floor. The covered front porch is grand and inviting. Step inside to a carpet free main floor featuring a large bright office on your right for those who work from home. The kitchen, dining and great room blend nicely for keeping an eye on little ones or maintaining conversations with your guests. The upper floor has it all! Spacious bedrooms and bathrooms. The basement is open and ready for your personal touch. Opportunities are endless on a property of this caliber. Open house every Saturday and Sunday 1-4pm located at 203 Applewood Street Plattsville. Stainless steel kitchen appliance package included! (id:64974)
Quick Facts
- Property Type: House (Freehold)
- Style: 2 Level
- Bedrooms: 4 (4 above)
- Bathrooms: 3 (1 half)
- Living Area: 2,390 sq ft (222.0 m²)
- Above Grade: 2,390 sq ft (222.0 m²)
- Ownership: Freehold
- Attached: No
- Parking: 4.0 spaces (Attached Garage)
- Frontage: 50 ft (15.2 m)
Listing Provided by: eXp Realty, Brokerage
Board: Cornerstone Association of REALTORS®
Data provided via CREA DDF®.
Detailed Features
Interior & Systems
- Heating: Forced air, Natural gas
- Cooling: Central air conditioning
- Basement: Unfinished, Full
- Appliances: Refrigerator, Dishwasher, Stove, Hood Fan
Exterior & Construction
- Style: 2 Level
- Exterior: Steel, Concrete, Wood, Brick, Vinyl siding, Shingles
- Construction: Wood frame
- Foundation: Poured Concrete
- Sewer: Municipal sewage system
- Water: Municipal water
Lot & Land
- Frontage: 50 ft (15.2 m)
- Features: Country residential, Sump Pump
- Zoning: R1
Community & Neighbourhood
- Community: Quiet Area, School Bus, Community Centre
- Subdivision: Plattsville
Room Details (12 rooms)
Listing Information
Listing History
MLS listing activity for 164 APPLEWOOD Street, Plattsville, Ontario, N3C2V4 — dates reflect when changes were recorded in the DDF
🚗 Travel times
Neighborhood Walkability
Mortgage & Cost Calculators
Nearby Homes ?Nearby Homes — Search CriteriaSearch Radius1 kmPrice Range±5%Match BedroomsYesMatch BathroomsYes

168 APPLEWOOD Street, Plattsville
House$899,900
Listing Courtesy of eXp Realty, Brokerage

159 APPLEWOOD Street, Plattsville
House$1,119,900
Listing Courtesy of eXp Realty, Brokerage

172 APPLEWOOD Street, Plattsville
House$1,219,900
Listing Courtesy of eXp Realty, Brokerage

171 APPLEWOOD Street, Plattsville
House$859,900
Listing Courtesy of eXp Realty, Brokerage

179 APPLEWOOD Street, Plattsville
House$934,900
Listing Courtesy of eXp Realty, Brokerage

257 FENNEL STREET, Blandford-Blenheim (Plattsville)
House$799,900
$3,900/yr taxListing Courtesy of CENTURY 21 FIRST CANADIAN CORP

236 APPLEWOOD Street, Plattsville
Row / Townhouse$769,900
Listing Courtesy of eXp Realty, Brokerage

29 ENGLISH Crescent, Plattsville
House$1,099,000
$4,625/yr taxListing Courtesy of SMART FROM HOME REALTY LIMITED

117 ALBERT Street E, Plattsville
House$1,299,900
$6,015/yr taxListing Courtesy of Re/Max Escarpment Realty Inc.

73 WORKMAN CRESCENT, Blandford-Blenheim
House$1,489,990
Listing Courtesy of REAL BROKER ONTARIO LTD.

39 ALBERT Street W, Plattsville
House$549,900
$2,887/yr taxListing Courtesy of Royal LePage Wolle Realty
Similar Homes ?Similar Homes — Search CriteriaSearch Radius5 kmPrice Range±5%Match Home TypeYesMatch BedroomsYes

134 JAMES ANDREW WAY, Beckwith
House$1,034,900
$3,864/yr taxListing Courtesy of COLDWELL BANKER FIRST OTTAWA REALTY

447 BENNINGER Street, Kitchener
House$1,034,883
Listing Courtesy of Century 21 Heritage House Ltd.

1981 BUR OAK AVENUE, Markham (Greensborough)
Row / Townhouse$1,035,000
$3,760/yr taxListing Courtesy of CENTURY 21 LEADING EDGE REALTY INC.

3 HEREFORDSHIRE CRESCENT, East Gwillimbury
House$1,035,000
$5,864/yr taxListing Courtesy of RIGHT AT HOME REALTY INVESTMENTS GROUP

32035 BELL Road Unit# Lot 3, Wainfleet
House$1,035,000
Listing Courtesy of Royal LePage NRC Realty Inc.

728 GALWAY ROAD, Trent Lakes
House$1,035,000
$2,364/yr taxListing Courtesy of RE/MAX ALL-STARS REALTY INC.

22 MULLIN Drive, Guelph
House$1,035,000
$7,338/yr taxListing Courtesy of Peak Realty Ltd.

114 OLD SHELTER VALLEY ROAD, Cramahe
House$1,035,000
$6,101/yr taxListing Courtesy of EXP REALTY

415 SYMINGTON AVENUE, Toronto (Weston-Pellam Park)
House$1,034,000
$4,902/yr taxListing Courtesy of RE/MAX WEST REALTY INC.

196 BENNINGER Drive, Kitchener
House$1,033,600
Listing Courtesy of RE/MAX REAL ESTATE CENTRE INC. BROKERAGE-3

196 BENNINGER DRIVE, Kitchener
House$1,033,600
Listing Courtesy of RE/MAX REAL ESTATE CENTRE INC.

118 TIMBERWALK TRAIL, Middlesex Centre (Ilderton)
House$1,033,180
Listing Courtesy of SUTTON GROUP - SELECT REALTY

2310 TERRAVITA DRIVE, Niagara Falls (Stamford)
House$1,033,000
Listing Courtesy of RE/MAX NIAGARA REALTY LTD, BROKERAGE

2411 HWY. 118 E. HIGHWAY, Bracebridge (Draper)
House$1,037,000
$4,114/yr taxListing Courtesy of Royal LePage Lakes Of Muskoka Realty

602 - 5917 MAIN STREET, Whitchurch-Stouffville (Stouffville)
Condo - Apartment$1,038,000
$5,301/yr taxListing Courtesy of CENTURY 21 LEADING EDGE REALTY INC.
Similar Properties ?Active Comparables — Search CriteriaSearch Radius2 kmPrice Range±5%Match Home TypeYesMatch BedroomsYes
No active comparables found in this area.
No rental comparables found in this area.
Sold Comparables
Access to sold property data requires a registered and verified account with TRREB DDF integration.
Coming SoonRented Comparables
Access to rented property data requires a registered and verified account with TRREB DDF integration.
Coming SoonBook a Viewing
164 APPLEWOOD Street, Plattsville, Ontario, N3C2V4
