163 WATTS DRIVE, Lucan Biddulph (Lucan), Ontario, N0M2J0
MLS: X12925490 | House (Freehold)
$817,000




Property Description
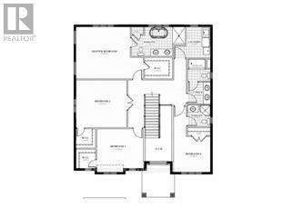
TO BE BUILT. Welcome to this stunning 2-storey home in the growing community of Lucan, offering2,600 sq ft above grade with 4 bedrooms and 3.5 bathrooms. Situated on a premium 55' lot backing onto open farmer's fields, this property delivers privacy and peaceful views rarely found in newer subdivisions. The thoughtfully designed main floor features engineered hardwood flooring and a modern kitchen with stone countertops, perfect for both everyday living and entertaining. Upstairs, the spacious primary suite offers a spa-like ensuite complete with glass shower, soaker tub, and walk-in closet. Three additional bedrooms, including a secondary bedroom with its own ensuite, along with well-appointed bathrooms and convenient upper-level laundry, provide exceptional functionality for families. Built by Waverly Homes, this design offers a functional layout with the added benefit of customizable floor plan options to suit your needs. The 55' lot allows for a 2.5 car garage option. Enjoy the perfect balance of small-town charm and convenient access to schools, parks, and everyday amenities. Located just 17 minutes from London (id:64974)
Quick Facts
- Property Type: House (Freehold)
- Bedrooms: 4 (4 above)
- Bathrooms: 4 (1 half)
- Ownership: Freehold
- Attached: No
- Parking: 4.0 spaces (Attached Garage, Garage)
- Frontage: 55 ft (16.8 m)
Listing Provided by: RE/MAX CENTRE CITY REALTY INC.
Board: London and St. Thomas Association of REALTORS®
Data provided via CREA DDF®.
Detailed Features
Interior & Systems
- Heating: Forced air, Natural gas
- Cooling: Central air conditioning
- Basement: Unfinished, Full
- Appliances: Water meter, Water Heater
- Utilities: Sewer, Electricity, Cable
Exterior & Construction
- Exterior: Brick, Vinyl siding
- Foundation: Poured Concrete
- Sewer: Sanitary sewer
- Water: Municipal water
Lot & Land
- Frontage: 55 ft (16.8 m)
- Features: Sump Pump
Community & Neighbourhood
- Neighbourhood: Lucan
Room Details (10 rooms)
Listing Information
Listing History
MLS listing activity for 163 WATTS DRIVE, Lucan Biddulph (Lucan), Ontario, N0M2J0 — dates reflect when changes were recorded in the DDF
🚗 Travel times
Neighborhood Walkability
Mortgage & Cost Calculators
Nearby Homes ?Nearby Homes — Search CriteriaSearch Radius1 kmPrice Range±5%Match BedroomsYesMatch BathroomsYes

111 COYNE LANE, Lucan Biddulph (Lucan)
House$799,900
$4,716/yr taxListing Courtesy of CENTURY 21 FIRST CANADIAN CORP

151 WATTS DRIVE, Lucan Biddulph (Lucan)
House$819,900
Listing Courtesy of CENTURY 21 FIRST CANADIAN CORP

162 WATTS DRIVE, Lucan Biddulph (Lucan)
House$774,000
Listing Courtesy of NU-VISTA PREMIERE REALTY INC.

160 WATTS DRIVE, Lucan Biddulph (Lucan)
House$738,000
Listing Courtesy of NU-VISTA PREMIERE REALTY INC.

123 WATTS DRIVE, Lucan Biddulph (Lucan)
House$695,000
Listing Courtesy of RE/MAX CENTRE CITY REALTY INC.

168 WATTS DRIVE, Lucan Biddulph (Lucan)
House$670,000
Listing Courtesy of RE/MAX CENTRE CITY REALTY INC.

LOT 18 WATTS DRIVE, Lucan Biddulph (Lucan)
House$719,999
Listing Courtesy of NU-VISTA PINNACLE REALTY BROKERAGE INC

114 STUART AVENUE DRIVE, Lucan Biddulph (Lucan)
House$716,500
Listing Courtesy of CENTURY 21 FIRST CANADIAN CORP

LOT 51 ABBEY LANE DRIVE, Lucan Biddulph (Lucan)
House$839,999
Listing Courtesy of NU-VISTA PINNACLE REALTY BROKERAGE INC

LOT 26 WATTS DRIVE, Lucan Biddulph (Lucan)
House$709,999
Listing Courtesy of NU-VISTA PINNACLE REALTY BROKERAGE INC

116 SPENCER AVENUE, Lucan Biddulph (Lucan)
House$975,000
$5,352/yr taxListing Courtesy of EXP REALTY

309 - 33318 RICHMOND STREET, Lucan Biddulph (Lucan)
Other$2,045/mo
Listing Courtesy of ROYAL LEPAGE TRILAND REALTY

308 - 33318 RICHMOND STREET, Lucan Biddulph (Lucan)
Other$1,795/mo
Listing Courtesy of ROYAL LEPAGE TRILAND REALTY

105 - 33318 RICHMOND STREET, Lucan Biddulph (Lucan)
Other$1,885/mo
Listing Courtesy of ROYAL LEPAGE TRILAND REALTY

123 WATSON STREET, Lucan Biddulph (Lucan)
House$619,999
$3,418/yr taxListing Courtesy of BLUE FOREST REALTY INC.
Similar Homes ?Similar Homes — Search CriteriaSearch Radius5 kmPrice Range±5%Match Home TypeYesMatch BedroomsYes

111 COYNE LANE, Lucan Biddulph (Lucan)
House$799,900
$4,716/yr taxListing Courtesy of CENTURY 21 FIRST CANADIAN CORP

LOT 51 ABBEY LANE DRIVE, Lucan Biddulph (Lucan)
House$839,999
Listing Courtesy of NU-VISTA PINNACLE REALTY BROKERAGE INC

204 - 12 CLARA DRIVE, Prince Edward County (Picton Ward)
Condo - Apartment$817,070
Listing Courtesy of RE/MAX QUINTE LTD.

2577 BUROAK DRIVE, London North (North S)
House$816,900
Listing Courtesy of NU-VISTA PINNACLE REALTY BROKERAGE INC

4 LEEDS COURT, Bracebridge (Monck (Bracebridge))
Row / Townhouse$816,814
Listing Courtesy of RE/MAX HALLMARK CHAY REALTY

206 BRIDGE Crescent, Minto
House$817,600
Listing Courtesy of RE/MAX REAL ESTATE CENTRE INC., BROKERAGE

206 BRIDGE CRESCENT, Minto
House$817,600
Listing Courtesy of RE/MAX Real Estate Centre Inc

43 ALLISTER DRIVE, Middlesex Centre (Kilworth)
House$817,611
Listing Courtesy of ROYAL LEPAGE TRILAND REALTY

39 ALLISTER DRIVE, Middlesex Centre (Kilworth)
House$817,611
Listing Courtesy of ROYAL LEPAGE TRILAND REALTY

124 TUNBRIDGE ROAD, Barrie (Georgian Drive)
House$817,888
$5,435/yr taxListing Courtesy of KELLER WILLIAMS EXPERIENCE REALTY

LOT#102 - 52 ALLISTER DRIVE, Middlesex Centre (Kilworth)
House$817,900
Listing Courtesy of SUTTON GROUP PAWLOWSKI & COMPANY REAL ESTATE BROKERAGE INC.

LOT#100 - 60 ALLISTER DRIVE, Middlesex Centre (Kilworth)
House$817,900
Listing Courtesy of SUTTON GROUP PAWLOWSKI & COMPANY REAL ESTATE BROKERAGE INC.

LOT #23 - 1 TIMBERWALK CLOSE, Middlesex Centre (Ilderton)
House$817,900
Listing Courtesy of SUTTON GROUP PAWLOWSKI & COMPANY REAL ESTATE BROKERAGE INC.

1805 - 57 ST. JOSEPH STREET, Toronto (Bay Street Corridor)
Condo - Apartment$818,000
$4,533/yr taxListing Courtesy of CENTURY 21 ATRIA REALTY INC.

433 - 11750 NINTH LINE, Whitchurch-Stouffville (Stouffville)
Condo - Apartment$818,000
$4,355/yr taxListing Courtesy of RE/MAX ALL-STARS REALTY INC.
Similar Properties ?Active Comparables — Search CriteriaSearch Radius2 kmPrice Range±5%Match Home TypeYesMatch BedroomsYes

111 COYNE LANE, Lucan Biddulph (Lucan)
House$799,900
$4,716/yr taxListing Courtesy of CENTURY 21 FIRST CANADIAN CORP

LOT 51 ABBEY LANE DRIVE, Lucan Biddulph (Lucan)
House$839,999
Listing Courtesy of NU-VISTA PINNACLE REALTY BROKERAGE INC
No rental comparables found in this area.
Sold Comparables
Access to sold property data requires a registered and verified account with TRREB DDF integration.
Coming SoonRented Comparables
Access to rented property data requires a registered and verified account with TRREB DDF integration.
Coming SoonBook a Viewing
163 WATTS DRIVE, Lucan Biddulph (Lucan), Ontario, N0M2J0
