1604 - 2155 BURNHAMTHORPE ROAD W, Mississauga (Erin Mills), Ontario, L5L5P4
MLS: W12894866 | Apartment (Condo)
$549,000

































Property Description
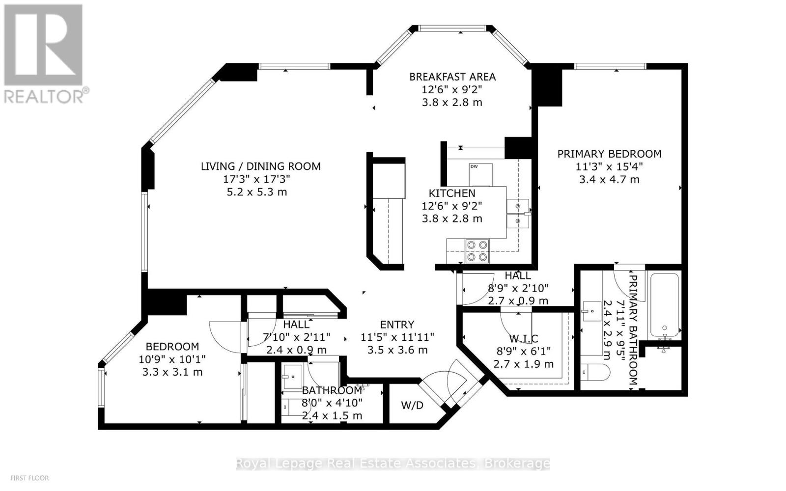
Bright & spacious 2 bedroom, 2 bath corner unit with over 1200 sq.ft in the prestigious gated community of Eagle Ridge! Panoramic views of downtown and the lake with an abundance of natural light that streams through the many windows of this home. Open concept living/dining area. The kitchen includes an eating area & breakfast bar. Desirable split bedroom design with the primary bedroom featuring a 4 pc. ensuite with a separate tub & shower as well as large walk-in closet. This unit includes 2 owned parking spots & one locker! Fantastic amenities with a private clubhouse including an indoor pool, hot tub, exercise room, sauna, squash courts, BBQ area & playground. Enjoy peace of mind with 24 hour security. Maintenance fees also include heat, hydro, water, internet & cable! Hassle free living! Convenient location & steps to transit & shopping at South Common Mall. Close to Credit Valley Hospital, schools, UTM Mississauga campus, Erindale & Clarkson Go Stations. (id:64974)
Quick Facts
- Property Type: Apartment (Condo)
- Bedrooms: 2 (2 above)
- Bathrooms: 2
- Ownership: Condo/Strata
- Attached: Yes
- Parking: 2.0 spaces (Garage, Underground)
Costs
- Annual Taxes: $3,536.00
- Condo/HOA Fee: $1,240.82 / monthly
- Corp: Maple Ridge Community Management
- Includes: Common Area Maintenance, Cable TV, Heat, Electricity, Water, Insurance, Parking
Listing Provided by: Royal Lepage Real Estate Associates
Board: Toronto Regional Real Estate Board
Data provided via CREA DDF®.
Detailed Features
Interior & Systems
- Heating: Forced air, Natural gas
- Cooling: Central air conditioning
- Basement: None
- Appliances: Washer, Refrigerator, Dishwasher, Stove, Range, Dryer, Water Treatment
- Flooring: Tile, Laminate
Exterior & Construction
- Exterior: Concrete
Lot & Land
- Features: Carpet Free
- Pool: Indoor pool
Community & Neighbourhood
- Community: Community Centre, Pets Allowed With Restrictions
- Building: Storage - Locker, Exercise Centre, Party Room, Sauna
- Neighbourhood: Erin Mills
Room Details (6 rooms)
Listing Information
Listing History
MLS listing activity for 1604 - 2155 BURNHAMTHORPE ROAD W, Mississauga (Erin Mills), Ontario, L5L5P4 — dates reflect when changes were recorded in the DDF
🚗 Travel times
Neighborhood Walkability
Mortgage & Cost Calculators
Nearby Homes ?Nearby Homes — Search CriteriaSearch Radius1 kmPrice Range±5%Match BedroomsYesMatch BathroomsYes

209 - 2155 BURNHAMTHORPE ROAD W, Mississauga (Erin Mills)
Condo - Apartment$539,000
$3,443/yr taxListing Courtesy of RE/MAX ESCARPMENT REALTY INC.

PH1904 - 2155 BURNHAMTHORPE ROAD W, Mississauga (Erin Mills)
Condo - Apartment$619,000
$3,712/yr taxListing Courtesy of RE/MAX REAL ESTATE CENTRE INC.

2155 BURNHAMTHORPE Road W Unit# 1508, Mississauga
Condo - Apartment$415,000
$2,481/yr taxListing Courtesy of RE/MAX Escarpment Realty Inc.

708 - 2177 BURNHAMTHORPE ROAD W, Mississauga (Erin Mills)
Condo - Apartment$520,000
$2,791/yr taxListing Courtesy of SAM MCDADI REAL ESTATE INC.

67 - 2199 BURNHAMTHORPE ROAD W, Mississauga (Erin Mills)
Condo - Row / Townhouse$929,000
$5,045/yr taxListing Courtesy of RE/MAX Escarpment Realty Inc., Brokerage

3940 ROLLING VALLEY DRIVE, Mississauga (Erin Mills)
House$5,500/mo
Listing Courtesy of SOTHEBY'S INTERNATIONAL REALTY CANADA

3952 ROLLING VALLEY DRIVE, Mississauga (Erin Mills)
House$1,999,999
$11,807/yr taxListing Courtesy of ROYAL LEPAGE REAL ESTATE SERVICES PHINNEY REAL ESTATE

19-3510 SOUTHMILL WAY, Mississauga (Erin Mills)
Condo - Row / Townhouse$699,000
$3,836/yr taxListing Courtesy of HOMELIFE/MIRACLE REALTY LTD

4025 ROLLING VALLEY DRIVE, Mississauga (Erin Mills)
House$1,689,999
$9,749/yr taxListing Courtesy of SAM MCDADI REAL ESTATE INC.

2593 GAZEBO COURT, Mississauga (Erin Mills)
House$1,299,000
$8,126/yr taxListing Courtesy of HOMELIFE LANDMARK REALTY INC.

24 - 3473 WIDDICOMBE WAY, Mississauga (Erin Mills)
Condo - Row / Townhouse$2,750/mo
Listing Courtesy of ROYAL LEPAGE REAL ESTATE SERVICES SUCCESS TEAM

16 - 3483 WIDDECOMBE WAY, Mississauga (Erin Mills)
Condo - Row / Townhouse$598,000
$4,104/yr taxListing Courtesy of ROYAL LEPAGE CERTIFIED REALTY

16 - 3483 WIDDECOMBE WAY, Mississauga (Erin Mills)
Condo - Row / Townhouse$2,700/mo
Listing Courtesy of ROYAL LEPAGE CERTIFIED REALTY

15 - 3492 WIDDICOMBE WAY, Mississauga (Erin Mills)
Condo - Row / Townhouse$2,700/mo
Listing Courtesy of ROYAL LEPAGE SIGNATURE REALTY

12 - 3472 WIDDICOMBE WAY, Mississauga (Erin Mills)
Condo - Row / Townhouse$599,999
$4,629/yr taxListing Courtesy of FOREST HILL REAL ESTATE INC.
Similar Homes ?Similar Homes — Search CriteriaSearch Radius5 kmPrice Range±5%Match Home TypeYesMatch BedroomsYes

2508 - 335 RATHBURN ROAD W, Mississauga (City Centre)
Condo - Apartment$549,000
$3,339/yr taxListing Courtesy of RE/MAX GOLD REALTY INC.

PH7 - 2565 ERIN CENTRE BOULEVARD, Mississauga (Central Erin Mills)
Condo - Apartment$549,000
$3,040/yr taxListing Courtesy of Royal Lepage Real Estate Associates

4203 - 3975 GRAND PARK DRIVE, Mississauga (City Centre)
Condo - Apartment$549,900
$3,195/yr taxListing Courtesy of ROYAL LEPAGE SIGNATURE REALTY

403 - 4889 KIMBERMOUNT AVENUE, Mississauga (Central Erin Mills)
Condo - Apartment$545,000
$3,267/yr taxListing Courtesy of FIRST CLASS REALTY INC.

3902 - 3900 CONFEDERATION PARKWAY, Mississauga (City Centre)
Condo - Apartment$540,000
$3,209/yr taxListing Courtesy of HOMELIFE MAPLE LEAF REALTY LTD.

111 - 4900 GLEN ERIN DRIVE, Mississauga (Central Erin Mills)
Condo - Apartment$539,999
$3,784/yr taxListing Courtesy of REALTY WEALTH GROUP INC.

3408 - 4065 BRICKSTONE MEWS, Mississauga (Creditview)
Condo - Apartment$539,900
$3,412/yr taxListing Courtesy of HOMELIFE LANDMARK REALTY INC.

510 - 1110 WALDEN CIRCLE, Mississauga (Clarkson)
Condo - Apartment$559,000
$3,288/yr taxListing Courtesy of ROYAL LEPAGE REALTY CENTRE

209 - 2155 BURNHAMTHORPE ROAD W, Mississauga (Erin Mills)
Condo - Apartment$539,000
$3,443/yr taxListing Courtesy of RE/MAX ESCARPMENT REALTY INC.

2001 - 3900 CONFEDERATION PARKWAY, Mississauga (City Centre)
Condo - Apartment$559,900
$3,318/yr taxListing Courtesy of HOMELIFE/MIRACLE REALTY LTD

3102 - 4065 BRICKSTONE MEWS, Mississauga (City Centre)
Condo - Apartment$559,990
$3,381/yr taxListing Courtesy of RE/MAX ULTIMATE REALTY INC.

162 - 601 SHORELINE DRIVE, Mississauga (Cooksville)
Condo - Row / Townhouse$560,000
$2,936/yr taxListing Courtesy of CITYSCAPE REAL ESTATE LTD.

1403 - 3900 CONFEDERATION PARKWAY, Mississauga (City Centre)
Condo - Apartment$538,000
$3,494/yr taxListing Courtesy of EXP REALTY

1503 - 1055 SOUTHDOWN ROAD, Mississauga (Clarkson)
Condo - Apartment$535,000
$3,215/yr taxListing Courtesy of ROYAL LEPAGE REALTY CENTRE

619 - 1000 CEDARGLEN GATE, Mississauga (Erindale)
Condo - Apartment$535,000
$2,533/yr taxListing Courtesy of ROYAL LEPAGE REAL ESTATE SERVICES LTD.
Similar Properties ?Active Comparables — Search CriteriaSearch Radius2 kmPrice Range±5%Match Home TypeYesMatch BedroomsYes

209 - 2155 BURNHAMTHORPE ROAD W, Mississauga (Erin Mills)
Condo - Apartment$539,000
$3,443/yr taxListing Courtesy of RE/MAX ESCARPMENT REALTY INC.

1403 - 4699 GLEN ERIN DRIVE, Mississauga (Central Erin Mills)
Condo - Apartment$529,900
$3,081/yr taxListing Courtesy of KINGSWAY REAL ESTATE

1602 - 2520 EGLINTON AVENUE W, Mississauga (Central Erin Mills)
Condo - Apartment$525,000
$3,133/yr taxListing Courtesy of RIGHT AT HOME REALTY

614 - 2495 EGLINTON AVENUE W, Mississauga (Central Erin Mills)
Condo - Apartment$3,000/mo
Listing Courtesy of RE/MAX GOLD REALTY INC.

1504 - 2560 EGLINTON AVENUE W, Mississauga (Central Erin Mills)
Condo - Apartment$2,950/mo
Listing Courtesy of AVION REALTY INC.

2104 - 2560 EGLINTON AVENUE W, Mississauga (Central Erin Mills)
Condo - Apartment$2,900/mo
Listing Courtesy of Real Broker Ontario Ltd

429 - 3170 ERIN MILLS PARKWAY, Mississauga (Erin Mills)
Condo - Apartment$2,850/mo
Listing Courtesy of CITYSCAPE REAL ESTATE LTD.

524 - 2485 EGLINTON AVENUE W, Mississauga (Central Erin Mills)
Condo - Apartment$2,800/mo
Listing Courtesy of SAM MCDADI REAL ESTATE INC.

1901 - 2520 EGLINTON AVENUE W, Mississauga (Erin Mills)
Condo - Apartment$2,700/mo
Listing Courtesy of RIGHT AT HOME REALTY

234 - 3170 ERIN MILLS PARKWAY, Mississauga (Erin Mills)
Condo - Apartment$2,700/mo
Listing Courtesy of SAM MCDADI REAL ESTATE INC.

2893 FOLKWAY DRIVE, Mississauga (Erin Mills)
House$2,600/mo
Listing Courtesy of CITYSCAPE REAL ESTATE LTD.

702 - 2560 EGLINTON AVENUE W, Mississauga (Central Erin Mills)
Condo - Apartment$2,350/mo
Listing Courtesy of RIGHT AT HOME REALTY
Sold Comparables
Access to sold property data requires a registered and verified account with TRREB DDF integration.
Coming SoonRented Comparables
Access to rented property data requires a registered and verified account with TRREB DDF integration.
Coming SoonBook a Viewing
1604 - 2155 BURNHAMTHORPE ROAD W, Mississauga (Erin Mills), Ontario, L5L5P4
