1601 ROCKLANDS ROAD, Peterborough (Monaghan Ward 2), Ontario, K9J6R8
MLS: X12734048 | House (Freehold)
$950,000



















































Property Description
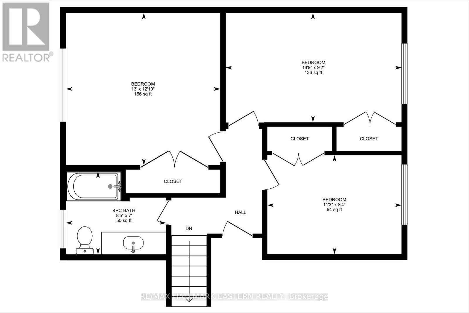
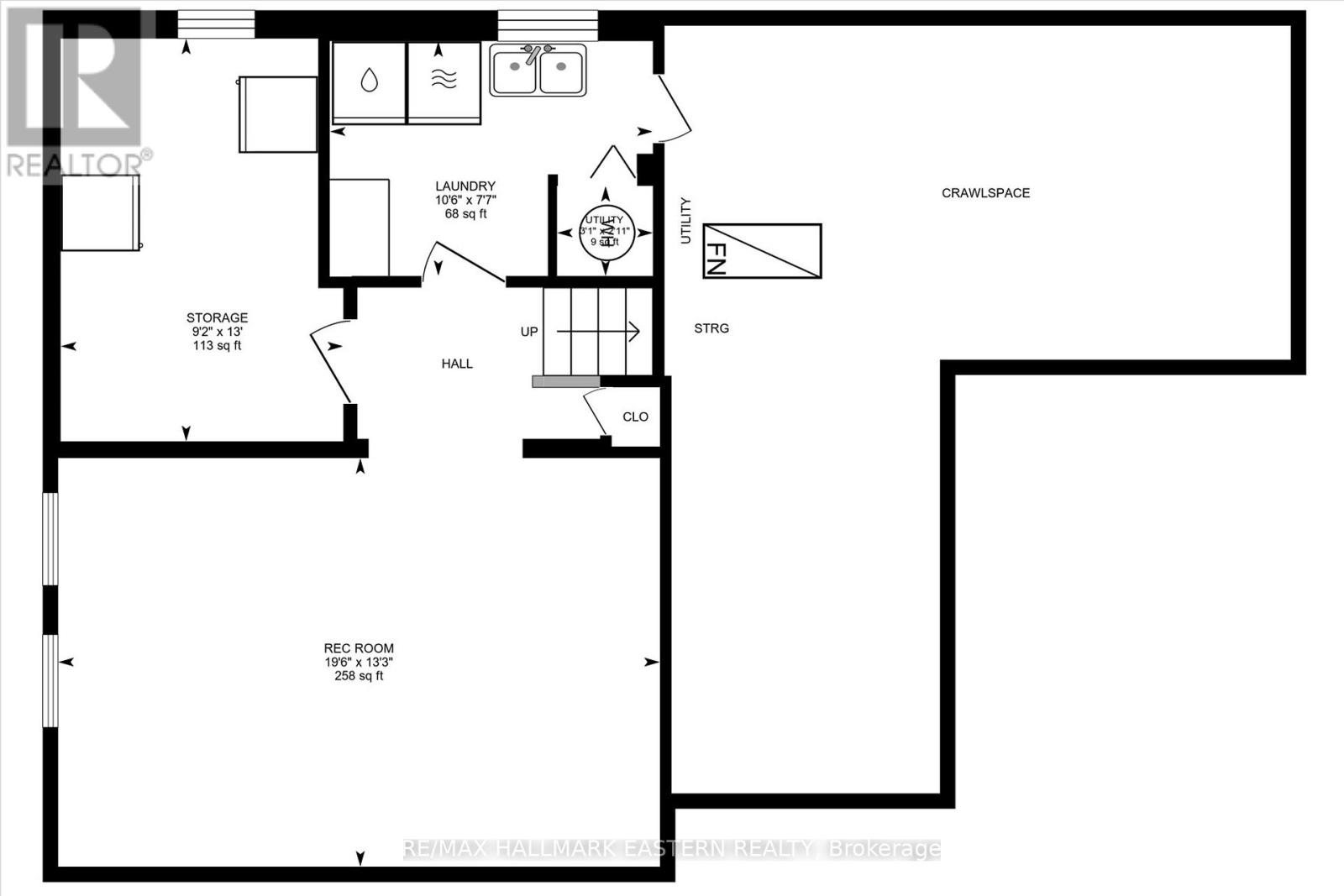
Welcome to 1601 Rocklands Road, a well maintained and thoughtfully updated 4 level side split located in a mature subdivision on a quiet dead end street in Peterborough's highly sought after Westmount neighbourhood. This 4 bedroom home is perfectly suited for family living, offering a functional layout and generous living space throughout. The main floor features a welcoming foyer, convenient powder room and spacious primary bedroom complete with a private ensuite featuring heated floors and his & her closets. The newly updated kitchen offers modern finishes and a walk-out to the beautifully landscaped fully fenced backyard, where you'll find a completely refurbished 20 x 40 concrete pool with an impressive 10 foot deep end, ideal for summer entertaining and family fun. Upstairs, three additional well sized bedrooms provide plenty of room for children, guests, or a home office. The lower level includes a fully finished family room, laundry area, and ample storage space, adding even more versatility to the home. Located in the highly rated school districts like Westmount and St Theresa's, close to parks, trails and amenities, this West End property offers comfort, space, and a setting that's hard to find. This move in ready home delivers comfort, space, and lasting value. A pre listing home inspection has been completed by AmeriSpec for your peace of mind. Floor plans and video tours are available for your convenience through the BROCHURE BUTTON on realtor.ca. Book your private showing today! (id:64974)
Quick Facts
- Property Type: House (Freehold)
- Bedrooms: 4 (4 above)
- Bathrooms: 3 (1 half)
- Ownership: Freehold
- Attached: No
- Fireplaces: Yes
- Parking: 5 spaces (Attached Garage, Garage)
- Frontage: 75 ft (22.9 m)
Costs
- Annual Taxes: $6,953.00 (2025)
Listing Provided by: RE/MAX HALLMARK EASTERN REALTY
Board: Central Lakes Association of REALTORS®
Data provided via CREA DDF®.
Detailed Features
Interior & Systems
- Heating: Forced air, Natural gas
- Cooling: Central air conditioning
- Basement: Partially finished, Full, Crawl space, N/A
- Appliances: Refrigerator, Dishwasher, Stove, Range, Microwave, Window Coverings, Garage door opener, Garage door opener remote(s)
- Utilities: Sewer, Electricity, Cable
Exterior & Construction
- Exterior: Brick, Aluminum siding
- Foundation: Block
- Sewer: Sanitary sewer
- Water: Municipal water
Lot & Land
- Frontage: 75 ft (22.9 m)
- Pool: Inground pool
- Zoning: R1
Community & Neighbourhood
- Building: Fireplace(s)
- Neighbourhood: Monaghan Ward 2
Room Details (14 rooms)
Listing Information
Listing History
Buy/Sell/Terminated/Expired listing history for 1601 ROCKLANDS ROAD, Peterborough (Monaghan Ward 2), Ontario, K9J6R8
Location & Neighborhood
🚗 Travel times
Neighborhood Walkability
Mortgage & Cost Calculators
Nearby Homes (Within 2km)
Similar Homes
Similar Properties
No rental comparables found in this area.
Sold Comparables
Access to sold property data requires a registered and verified account with TRREB DDF integration.
Coming SoonRented Comparables
Access to rented property data requires a registered and verified account with TRREB DDF integration.
Coming Soon























