16 GOLDEN HORSESHOE LANE, Whitestone (Hagerman), Ontario, P0G1G0
MLS: X12854918 | House (Freehold)
$974,900



















































Property Description
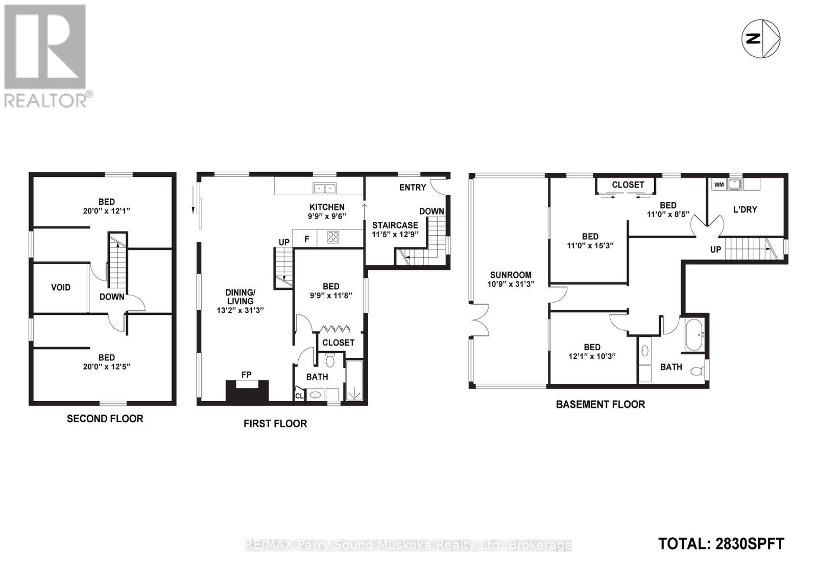
A stunning, 4 bedroom, 2 bathroom winterized/year-round home or cottage on large and desirable Whitestone Lake. Located on a private year-round maintained road. A full-service lake for plenty of boating activities, swimming, hours of exploring by motorboat and great fishing with bass, pickerel and pike. Move in ready, fully furnished/turn key family, cottage or investment property for rental. This waterfront home is great for entertaining, a large family/many friends. Bunkie for guest overflow and shed for garden tools. Mudroom. Windows bring in plenty of natural light, which brings warmth and coziness into the main floor living space. Main floor bedroom. Loft with 2 bedrooms. Walkout to deck with stairs to a meticulously landscaped yard. Basement with laundry, storage, bedroom and den/office to work from home. Enclosed sunroom for those rainy days or evenings to play a game of cards. Upgrades in the last few years include propane forced air, water filtration/UV system, stone, stairs, waterside deck, vinyl, siding, plumbing, and some windows. South exposure with sun all day. Plenty of property for family fun for kids and pets to play. Great sitting area at the waterside deck/ dock with deep water to jump in to cool off right from the dock. The cottage sits nicely perched on a hill for a fabulous view. Short drive into the town of Dunchurch for amenities, community center, restaurant, nursing station and supplies. 200/ year road fee. Click on the media arrow for virtual tour and 3-D imaging. (id:64974)
Quick Facts
- Property Type: House (Freehold)
- Bedrooms: 4 (4 above)
- Bathrooms: 2
- Ownership: Freehold
- Attached: No
- Fireplaces: 1
- Parking: 5 spaces (No Garage)
- Frontage: 100 ft (30.5 m)
Costs
- Annual Taxes: $2,813.42
Listing Provided by: RE/MAX Parry Sound Muskoka Realty Ltd
Board: OnePoint Association of REALTORS®
Data provided via CREA DDF®.
Detailed Features
Interior & Systems
- Heating: Forced air, Propane
- Cooling: None
- Basement: Finished, Walk out, N/A
- Appliances: Water Treatment, Furniture
- Fireplace Features: Woodstove
Exterior & Construction
- Exterior: Vinyl siding
- Foundation: Wood
- Sewer: Septic System
Lot & Land
- Frontage: 100 ft (30.5 m)
- View: Direct Water View
- Waterfront: Waterfront on lake
- Water Body: Whitestone Lake
- Zoning: WF
Community & Neighbourhood
- Neighbourhood: Hagerman
Room Details (12 rooms)
Listing Information
Listing History
Buy/Sell/Terminated/Expired listing history for 16 GOLDEN HORSESHOE LANE, Whitestone (Hagerman), Ontario, P0G1G0
Location & Neighborhood
🚗 Travel times
Neighborhood Walkability
Mortgage & Cost Calculators
Similar Homes
Similar Properties
No rental comparables found in this area.
Sold Comparables
Access to sold property data requires a registered and verified account with TRREB DDF integration.
Coming SoonRented Comparables
Access to rented property data requires a registered and verified account with TRREB DDF integration.
Coming Soon




