16 CARMICHAEL CRESCENT, Collingwood, Ontario, L9Y4R6
MLS: S13003460 | House (Freehold)
$1,599,000










































Property Description
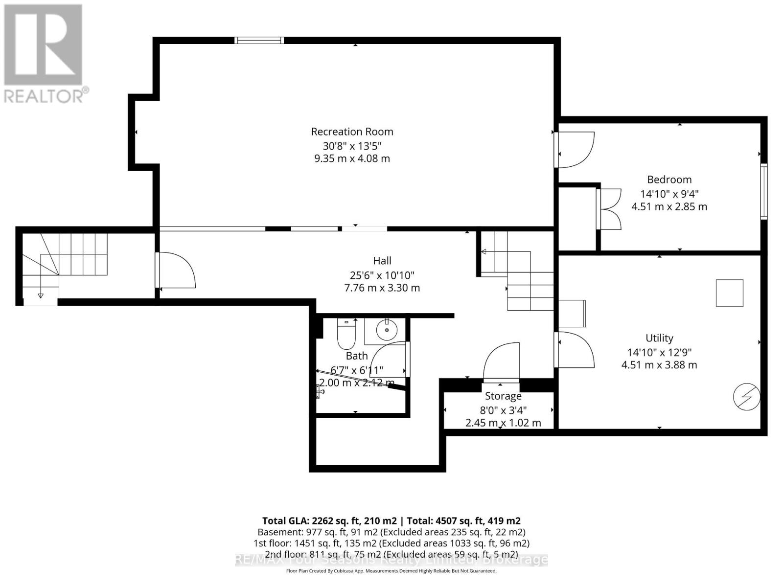
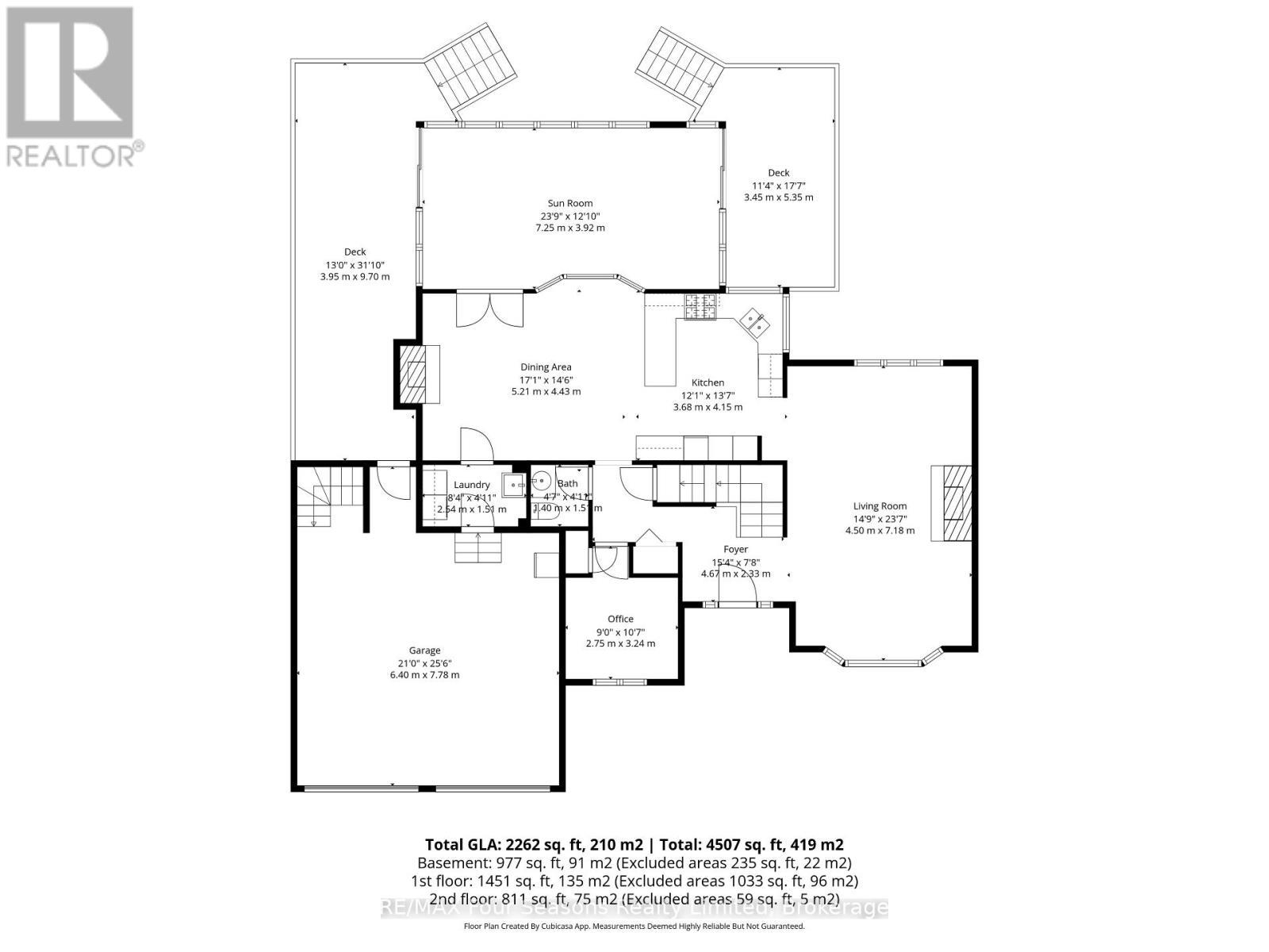
Desirable Lockhart neighbourhood! Situated on a beautifully landscaped estate lot, this custom-built family home (5 Bedrooms/4 Bathrooms) has been meticulously maintained and thoughtfully upgraded throughout. Backing onto Kinsmen Park, the property offers exceptional privacy and a serene natural setting. Enjoy year-round comfort in the stunning three-season glass solarium (23.9 X12.10 sf ), complete with an integrated hot tub and Chantico glass fireplace-an ideal space to relax or entertain. The spacious kitchen features granite countertops, a breakfast bar, and flows seamlessly into a large dining area with a custom gas fireplace, perfect for family gatherings. A bright family room with cathedral ceilings and an additional gas fireplace provides a warm and inviting atmosphere. Second level~ The primary suite serves as a private retreat, offering a soaker tub, glass shower, walk-in closet, and scenic views toward Osler Ski Resort, two generously sized bedrooms and a 4-piece bath. A versatile main floor bedroom, currently used as a den, is ideal for guests or a home office. Great space in the fully finished basement is designed for entertaining, featuring a quality pool table, spacious bedroom, 3-piece bath, and separate access to both the garage and backyard-ideal for potential in-law accommodation. Car enthusiasts will appreciate the oversized Double garage (22 X 22 ft), while the fully fenced backyard offers a private outdoor oasis with expansive decking (610 sf) a custom shed, perennial gardens, and the solarium as its centerpiece.16 Carmichael Crescent is a timeless home offering 4500+ sq ft of living space (including solarium), situated on a quiet crescent surrounded by lovely homes. Walking distance to 4 schools~ Admiral Collingwood, Notre-Dame de Huronie, Our Lady of the Bay, and CCI, as well as downtown, trails, and recreation. Southern Georgian Bay offers a fabulous lifestyle all seasons on the sparkling blue water of Georgian Bay! View the Virtual Tour (id:64974)
Quick Facts
- Property Type: House (Freehold)
- Bedrooms: 5 (4 above, 1 below)
- Bathrooms: 4 (1 half)
- Ownership: Freehold
- Attached: No
- Fireplaces: 3
- Parking: 6.0 spaces (Attached Garage, Garage, Inside Entry)
- Frontage: 70 ft (21.3 m)
Costs
- Annual Taxes: $5,757.44 (2025)
Listing Provided by: RE/MAX Four Seasons Realty Limited
Board: OnePoint Association of REALTORS®
Data provided via CREA DDF®.
Detailed Features
Interior & Systems
- Heating: Forced air, Natural gas
- Cooling: Central air conditioning
- Basement: Finished, Separate entrance, Walk-up, N/A, N/A, N/A
- Appliances: Washer, Refrigerator, Dishwasher, Stove, Dryer, Microwave, Window Coverings, Garage door opener remote(s)
- Flooring: Tile, Hardwood, Slate
- Utilities: Sewer, Electricity, Cable
Exterior & Construction
- Exterior: Brick
- Foundation: Concrete
- Sewer: Sanitary sewer
- Water: Municipal water
Lot & Land
- Frontage: 70 ft (21.3 m)
- Features: Sump Pump
- View: Mountain view
Community & Neighbourhood
- Building: Fireplace(s)
- Neighbourhood: Collingwood
Room Details (15 rooms)
Listing Information
Listing History
MLS listing activity for 16 CARMICHAEL CRESCENT, Collingwood, Ontario, L9Y4R6 — dates reflect when changes were recorded in the DDF
🚗 Travel times
Neighborhood Walkability
Mortgage & Cost Calculators
Nearby Homes ?Nearby Homes — Search CriteriaSearch Radius1 kmPrice Range±5%Match BedroomsYesMatch BathroomsYes

20 LESLIE DRIVE, Collingwood
House$659,000
$2,910/yr taxListing Courtesy of Century 21 Millennium Inc.

68 KATHERINE STREET, Collingwood
House$2,500/mo
Listing Courtesy of Royal LePage Locations North

28 KERR STREET, Collingwood
House$839,000
$5,658/yr taxListing Courtesy of REAL ONE REALTY INC.

45 MCLEAN AVENUE, Collingwood
House$1,189,000
$8,307/yr taxListing Courtesy of Sotheby's International Realty Canada

48 MCLEAN AVENUE, Collingwood
House$899,000
$6,454/yr taxListing Courtesy of Royal LePage Locations North

48 PORTLAND STREET, Collingwood
Row / Townhouse$589,000
$4,227/yr taxListing Courtesy of SUTTON GROUP REALTY SYSTEMS INC.

3 GEORGE ZUBEK DRIVE, Collingwood
Row / Townhouse$799,000
$4,178/yr taxListing Courtesy of Sotheby's International Realty Canada

5 BARFOOT STREET, Collingwood
Row / Townhouse$635,000
$4,282/yr taxListing Courtesy of RE/MAX MILLENNIUM REAL ESTATE

62 WILLIAMS STREET, Collingwood
House$1,175,000
$5,136/yr taxListing Courtesy of LPT REALTY

94 KIRBY AVENUE, Collingwood
House$999,900
$6,951/yr taxListing Courtesy of RIGHT AT HOME REALTY

7 ALBANY STREET, Collingwood
Row / Townhouse$619,000
$4,551/yr taxListing Courtesy of Royal LePage Locations North

24 GEORGE ZUBEK Drive, Collingwood
Row / Townhouse$749,900
$3,805/yr taxListing Courtesy of RE/MAX REAL ESTATE CENTRE INC., BROKERAGE

56 KIRBY AVENUE, Collingwood
House$875,000
$6,418/yr taxListing Courtesy of RE/MAX By The Bay Brokerage

23 ALBANY Street, Collingwood
Row / Townhouse$639,000
$4,626/yr taxListing Courtesy of HOMELIFE MIRACLE REALTY MISSISSAUGA

48 GEORGE ZUBEK DRIVE, Collingwood
Row / Townhouse$779,999
$4,818/yr taxListing Courtesy of PSR
Similar Homes ?Similar Homes — Search CriteriaSearch Radius5 kmPrice Range±5%Match Home TypeYesMatch BedroomsYes

117 STANLEY STREET, Collingwood
House$1,555,000
$6,725/yr taxListing Courtesy of Century 21 Millennium Inc.

514 WILSON Street E, Ancaster
House$1,599,000
$8,536/yr taxListing Courtesy of RE/MAX Escarpment Realty Inc.

5940 BLUE SPRUCE AVENUE, Burlington (Orchard)
House$1,599,000
$5,305/yr taxListing Courtesy of RE/MAX REAL ESTATE CENTRE INC.

51 GLENAVY AVENUE, Toronto (Bridle Path-Sunnybrook-York Mills)
House$1,599,000
$8,114/yr taxListing Courtesy of RE/MAX NOBLECORP REAL ESTATE

3007 DUNDAS Street, Burlington
House$1,599,000
$1,000/yr taxListing Courtesy of Keller Williams Complete Realty

110 CREAM Street, Fenwick
House$1,599,000
$5,156/yr taxListing Courtesy of RE/MAX Escarpment Realty Inc.

LOT 6 VISTA VIEW DRIVE, Alnwick/Haldimand (Grafton)
House$1,599,000
Listing Courtesy of ROYAL LEPAGE PROALLIANCE REALTY

65 MARSH HARBOUR, Aurora (Aurora Highlands)
House$1,599,000
$7,360/yr taxListing Courtesy of MAIN STREET REALTY LTD.

27 - 2165 STAVEBANK ROAD, Mississauga (Cooksville)
Condo - House$1,599,000
$8,047/yr taxListing Courtesy of ROYAL LEPAGE REAL ESTATE SERVICES PHINNEY REAL ESTATE

LOT 3 - 4836 45 HIGHWAY, Hamilton Township (Baltimore)
House$1,599,000
Listing Courtesy of ROYAL LEPAGE PROALLIANCE REALTY

4590 WALKER ROAD, Windsor
House$1,599,000
Listing Courtesy of LC PLATINUM REALTY INC.

110 CREAM STREET, Pelham (Fenwick)
House$1,599,000
$5,156/yr taxListing Courtesy of RE/MAX ESCARPMENT REALTY INC.

129 SUNSET BOULEVARD, Blue Mountains
House$1,599,000
$7,472/yr taxListing Courtesy of Royal LePage Signature Realty

154 HOLLINGSWORTH DRIVE, King (King City)
House$1,599,000
$6,667/yr taxListing Courtesy of REMAX YOUR COMMUNITY REALTY

305 - 160 FREDERICK STREET, Toronto (Moss Park)
Condo - Apartment$1,599,000
$5,959/yr taxListing Courtesy of SAGE REAL ESTATE LIMITED
Similar Properties ?Active Comparables — Search CriteriaSearch Radius2 kmPrice Range±5%Match Home TypeYesMatch BedroomsYes
No rental comparables found in this area.
Sold Comparables
Access to sold property data requires a registered and verified account with TRREB DDF integration.
Coming SoonRented Comparables
Access to rented property data requires a registered and verified account with TRREB DDF integration.
Coming SoonBook a Viewing
16 CARMICHAEL CRESCENT, Collingwood, Ontario, L9Y4R6
